Вентиляція в лазні своїми руками: як зробити правильно
Чому потрібно турбуватися питанням, як правильно зробити вентиляцію в бані? Від того, наскільки правильно влаштована вентиляція в лазні, залежить не тільки підтримання комфортної температури у передбаннику, мийної, парної, кімнаті відпочинку, але і безпеку, а також термін служби будівлі та його частин. Проектуючи лазню і починаючи її побудову, слід пам’ятати про те, що вентиляція в лазні своїми руками повинна бути зроблена з урахуванням певних тонкощів і нюансів. Своїми руками, за допомогою інструкцій, фото та відео, можуть бути виконані роботи всіх етапів монтажу вентиляції в лазні і парильні.

Правильно влаштована вентиляція в лазні забезпечить комфортну температуру всередині парної і продовжить термін служби дерев’яних елементів
Принцип роботи системи вентиляції в лазні
Дія системи вентиляції базується на загальновідомих фізичних законах, а схема її пристрою проста і зрозуміла. Для безперервної циркуляції повітря необхідні отвори двох типів:
- припливних;
- витяжних.
Припливні отвори потрібні для того, щоб в приміщення надходив свіже повітря. При коректному пристрої вентиляції в лазні вони повинні розташовуватися якомога ближче до підлоги і біля печі. При такій схемі розташування вступник повітря швидко нагрівається і в лазні стабільно підтримується висока температура.

Напрямок руху повітряних мас усередині парній
Витяжні отвори призначені для видалення з парильні перегрітого зволоженого повітря і чадного газу. Вони повинні бути влаштовані як можна вище, тобто трохи нижче рівня стелі, і перебувати напроти отворів припливних, щоб створювати і підтримувати постійний повітрообмін.
Рада! Витяжний отвір у стелі призведе до швидкого охолодження приміщення, тому таке його розташування небажано.
З принципової локалізацією припливних і витяжних отворів при влаштуванні вентиляції в лазні своїми руками складнощів немає. Але завдання підтримання високої температури в приміщенні парної при одночасно ефективне видалення з нього відпрацьованого повітря і чадного газу непроста.
Також потрібно звернути увагу на збереження температури, комфортною і для санітарно-гігієнічних процедур, що і для відпочинку, у всіх частинах лазні: передбаннику, мийної, кімната для релаксації. І якщо належить створення і здійснення схеми вентиляції в лазні своїми руками, слід задуматися про грамотному виконанні робіт.

Схема правильної циркуляції повітря в лазні
Види вентиляції
Існує два види вентиляції:
- природна;
- примусова.
Який з них вибрати при влаштуванні вентиляційної системи своїми руками, залежить від конструкції лазні та обсягу її приміщень.

Система вентилювання з електронним блоком управління
Природна вентиляція
Цей вид вентиляції працює за рахунок різниці температури і тиску всередині приміщення і поза його. Ефективність її роботи залежить від розміщення отворів для припливу і виведення повітря. Найбільш підходяще рішення – припливні отвори знаходяться у підлоги, на висоті 250-350 мм, поруч з піччю, а витяжні – на протилежній від них стіні, нижче рівня стелі на 150-200 мм
Стаття по темі:

Системи природної вентиляції не підходять для вентилювання парної або парилки, так як холодне повітря в цьому приміщенні збираються біля самої підлоги, а гарячий – у верхній частині. Налаштування переміщення повітряних потоків супроводжується складнощами, але при правильному розташуванні елементів вентиляції в парної російської лазні, можливо своїми руками впоратися і з цією проблемою.

Природна вентиляція не підходить для парної, її доцільно облаштувати в кімнаті відпочинку
Примусова вентиляція
Для цього виду вентиляції в парильні російської лазні або сауни можна виділити два підвиди:

Розташування вентиляційних каналів всередині стін лазні
Залежність системи вентиляції лазні від типу споруди
Природна вентиляція, при умові правильного розташування віддушин і відповідності їх розмірів обсягів приміщень, добре функціонує в російській лазні, зібраної з колоди або бруса.
Каркасний будинок є герметичною конструкцією. Доцільно в лазнях з каркаса використовувати примусову вентиляцію. Припливний отвір в зовнішній стіні парильні слід додатково обладнати нагнітаючим вентилятором.
У будові з цегли чи піноблоків можлива тільки примусова вентиляція.

Тип вентиляційної системи вибирається в залежності від матеріалів, з яких побудована лазня
Планування вентиляційної системи лазні: тонкощі і нюанси
Перш ніж приступити до вибору схеми вентиляції в бані та влаштування її конструкції своїми руками, потрібно розібратися в тонкощах і нюансах проектування.
Факт! Навіть невеликі помилки в схемі розташування припливних та витяжних отворів призводять до небажаних наслідків. У парильні або знизиться постійна температура повітря, або підвищиться концентрація чадного газу.
При будівництві будь-якої лазні – вентиляція лазні та її принципова схема закладається в процесі побудови. Питання «як зробити вентиляцію в лазні» має вирішуватися ще на стадії проектування.
Вентиляційні канали передбанника, мийної, парної, кімнати відпочинку і прорізи для притоку свіжого повітря і видалення суміші чадних газів з відпрацьованими вологими і холодними повітряними масами повинні бути прокладені на відповідних етапах будівництва. Засувки і решітки для регулювання розмірів припливних і витяжних отворів і перерізів вентиляційних повітроводів встановлюються вже на стадії фінішної обробки приміщень.

Планування вентиляційної системи необхідно здійснити ще на стадії розробки дизайн-проекту банного приміщення
В основному, функціонування вентиляції лазні залежить від двох факторів:
- розміри вентиляційних отворів – як припливних, так і витяжних – які визначаються об’ємом приміщення, будь то передбанник, мийна, парилка або кімната відпочинку;
- взаєморозташування вентиляційних отворів.
Розміри вентиляційних отворів
Розміри вентиляційних отворів залежать від обсягу конкретного приміщення: передбанника, парилки, мийної або кімнати відпочинку. Дуже важливі як точний розрахунок розміру цих прорізів, так і забезпечення можливості його змінювати. Для регулювання просвітів в отворах встановлюють дверцят-засувки і решітки.

Вентиляційний отвір з бігунком для регулювання обсягу припливу свіжого повітря
Необхідно врахувати, що при великих розмірах вентиляційних віконець буде важко нагріти приміщення до правильної температури. Виникне небезпека постійного перевитрати палива і електроенергії, які труднощі з регулюванням перерізу вентиляційних каналів, тобто, відстані, на яку потрібно буде своїми руками відкрити кожен отвір.
Рада! Площа вентиляційного отвору визначається з розрахунку 24 см2 на 1 м3 об’єму вентильованого приміщення. Для хорошої тяги свіжого повітря ззовні витяжний отвір повинне бути більше вхідного.
Якщо ж площа вентиляційних отворів недостатня, температура, вологість повітря та концентрація чадного газу в приміщенні можуть піднятися до критичних величин.

Оптимальний розмір вентиляційного отвору вираховується з розрахунку 24 кв. см на 1 кубометр об’єму приміщення
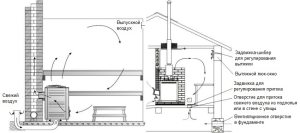
Взаєморозташування вентиляційних отворів
Дія будь-якої системи вентиляції засноване на заміщення мас нагрітого повітря, що приходять в рух під тиском повітря, що надходить зовні – більш холодного і важкого. Важливо забезпечити можливість регулювати напрямок потоку тепла, що виходить від печі, встановленої в лазні. Вентиляція в парній часто оснащується не одним припливним отвором, а двома саме з цієї причини. Для локалізації теплових потоків достатньо з допомогою засувок створити в одному з них або в обох просвіт певної ширини.

Схема розміщення всередині парної вентиляційних отворів для припливу свіжого і видалення забрудненого повітря
Вентиляція в російській лазні
Якість вентиляційної системи лазні, розробленої і змонтованої своїми руками, закладається ще на стадії проекту.
Повітряні потоки, які циркулюють в приміщеннях, будуть мати різну температуру, але дискомфорт від цього повинен відчуватися як можна менше.
Рада! Комфорт в лазні залежить не тільки від відсутності різких перепадів температури «по горизонталі», тобто при переході з одного приміщення в інше: з кімнати відпочинку в передбанник або з парильні в мийну. Необхідно м’яке переміщення повітряних мас по вертикалі: температура повітря біля підлоги не повинна бути сильно нижче температури на рівні середнього людського зросту.

Мікроклімат в лазні безпосередньо залежить від кількості вентиляційних отворів, їх розмірів і місця розташування
Рівномірність надходження, змішування і видалення повітряних мас залежить від кількості припливних і витяжних отворів, їх розмірів, розташування відносно один одного і опалювальних приладів, а також оснащеності пристроями додаткового регулювання.
Основні схеми пристрою вентиляції в лазні
Будь-яка схема вентиляції лазні розробляється з однією метою – підтримка температури, вологості і свіжості повітря в парній. Приміщення лазні, а особливо парилка, піддаються впливу води і пари, тому потребують періодичного провітрюванні і просушування. Але провітрювання і просушування будуть неефективними, якщо не організована в лазні правильна вентиляція. Правильна і постійна вентиляція парної лазні значно знижує наслідки того, що деревина вбирає вологу.

Основне завдання вентиляції лазні – підтримка температури, вологості і свіжості повітря в парній
Вентиляція підлоги в лазні
Повітрообміну в банних приміщеннях сприяє пристрій вентильованого підлоги.
Дерев’яна підлога при постійному контакті з водою втрачає придатність через 5 років. Вимоги, необхідні для здійснення вентиляції через стать:
- для створення потоку зробити невеликі віддушини у фундаменті лазні;
- настилати підлогу, залишаючи між дошками щілини до 1 см;
- закласти припливні отвори в паралельних стінах (не забуваючи захистити їх решітками від гризунів);
- щоб піч працювала додаткової витяжкою, укладати чистову підлогу вище рівня піддувала;
- після використання ванни залишати двері відкритими до тих пір, поки підлогу в приміщенні не висохне.

Схема облаштування вентиляційної системи в сауні
Вентиляція в лазні передбаннику
Своїми руками, при наявності фото і відео інструкцій, вентиляцію в кімнаті відпочинку лазні і у передбаннику зробити найпростіше, так як в них немає прямого контакту з водою. Використовується природний або комбінований тип вентиляції, коли свіже повітря надходить по повітрю каналу і виводиться за допомогою вентилятора через витяжний канал парилки, тамбура або санвузла. Також можлива установка провітрювачів, для чого знадобиться прямий висновок на вулицю і підключення електроживлення.

У передбаннику можна облаштувати природний або комбінований тип вентиляції
Вентиляція в мийної ванни
Для повітрообміну у мийній частіше роблять систему примусової вентиляції, яка приводиться в дію електромотором. Повітряні потоки виводять в бік тамбура. Припливний і витяжний канал роблять одного перерізу, вхід першого встановлюють вище рівня грунту (на 2 м), а висновок другого – вище покрівлі.
Вентиляція в парильні, лазні
Вимоги до мікроклімату приміщення парної особливі. Вона повинна швидко прогріватися, в ньому повинен підтримуватись оптимальний рівень вологості та відсутні протяги. Тому для парилки актуальні коректне положення і розміри припливних і витяжних каналів, які закладаються при будівництві. Для регулювання припливу та відтоку повітря досить засувок в віддушинах, але при великому об’ємі приміщення можуть знадобитися нагнітає або витяжний вентилятор.

Схема облаштування вентиляції в парній
Викладені вище загальні принципи проектування вентиляції в лазні, відео і фото, додані до інструкцій з мережевих або інших ресурсів, які повинні допомогти бажаючим побудувати лазню своїми руками довести це бажання до конкретного втілення.
Артем Іванов 2018-07-06T15:48:25+00:00 Вентиляція, Споруди, Ділянка|Своїми руками| ОЦІНИТЕ
МАТЕРІАЛ
Завантаження… ПОДІЛІТЬСЯ
У СОЦСЕТЯХFacebookTwitterOkGoogle+PinterestVk
