Як створити схему вентиляції в приватному будинку своїми руками
Сучасні будинки, завдяки пластиковим вікнам, зовнішнього і внутрішнього утеплення, стають досить герметичними. З одного боку, це добре, але з іншого – ускладнює потрапляння свіжого повітря в будинок, його вентилювання припиняється частково або зовсім відсутній. Щоб виправити ситуацію, власнику житлового будівництва необхідно скласти схему вентиляції в приватному будинку своїми руками, або звернутися до фахівців для організації системи вентиляції в приватному будинку, схема якої буде передбачено проектом.

Труби вентиляції приватного будинку можуть виглядати дуже стильно
Правильна вентиляція в приватному будинку запобігає утворенню конденсату, поширення плісняви та грибка, створює сприятливий мікроклімат для проживаючих. Вентилюванням повинні забезпечуватися не тільки житлові кімнати, але і господарсько-технічні приміщення: ванни, кухні, санвузли, підвали, котельні.
Розрізняють природну і примусову вентиляцію в приватному будинку. Установку деяких систем можливо зробити своїми руками.
Створення в приватному будинку своїми руками схеми вентиляції природного типу
Природна вентиляція в приватному будинку полягає в тому, що в стінах прокладаються спеціальні канали, по яких здійснюється циркуляція повітря у всіх кімнатах, а також у зоні каміна. За рахунок різної щільності теплого і холодного повітря відбувається природний рух повітряних потоків.

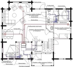
Схема вентиляції в двоповерховому будинку
У схемі природної вентиляції в приватному будинку показано розташування вертикальних труб, повітроводів, які починаються у вентильованій кімнаті і проходять до коника даху.
Щоб зробити природну вентиляцію в приватному будинку своїми руками, необхідно прокласти в стіні (зазвичай несучої канал перерізом 140 мм. Тут важливо, щоб товщина кладки витяжного каналу становила півтора цегли. Якщо товщина каналу буде менше, то можливий ефект зворотної тяги. Труба повинна закінчуватися вище гребеня, що також буде сприяти достатній силі тяги. Від цього каналу влаштовуються для кімнат горизонтальні відводи, діаметр яких складає 100 мм. Можна зробити розводку вентиляції в приватному будинку з пластикових труб.
Вентиляція в приватному будинку своїми руками, схема і розрахунок параметрів системи – цілком здійсненний процес, за умови дотримання норм і рекомендацій.

Приклад вентиляції примусового типу в котеджі
Вентиляція приватних будинків примусового типу
Система примусової вентиляції в приватному будинку необхідна там, де природна вентиляція не спроможна забезпечити повноцінного оновлення повітря. Найчастіше вентиляційні пристрої необхідні в котельнях, ванних кімнатах, туалетах і кухнях. Приладами, за допомогою яких здійснюється примусова вентиляція, є вентилятори і витяжки.
Корисна порада! Примусова вентиляція видаляє з кімнати неприємні запахи, а також надлишкову вологу. Тому якщо ви хочете, щоб у ванній кімнаті не завівся грибок або цвіль, обов’язково подбайте про вентиляції приміщень.
Організувати примусовий повітрообмін можна скориставшись схемою вентиляції в приватному будинку. Схема може припускати наявність настінного вентилятора, який встановлюється на початку повітряного каналу. Незважаючи на те, що підшипниковий вентилятор більш міцний, він створює під час роботи багато неприємного шуму. Набагато тихіше працюють втулкові пристрої, які, до того ж, дешевше.

Установка вентиляційної решітки стельової
Особливості вентиляції на кухні
Приміщення кухні завжди знаходиться під впливом запахів. Зміна повітря тут повинна проводитися постійно, тому примусове вентилювання, яке просто необхідно під час приготування їжі, має бути посилена стабільним повітрообміном природного типу.
Витяжка встановлюється над плитою. Це найбільш ефективний спосіб відведення повітря в цій кімнаті, так як при приготуванні тих чи інших продуктів, виділяється тепло і пар, з відповідними запахами. На пластикових вікнах утворюється конденсат.
При монтажі витяжки своїми руками, важливо встановити її на оптимально ефективне відстані від плити. Для газових плит це 0,75 м, для електричних – 0,65 м.

Витяжка на кухні — частина загальної вентиляційної системи будинку
Іноді на кухні використовують припливну установку. Вона представляє з себе елемент припливно-витяжної системи вентиляції і сприяє ефективному повітрообміну. Ця система буде працювати правильно при достатньому функціонування тягового відводу. Тому при використанні припливної установки важливо перевіряти тягу у вентиляційному каналі. В іншому випадку потік припливного повітря буде просто перемішуватися з використаним повітрям і поширюватися по інших кімнатах.
Відео-приклади та роз’яснення щодо влаштування вентиляції в приватному будинку своїми руками можна знайти в інтернеті.

Схема розміщення вентиляційної решітки і вентиляторів на кухні
Актуальність забезпечення припливу повітря
Схема вентиляції в приватному будинку своїми руками повинна передбачати не тільки відвід, але і приплив повітря в достатній кількості. Якщо не подбати про це, то можна вважати, що в будинку немає правильної вентиляції. Герметичність вікон і дверей стає причиною того, що в будинку перестає функціонувати природна вентиляція і спостерігається процес застою повітря. Крім того, робота примусового повітрообміну призведе до зворотного ефекту, коли через канали природної витяжки повітря почне рухатися у зворотному напрямку разом з усіма запорошеними накопиченнями.
Стаття по темі:

Правила організації системи вентиляції повинні враховувати те, що сучасні вікна, двері не пропускають в приміщення свіже повітря, як це було раніше. В них немає тих зазорів, які допускалися застарілими нормативами Сніп. Навіть при відмінно організованої системи вентиляції повітря в будинку може виявитися спертим, що є головною ознакою того, що в ньому відсутній аэроциркуляция. У таких приміщеннях встановлюються стійкі технічні і токсичні запахи, які походять від клею, шпалер, лінолеуму та інших будівельних і меблевих матеріалів. Може з’явитися волога і конденсат.
Для наочності, можна ознайомитися з прикладами пристрої вентиляції в приватному будинку своїми руками (відео-інструкції є в інтернеті).

Детальний план вентиляції в приватному будинку
Який варіант вентиляції приватного будинку варто вибирати?
Схема вентиляції в приватному будинку своїми руками повинна бути складена відповідно до розрахунку всіх необхідних параметрів. Розрахунок вентиляції проводиться на підставі даних про площі вентильованих приміщень і кількості людей, що знаходяться в них. Показник повітрообміну береться з розрахунку 10 м3 за годину на одну людину.
Які системи повітрообміну пропонуються в приватних будинках? Як зробити природну вентиляцію грамотно і функціонально, щоб не збирався конденсат, не сиріли стіни і повітря завжди залишався свіжим?
Пропонуються такі способи вентиляції:
- природна система вентиляції;
- припливно-витяжна система вентиляції;
- комбінована система вентиляції (коли до природної додають припливно-витяжну).

Забезпечення вентиляції з допомогою канального вентилятора
Вибір для монтажу своїми руками системи вентиляції в приватному будинку залежить від багатьох факторів. Це стан навколишнього середовища, матеріали виготовлення, конструкція будинку, і, нарешті, фінансові можливості власника.
Є приміщення, де додаткові установки допоможуть збалансувати мікроклімат. Тому комбінована система вентиляції будинку дасть оптимальний результат.
Система припливно-витяжної вентиляції в приватному будинку
Незважаючи на те що схема вентиляції в приватному будинку своїми руками може здатися занадто простою, при належному підході до її організації, вона забезпечить комфортні умови в будинку.

Монтування вентиляційних каналів
Найбільш відповідною системою вентиляції для приватного будинку вважається припливно-витяжна вентиляція, де подача та відведення повітря здійснюється примусовим шляхом. Щоб встановити своїми руками систему вентиляції необхідно розрахувати необхідний повітрообмін, визначити місце установки устаткування (зазвичай використовують сухе підсобне приміщення) і намітити розташування отворів для припливу і виведення повітря. Отвори для припливу і відведення повітря влаштовують в протилежних кутах приміщення. Всередину отвори вставляють патрубок і ззовні закривають ґратами. Зсередини встановлюють зворотний клапан. У обраному місці закріплюється припливно-витяжна установка, до неї, використовуючи металеві хомути, приєднують вентиляційні канали. Для повітроводів застосовують гнучкі труби.

Елементи системи вентиляції на кухні
Труби для вентиляції в приватних будинках можна використовувати пластикові або алюмінієві. З допомогою кріплень канали розводять по кімнатах будинку. Зазвичай повітроводи розташовують над підвісними стелями. Місце виведення труб повітроводів закривають вентиляційними гратами.
Корисна порада! Використовуючи в припливно-витяжної установки вентилятор, можна домогтися збільшення швидкості виведення відпрацьованого забрудненого повітря.
Припливно-витяжна система може бути оснащена рекуператором тепла, яке нагріває надходить з вулиці повітря. Іншим варіантом припливно-витяжної вентиляції є припливно-витяжна система з кондиціонуванням. За допомогою такої припливно-витяжної установки тепле повітря охолоджується.

Стрілками позначено напрямок руху повітря усередині будинку при природній вентиляції
Система вентиляції ванної кімнати в приватному будинку
Облаштовуючи систему вентиляції своїми руками у ванній, необхідно враховувати, що в ході користування ванною кімнатою, там виникає надмірна вологість, з’являється конденсат. Металеві деталі та елементи, на яких збирається конденсат у ванній починають іржавіти.
Схема вентиляції ванної кімнати повинна бути передбачена проектом. Вона передбачає пристрій вентиляційної шахти, вхід в яку з боку ванни закривається ґратами. Припливне повітря може потрапляти в приміщення ванної через відкриті кватирки і зазор між дверима про підлогою. Природна вентиляція забезпечить оптимальну вологість і температуру в приміщенні ванної.
Корисна порада! Якщо ванна кімната розташована на другому або третьому поверсі будинку, для усунення вологості і конденсату, застосовується примусова вентиляція. У такій системі використовують вентилятор.

Схема руху потоків повітря всередині приміщення
У ванних кімнатах і суміщених санвузлах застосовується вентиляція каналізації в приватному будинку. Існує кілька варіантів установки вентиляційних труб для таких приміщень. Один з них – проведення вентиляційної труби вздовж стіни будинку. Така труба зовні буде схожим на водостічну трубу. Довжина вентиляційної труби повинна бути такою, щоб початок її було вище покриття даху. Рекомендується застосовувати діаметр труби 11 див. Повну і детальну інструкцію можна знайти у відео-матеріали про монтаж вентиляції в санвузлах.
Пристрій вентиляції підвалу в приватному будинку своїми руками
Приміщення підвалу в приватному будинку найчастіше використовується під господарські потреби. Щоб уникнути вогкості і появи конденсату на стінах, обов’язково наявність вентиляції в підвалі приватного будинку. Своїми руками можна влаштувати просту вентиляцію, пробивши на протилежних сторонах цоколя отвори. Прикрити їх решітками, щоб підвал не змогли потрапити гризуни.

Пристрій і принцип роботи припливно-витяжної вентиляційної установки
Більш ефективну вентиляцію підвалу можна зробити, використовуючи труби. Для монтажу знадобляться дві труби (діаметром 8-15 см), решітки, козирки, які захищають від попадання опадів, теплоізоляція. Один кінець припливної труби встановлюється в отвір стіни на відстані 25-35 см від підлоги підвалу. Верхній кінець труби виводиться через цоколь назовні і розміщується уздовж стіни. Довжина зовнішньої частини труби повинна становити 50-60 см. Для більш естетичного вигляду, трубу можна зробити непомітною.
Припливна труба повинна бути встановлена в отворі під стелею підвалу. Якщо підвал використовується для зберігання продуктів, то трубу рекомендується розташовувати в безпосередній близькості з ними. Труба з підвалу виводиться через всі перекриття і закінчується на висоті 40-60 см від даху. Слід врахувати, що в приватних будинках конденсат у вентиляції, що утворюється в витяжній трубі, стікатиме в підвал. Тому в підвалі ставлять ємність, в яку збирають конденсат. Труби для вентиляції можуть використовуватися пластикові або азбоцементні.

Схема вентиляції в приватному будинку, яку можна створити самостійно
В інтернеті можна знайти різні схеми вентиляції в приватному будинку. Своїми руками зробити монтаж за схемою набагато простіше. Відео розповість про варіанти установки систем вентиляції в підвалі приватного будинку.
Система вентиляції в котельні приватного будинку
При установці вентиляції своїми руками в котельні, необхідно враховувати прив’язку елементів вентиляції до місця розташування опалювального обладнання. Для котельні можливе застосування природного або примусового вентилювання.
Корисна порада! Якщо в котельні вашого будинку встановлено твердопаливний котел, рекомендується встановити примусову вентиляцію.
Розташування труб повітроводів в котельні може бути вертикальним або горизонтальним. Але при цьому, горизонтальні повітроводи в котельні не повинні містити поворотних відрізків і встановлюватися тільки у випадку примусової вентиляції. Для природної вентиляції котельні труба воздуховода може бути вертикальною і завдовжки не менше трьох метрів.

Провітрювання — найпростіший спосіб природної вентиляції приміщення
Оптимальною системою вентиляції в котельні є комбінована вентиляція. Якщо в котельні перестане функціонувати примусова вентиляція, природна її частково замінить.
Обладнавши свій будинок ефективною системою вентиляції, ви забезпечите тривалу експлуатацію конструкції будинку і збережете своє здоров’я.
Вентиляція в приватному будинку (відео)
Олег Добронравов 2017-05-30T21:04:37+00:00 Вентиляція, Комунікації|Своїми руками, Схема| ОЦІНИТЕ
МАТЕРІАЛ
Завантаження… ПОДІЛІТЬСЯ
У СОЦСЕТЯХFacebookTwitterOkGoogle+PinterestVk
