План одноповерхового будинку: приклади функціональних планувань
Підбираючи проект для зведення котеджу на заміській ділянці, в першу чергу, потрібно визначитися з кількістю поверхів будівлі. Цей нюанс має безпосередній вплив на бюджет майбутнього будівництва і функціональність житла. У свою чергу, вибір поверховості будівлі залежить від площі ділянки. Невелика територія під забудову накладає деякі обмеження на вибір типу будівлі, тому вдалий план одноповерхового будинку завжди доведеться до місця.

Завдяки грамотному плануванні навіть дуже маленький одноповерховий будинок може бути комфортним і затишним
План одноповерхового будинку: переваги та недоліки
Будівельні роботи зі зведення одноповерхової будівлі відрізняються масою переваг, адже побудувати будинок з одним поверхом набагато швидше і легше, ніж з двома і більш.
Цей тип забудови відкриває широкі можливості для розробки дизайну, його виконання, а також забезпечує надійність і безпека готової будівлі. Але одноповерхові котеджі не зможуть вирішити проблему з забудовою заміських ділянок, власники яких мають великі сім’ї. У цьому випадку варто звернути увагу на двох — і триповерхові споруди.

Варіант планування одноповерхового будинку з маленькою площею
Одноповерхові будівлі популярні не тільки завдяки невеликим габаритам і низьким витратам на будівництво. Вони відмінно вписуються в природний ландшафт. Тим не менш над розподілом внутрішніх площ слід задуматися, так як будівля в підсумку повинно повністю відповідати потребам всіх мешканців. Для цього варто ознайомитися з фото, планами одноповерхових будинків, а також їх характеристиками. Це дозволить вам створити більш повну картину розуміння того, як розробляються проекти будівель.
Стаття по темі:

Переваги проектів з одним поверхом
Як і будь-який тип споруди, одноповерхова споруда має і переваги, і недоліки. Оптимальним вважається той варіант, який володіє великою кількістю переваг, ніж мінусів.
Переваги проектів з невеликою кількістю поверхів:
- фундаментне підстава є найважливішою частиною будинку. При цьому вартість його будівництва дуже висока в порівнянні з розцінками на інші види робіт. У більшості випадків одноповерхові будівлі мають спрощений варіант фундаменту. Така підстава не розраховане витримувати вагу декількох поверхів, тому може мати просте виконання і полегшену конструкцію. Що, в свою чергу, не накладає обмежень щодо типу ґрунту на території, відведеній під забудову;

Одноповерховий будинок зі спальними кімнатами в мансарді
- при будівництві стін можна істотно заощадити, оскільки їх конструкції не вимагають додаткового посилення, так як відсутній другий поверх. Вибір будівельних матеріалів в цьому випадку також практично нічим не обмежується;
- інженерія в одноповерхових будівлях дуже проста. Немає необхідності виконувати складну розводку комунікацій, системи опалення тощо з розрахунком на особливі експлуатаційні умови будинку. Як це буває, наприклад, з будинками, де є такий архітектурний елемент, як другий світ або ж є багато поверхів. Монтажні роботи максимально спрощені і обходяться дуже дешево;
- завдяки простій конструкції будівництво будинку не вимагає великих витрат, а всі роботи виконуються в найкоротші терміни;

3D-проект одноповерхового будинку з мансардою та гаражем
- проекти з одним поверхом не включають в себе наявність сходової конструкції, за винятком планувань з мансардою. Це дозволяє відмовитися від зведення дорогої і складної сходів, більш раціонально розпорядившись внутрішніми житловими площами.
Зверніть увагу! Важливе значення при виборі планування має психологічний чинник. Для сімей, в яких є діти, дуже важливий аспект єднання і оптимального розміщення житлових кімнат по відношенню одна до іншої.
Недоліки одноповерхових будівель та особливості організації простору
Одноповерхові будівлі мають і недоліки, яких не так вже й багато:
- споруди з великою площею і одним поверхом створюють значні труднощі на етапі проектування. В таких умовах при складанні планування потрібно стежити за тим, щоб прохідних кімнат було як можна менше. Особливо ця вимога стосується кімнат відпочинку – спалень, гостьових і дитячих. Від цього буде залежати комфорт перебування в них;

Планування одноповерхового будинку площею 150 кв м, розрахованого на проживання великої родини
- споруди з одним поверхом і великими габаритами вимагають значних витрат на етапі організації даху. Згодом покрівля з такими габаритами буде частіше потребувати проведення планового ремонту та оновлення, який стане причиною нових витрат;
- будівлі з маленькими габаритами обмежують розміри внутрішніх приміщень. На етапі проектування доведеться створювати таку планування, яка буде одночасно відповідати потребам всіх мешканців та відповідати нормативам будівництва та санітарії.

Ресторан з зоною відпочинку, прибудована до одноповерхового будинку
Фото проектів одноповерхових будинків та способи збільшення простору
З урахуванням того, що одноповерхові будівлі найчастіше обмежені в розмірах, багато власників заміських ділянок прагнуть будь-якими доступними способами збільшити внутрішній простір.
Способи збільшення площі:
- облаштування цокольного поверху, де можна розмістити не тільки житлові кімнати, але і приміщення більярдної, спортивного залу або комори;
- будівництво мансардного даху, яка може бути використана для розміщення гостьової, спальні або дитячої кімнати;

Цокольний, перший та мансардний поверх невеликого за площею приватного будинку
Зверніть увагу! Вартість будівництва мансардного поверху лише незначно перевищує витрати, які тягне за собою організація даху з двома скатами. Тому мансарду можна розглядати, як вигідне вкладення коштів.
- монтаж даху з одним скатом з метою подальшої організації кімнати-горища або майданчика навісного типу;
- використання плоского даху для створення додаткової зони відпочинку з квітником або патіо;
- організація гаража та майстерні.
Всі ці елементи дозволять різноманітити планування житлового будинку і зробити його більш цікавим з архітектурної і функціональної точки зору.

Пристрій мансарди – ефективний спосіб збільшення внутрішнього простору будинку
План одноповерхового будинку 8 на 8 метрів з цоколем
Такий елемент будівлі, як цоколь не можна розглядати в якості повноцінного поверху. Тому він не впливає на номінальну кількість поверхів у будинку. Але якщо підземну зону споруди облагородити і грамотно облаштувати, площа цоколя можна сміливо додати до загального розміру будівлі.
Проект одноповерхового споруди з цоколем не передбачає розміщення житлових кімнат на цій ділянці. Подібні труднощі обумовлюються тим, що тут немає можливості організувати природне освітлення в необхідній кількості і нормальний рівень вентиляції.

План цоколя одноповерхового будинку 8 на 8 м: 1 — коридор, 2 і 3 — нежитлові приміщення (більярдна, котельня, пральня, спортзал тощо)
Тим не менше ви завжди можете перенести в нижню частину будівлі всі приміщення, що мають господарське і технічне призначення. Навіть невелика будівля розміром 8х8 м зможе забезпечити сім’ю додатковим простором для розміщення безлічі речей і домашньої техніки на цокольному поверсі.
Корисна порада! Використовуйте цоколь для установки системи водопостачання та опалення (монтаж котла), організації пральні, зони для прасувальної і сушарки, зберігання консервації овочів (замість льоху). Сюди можна перенести підсобні приміщення, комору або комору.

Тривимірний проект будинку 8х8 м з цокольним поверхом
Проекти великого розміру дозволяють розташовувати на цоколі кімнати, призначені для відпочинку:
- тренажерний зал;
- більярдна;
- майстерня;
- міні-кінотеатр;
- сауна;
- маленький басейн.
Особливості планування одноповерхового будинку 10 на 10 метрів з мансардою
Щодо вартості будинок з мансардним поверхом практично аналогічний будинку з горищним приміщенням. Даний момент обумовлюється тим, що матеріалів для будівництва мансарди потрібно практично стільки ж, скільки їх необхідно для зони горища. Але в цьому випадку будуть додаткові витрати, так як потрібно виконати:
- утеплення;
- обробку;
- провести систему опалення.

Планування одноповерхового будинку 10 на 10 м з мансардою
Все це необхідно для того, щоб організувати на мансардному поверсі кімнати житлового типу, забезпечити в них комфорт. Тому витрати себе цілком виправдовують.
Як і у випадку з цоколем, мансарда, з точки зору архітектури, не може розглядатися як повноцінний поверх, отже, вона здатна запропонувати набагато менше корисної площі, ніж це могло б бути у двоповерховій будівлі. Зате це простір дає можливість складати цікаві і різноманітні планування.
Найчастіше мансарда умовно виступає на плані будівлі як другий поверх. З цієї причини у верхній частині будинку власники прагнуть розташувати кімнати спалень і невеликі санвузли. Площа цієї ділянки визначає кількість спалень, їх габарити.

Затишна вітальня, влаштована в мансарді одноповерхового будинку
Мансарда може включати в себе кілька спальних кімнат невеликого розміру, а також хол, повноцінний санвузол, укомплектований ванній. Тут же можна розташувати комору.
План одноповерхового будинку 8 на 10 метрів з гаражем
Наявність всього одного поверху в будинку не може бути перешкодою для створення під однією покрівлею з житловими приміщеннями гаража та майстерні. При цьому плани одноповерхових будинків з гаражем можуть мати повністю симетричну планування або ж, навпаки, певна кількість кімнат, розташованих вільно.
Симетричні варіанти будівель пропонують планування, в яких приміщення гаража відокремлюється від кімнат житлового типу з допомогою потужних капітальних стін. Зовні подібне будівля виглядає симетричною, можливо умовний поділ навпіл на дві зони: житлову частину і ділянка, відведена під гараж. При вільному розподілі просторів приміщення гаража просто примикає до однієї з зовнішніх стін споруди.

Планування одноповерхового будинку 8 на 10 м з гаражем і великою терасою
Корисна порада! Рекомендується складати планування так, щоб доступ до приміщення був не тільки з вулиці, але і з боку будинку. Завдяки цьому власникові автомобіля не потрібно буде мокнути під дощем і снігом у негоду, коли захочеться пройти в гараж.
Для збільшення вільного простору в будинку зовсім не обов’язково обмежуватися одним тільки гаражем, цоколем або мансардою. Ви можете використовувати всі ці елементи, щоб зробити свій будинок комфортним і зручним.

Проект одноповерхового будинку 8х10 з гаражем
Розробка проекту одноповерхової будівлі
На комфорт проживання в будинку впливає безліч різних чинників. Але першочерговим з них за важливістю є характер розміщення кімнат, а також особливості їх взаємодії між собою.
Раціональний розподіл просторів визначається:
- розмірами кімнат;
- призначенням приміщень;
- розміщенням;
- зв’язками кімнат між собою і іншими видами приміщень, таких як веранди, коридори.
Фундаментна частина будинку є основою для створення планування. Сьогодні на підставі стандартних проектів можливості створення планувань істотно розширилися. Забудовники використовують заздалегідь розроблені креслення, які включають типові конструктивні та планувальні рішення. Завдяки цьому знижуються витрати на етап проектування, причому зменшується не тільки витрата грошових коштів, але й часу. Ідеї реалізуються в короткі терміни, вони максимально наближені до потреб більшої частини власників заміських ділянок.

Компактний одноповерховий будинок з оригінальним дизайном
Етап планування будівлі і його внутрішніх приміщень
Етап планування будівлі включає в себе декілька обов’язкових вимог, яких слід дотримуватися.
При складанні планування не варто забувати про наступних моментах:
- розташування по відношенню до розу вітрів;
- особливості навколишнього ландшафту і напрямок, в якому рухається протягом грунтових вод;
- розташування по відношенню до сторін світла;
- будівлі, розміщені на території, їх особливості та віддаленість від ділянки, відведеної під будівництво;
- наявність прив’язки до систем інженерії та комунікації;
- особливості прив’язки внутрішніх комунікаційних систем до приміщень будівлі;
- форма споруди;

Приклад планування одноповерхового будинку, призначеного для проживання сім’ї з 2-3 осіб
- можливість виявити приховані простори, придатні для застосування в якості корисних площ за умови внесення невеликих змін у типовий проект;
- кількість кімнат, їх призначення, зв’язок між внутрішніми приміщеннями будинку та особливості майбутньої експлуатації.
Корисна порада! Рекомендується зводити елементи комунікаційних систем у вузли. Це дозволить скоротити витрати і позбутися монтажу непотрібних деталей. Наприклад, кухня і ванна кімната повинні мати суміжне розміщення. Завдяки цьому зникне необхідність в прокладанні додаткового трубопроводу.

Тривимірний проект невеликого одноповерхового будинку
Корисна інформація для етапу проектування
Комунікаційні системи слід продумувати дуже ретельно. Краще, якщо ви зможете звести довжину трубопроводу до мінімуму, так як монтаж довгих труб супроводжується встановленням безлічі сполук. Чим більше сполук, тим вище ризики виникнення протікання.
Каналізаційна система потребує хорошого відтоку води. Вона має бути розрахована з тим, щоб мати можливість нормально прийняти об’єм рідини, якщо в будинку одночасно працює посудомийна і пральна машина, а також експлуатується ванна або душова кабінка. Цей момент залежить від кількості постійних мешканців у будинку і потреб кожного з них (а також побутової техніки) у воді.

Варіант планування одноповерхового будинку для сім’ї з дитиною
Приєднання житлового будинку до комунікаційних систем повинна здійснюватися в повній відповідності з санітарно-гігієнічними нормами. Як правило, стоки відходять на переробку в природному режимі, подразумевающем використання сили тяжіння. Відведення стоків здійснюється виключно в призначене для цього місце. Слід отримати спеціальний дозвіл санітарної служби і правильно організувати яму для стоків.
Важливо! Неприпустимо використовувати для відводу стоків дощову каналізацію та водоймища. Це може стати причиною отримання штрафу з боку санітарної інспекції або виклику до суду з боку комунального підприємства, а також спричинити забруднення навколишнього середовища і грунтових вод. Ретельно вивчіть правила і вимоги, що висуваються до процесу організації каналізаційної системи на заміській ділянці.

План одноповерхового будинку 8 на 8 м з однією спальною кімнатою
Місцева мережева компанія також може висувати певні вимоги щодо застосування побутової техніки. Заздалегідь дізнайтеся який межу і з урахуванням цих даних вводите в експлуатацію електричні прилади.
План одноповерхового будинку до 100 кв м: цікаві рішення
При оптимальному розташуванні будинку на ділянці вітру повинні бути спрямовані в скати даху. Завдяки цьому знижується опір і вітрове навантаження при сильних поривах і негоди. Більш того, опади не потраплятимуть у фронтони.
Якщо передбачається будівництво житлового споруди в регіоні, де спостерігаються різкі і часті зміни в напрямку вітрів, рекомендується застосовувати даху полувальмового або вальмового типу. Завдяки цим конструкціям з’являється можливість сформувати додаткові навіси і площини, що забезпечують ефективний захист стін від впливу опадів.

Якщо прибрати внутрішні перегородки, об’єднавши кухню, їдальню і вітальню, це візуально розширить внутрішній простір невеликого за розмірами будинку
Не варто забувати і про особливості ландшафтного рельєфу місцевості. Не рекомендується розташовувати будівля в крайніх точках, тобто виконувати будівництво у найвищою і найнижчою зонах ділянки.
Щоб визначитися з розміщенням будівлі слід відвідати місцеву адміністрацію і там отримати карту, що відображає геодезичне районування місцевості і всі особливості місцевого рельєфу. Така карта буде включати інформацію про розміщення ґрунтових вод, їх напрямку, особливості грунту та інші корисні для будівництва дані.

Одноповерховий будинок з мансардою площею до 100 кв м
План одноповерхового будинку 6 на 6 метрів
Планування одноповерхового котеджу, виконаного з деревини або будь-яких інших матеріалів, що ґрунтується на параметрах і особливості форми. Квадратні споруди, яким є будинок 6х6 м, вважаються оптимальними.
Зверніть увагу! Симетричність будівлі дозволяє створювати інтер’єри приміщень збалансованими і гармонійними. Цим обумовлюється підвищена популярність проектів з однаковою довжиною сторін.

План маленького будинку 6х6 м з одним поверхом
З урахуванням того, що габарити будинку 6х6 м невеликі, такий будинок може використовуватися в якості дачного котеджу. Його будівництво супроводжуватиметься меншими витратами, ніж зведення більш габаритного або двоповерхової споруди. Використовуючи інструменти і технології сучасного дизайну тут можна організувати всі умови, необхідні для комфортного проживання.
Чималої економії можна досягти за рахунок грамотної організації системи опалення, якщо в якості заміни для неї використовувати камін, укомплектований радіаторами, або котел з невеликою потужністю.

Котедж 6 на 6 м може використовуватися в якості дачного будиночка або ж для цілорічного проживання
У просторі площею 36 кв. м можна розташувати приміщення:
- вітальні;
- спальні;
- кухні;
- невеликого санвузла;
- котельні;
- передпокої.
Хорошим варіантом стане поєднання кухні і вітальні за типом студії. Завдяки цьому рішенню можна збільшити корисну площу.

План будинку 6х6 м з мансардним поверхом
План одноповерхового будинку 9 на 9 метрів
Одноповерхові будівлі 9х9 м щодо планування мають аналогічні характеристики, що і споруди квадратної форми меншого розміру. Перевага будівель з довжиною сторін 9 м полягає в тому, що збільшується корисна площа, яка дає можливість урізноманітнити інтер’єрне оформлення кімнат.
В якості прикладу можна розглянути дверні конструкції. Обмежені простору котеджу загальною площею 36 кв м в цілях економії вільного місця вимагають установки міжкімнатних дверей розсувного типу. Установка конструкцій зі стулками, які ховаються в спеціальний короб, розміщений в стіні, дозволить домогтися максимальної економії простору. У той час як житловий будинок з габаритами 9х9 м дозволяє виконувати монтаж класичних дверей з орними стулками.

Варіанти планування одноповерхового будинку 9 на 9 м
Корисна порада! З допомогою мансардного поверху можна частково вирішити проблему тісноти в невеликих будівлях. В цьому випадку зона мансарди використовується для розміщення великої спальної кімнати, що звільняє місце для організації кухні і вітальні з збільшеними розмірами. Однак доведеться підшукувати місце для установки сходової конструкції, що не викличе проблем, якщо мансарда включається до планування будинку 9х9 м.
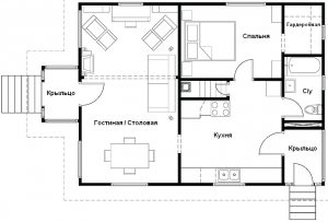
Планування одноповерхового будинку 8 на 10 метрів
Вибір планувань досить великий, тому у вас є всі шанси для того, щоб підібрати дійсно зручний і відповідний саме вам варіант. Будівництво на заміській ділянці будинку з параметрами 8х10 м дозволить обзавестися:
- чотирма спальнями;
- вітальні;
- кухнею.

3D-проект одноповерхового будинку 8 на 10 м
І це лише основні житлові приміщення. Не можна забувати про те, що в такому котеджі, на додачу до перерахованих кімнатах, можна організувати санвузли та підсобки. Планування може включати веранду або тамбур, що забезпечить додатковий захист від холоду в зимовий час.
При складанні плану будинку 8 на 10 м в цілях економії корисної площі можна відмовитися від організації довгих коридорів, які крадуть вільний простір. Крім того, вигідним рішенням стане об’єднання площ кухні і вітальні за рахунок видалення стіни, що розділяє дані приміщення.

План одноповерхового будинку 8х10 з мансардою, чотирма спальнями та балконом
Проекти одноповерхових будинків до 150 м2: фото і популярні планування
Деякі проекти можуть мати додаткові конструкційні елементи, які покращують архітектуру будівлі.
До таких елементів відноситься:
- еркер;
- балкон;
- тераса;
- веранда.
Зверніть увагу! Всі ці елементи мають вигляд зовнішніх прибудов (винятком є еркер), які призначені для експлуатації в теплу пору року і в хороших погодних умовах.
Тераса та веранда гарні для організації зони відпочинку. Ввечері цей простір може бути використано для чаювання в колі родини або друзів. Балкон стане прекрасним місцем для релаксації і споглядання краси ландшафту довкола будинку.

Планування одноповерхового будинку з досить великою площею
Еркер має більш складне функціональне значення для будівлі. Він ефектно прикрашає будинок зі сторони фасаду, а також здатний зробити більш цікавою внутрішнє планування. Крім цього, еркер дозволяє встановлювати великі вікна. За рахунок цього збільшується потік природного освітлення, який потрапляє в будинок з вулиці.
На кресленнях будівель з еркерами видно, наскільки цікавою стає звичайна прямокутна або квадратна коробка будівлі зі стандартними параметрами. Найчастіше еркери встановлюються в спорудах, складених з каменю або деревини. При цьому тип матеріалу безпосередньо впливає на форму даного елемента.

Великий одноповерховий будинок з горищними приміщеннями
Плани одноповерхового будинку 10 на 12 метрів і 10 на 10 метрів
Одноповерхові котеджі з габаритами 10х10 м і більше вже виходять за рамки проектів до 100 м. кв Найчастіше над будівництвом такої будівлі замислюються власники земельних ділянок з великою площею. Така споруда може бути використаний не тільки в якості дачного будиночка на літній сезон, але і здатне виконувати функцію повноцінного житла для постійного проживання сім’ї з декількох чоловік.
Перевага квадратних приміщень полягає в тому, що вони сприяють зручному розподілу предметів меблювання та оптимальні для організації гарного рівня освітлення.

План одноповерхового будинку з трьома спальнями, 10х12 м
У будівлі з розмірами 10х10 м може розміститися сім’я з 4-5 осіб. Якщо говорити в загальних рисах, то планування такого котеджу дозволяє створити умови проживання схожі з тим, що пропонує трикімнатна квартира в місті. За рахунок котельні в такому будинку забезпечується опалення.
Крім обов’язкових приміщень, власник може організувати інші кімнати, що забезпечують підвищений комфорт:
- облаштувати кабінет;
- збільшити габарити санвузли з подальшою установкою ванної замість душової кабінки;
- встановити джакузі.
Корисна порада! Якщо збільшити проект до 10х12 м, з’явиться можливість додати до загального плану приміщення кімнати для гостей і гардеробну.

Приклад вдалого планування одноповерхового будинку 10х10
План одноповерхового будинку 11 на 11 метрів
Одноповерхові будинки з бруса – прекрасна альтернатива цеглі та бетону. Котеджі з деревини не тільки мають невисоку вартість, але ще й екологічні. Для будівництва будинку з бруса 11х11 м буде потрібно не дуже багато часу. Натомість ви отримаєте близько 102,5 кв. м корисної площі і достатня кількість приміщень.
Проект будівель 11х11 м може включати в себе:
- кілька житлових кімнат;
- кухню;
- санвузол;
- хол;
- веранду, тамбур, котельню.

Одноповерховий будинок 11 на 11 м з мансардою і великим гаражем
В якості будівельного матеріалу рекомендується використовувати брус з параметрами 150х100. Горизонтальний тип будівництва дозволяє відмовитися від монтажу сходів, яка сама по собі має складну конструкцію і технологію зведення, та ще й займає частина корисної площі на першому поверсі, так і на другому. З одноповерховими будівлями такої проблеми немає.
План одноповерхового будинку 12 на 12 метрів
Одноповерхова будівля з розмірами 12х12 м зможе стати прекрасною основою для створення комфортної планування. Габарити житла дозволяють організувати:
- кілька спалень;
- вітальню;

Варіант планування одноповерхового будинку 12х12 м
- кухню;
- столову;
- два повноцінних санвузли.
Проекти 12х12 м дозволяють організувати цокольний поверх або мансарду. Прибудова у вигляді тераси або гараж зможуть розширити корисну площу будинку.
Існує маса варіантів для створення зручного і комфортного плану будівлі під забудову заміського ділянки. Вибір обмежується тільки вашою фантазією і бюджетом.
Артем Іванов 2018-11-23T14:37:15+00:00 Будівництво|Проект| ОЦІНИТЕ
МАТЕРІАЛ
Завантаження… ПОДІЛІТЬСЯ
У СОЦСЕТЯХFacebookTwitterOkGoogle+PinterestVk
