Унітаз: як встановити пристрій в залежності від типу конструкції
Одним з найскладніших етапів ремонту є ремонт санвузла. На перший погляд установка або заміна сантехніки може здатися нездійсненним завданням. Однак детально вивчивши технологію монтажу сантехнічного пристрою можна самостійно виконати його монтаж. Унітаз: як встановити пристрій в залежності від типу конструкції, детально викладено в даній статті.

Для того щоб правильно вибрати всі комплектуючі та знати, як встановити унітаз своїми руками, спочатку потрібно уважно вивчити теоретичний матеріал
Різновиди унітазів
Перед тим, як встановити унітаз, ціна якого залежить від виду виробу, слід дізнатися про типи сантехнічних пристроїв і особливості їх конструкції, що впливає на варіант монтажу пристрою. На підставі схеми унітазу в конструкцію пристрою входить сантехнічна чаша і зливний бачок. Чаша може мати тарілчасті, козиркову або воронкоподібну форму.

В даний час види унітазів розрізняють за формою чаші, методом установки, типу зливної конструкції і з’єднання з каналізаційним відведенням
За призначенням розрізняють дитячі, універсальні унітази та пристрої для людей з обмеженими можливостями. Перший варіант представлений малогабаритними виробами, оздобленими різними кольорами. Вони встановлюються в дошкільних установах. Універсальні унітази можуть бути використані людьми незалежно від віку і статі. Конструкція останнього варіанту додатково обладнана поручнями, підлокітниками і широкою чашею, яка регулюється по висоті.
Унітази можуть мати горизонтальну, вертикальну і косою форму випуску. Перший варіант передбачає під’єднання пристрою до каналізаційного випуску, розташованому в стіні приміщення. Унітази з вертикальним випуском приєднуються до відведення, розташованому в підлозі. Пристрої з косим випуском вважаються універсальними. Завдяки певним фасонним виробам унітаз можна під’єднати до каналізації через стіну, так і через підлогу.
Матеріал виготовлення
В залежності від матеріалу корпусу випускають пристрої з фаянсу, порцеляни, металу й натурального каменю. Вироби з порцеляни характеризуються високою міцністю, довговічністю і простотою в обслуговуванні. Матеріал стійкий до вбирання неприємних запахів. Однак унітази з порцеляни мають високу вартість. Вироби з фаянсу також характеризуються високою якістю виконання, але мають більш прийнятну вартість. До недоліків можна віднести схильність до вбирання запахів і боязнь хімічних речовин.

Вже давно вважається, що найбільш поширеним матеріалом, з якого виготовляють сантехніку, є саме фаянс
Для виготовлення унітазів може бути використано мармур, граніт, травертин або онікс. Такі вироби відносяться до елітної сантехніки. Вони характеризуються високою якістю, тривалим терміном експлуатації і унікальним дизайном. Однак унітази з натурального каменю мають високу вартість і велику вагу, що обмежує кількість варіантів установки пристрою.
Металеві унітази виготовляються з армованої сталі з нікельованим або хромованим покриттям. Вони відрізняються високою міцністю і прийнятною ціною. Проте із-за специфічного зовнішнього вигляду пристрій підходить під певний дизайн.
Класифікація унітазів по виду установки
У залежності від варіанта установки чаша може бути навісна, підлогового, приставний або внутрипольной. Навісний, або вбудований в стіну унітаз не стикається з підлогою, а встановлюється на міцну інсталяцію, вмонтовану в стіну, в якій також розташовується бачок для зливу. У цьому випадку вся комунікація прихована, що дозволяє збільшити вільний простір приміщення і отримати естетичний вигляд санвузла. Однак такий варіант потребує значних фінансових складань. Що пов’язано з монтажем рамної інсталяції. Така скритність ускладнює процес подальшого обслуговування і ремонту.

Найбільш популярна модель унітазу — підлогова, для його установки не потрібні спеціальні пристосування
Приставні вироби встановлюються на підлогу, а всі труби, запірна арматура і зливний бачок ховаються в стіну. Візуально буде видно лише кнопка зливу. Незважаючи на те, що прихована частина конструкції, що створює привабливий зовнішній вигляд санвузла, з практичної точки зору це не саме вдале рішення. Обслуговування і ремонт в цьому випадку є досить складним і трудомістким процесом.
Внутрипідложні сантехустройства встановлюються в поглибленні підлоги. Такий варіант часто використовується для облаштування громадських туалетів. Самим популярним і зручним рішенням є монтаж підлогового унітазу. Конструкція відрізняється невисокою вартістю, установка пристрою виконується швидко і легко, не вимагає спеціальних навичок. Зручне розташування конструкції і комунікацій сприяє легкому обслуговування і ремонту.
Варіанти конструкції зливного бачка
Унітаз може бути оснащений різним типом зливним бачком, який може розташовуватися на чаші або встановлюватися окремо. Компакт моделі, в яких бачок стоїть на чаші або спеціальній полиці, ідеально підходять для невеликих санвузлів. У цьому випадку кріплення бачка до унітазу виконується до проведення монтажу пристрою.

Системи конструкцій унітазів з прихованим бачком відкривають прекрасну можливість встановлювати туалети в різних точках приміщення
Моноблоки являють собою цілісний виріб, що складається з чаші і бачка. Така конструкція має привабливий зовнішній вигляд і доступну вартість.
Кутові унітази є різновидом компакт моделей. Конструкція має трикутну форму, що дозволяє встановити пристрій в кутку і заощадити при цьому додатковий вільний простір. Розмір унітазу з бачком становить всього 34х72х37 див. Така модель зробить приміщення цікавим і унікальним.
В окремих моделях бачок може розташовуватися на стіні або під стелею. Він з’єднується з чашею з допомогою зливної труби. Це досить громіздка модель, яка доречна лише для великих приміщень. У цьому випадку бачок монтується після установки унітазу. Однак такі моделі сьогодні встановлюються досить рідко.
Установка бачка унітазу залежить від його виконання. Він може розташовуватися на чаші унітазу або бути закріпленим на стіні вище пристрої. Вивчити особливості кожного варіанта допоможе відеоурок «Як встановити унітаз своїми руками і закріпити бачок».

Дизайн моделей унітазів моноблоком досить простий і лаконічний, за рахунок цього добре вписується в інтер’єр будь-якого санвузла
Підготовчий етап установки унітазу
Монтаж пристрою можна виконати самостійно, або скористатися послугами фахівців. Скільки коштує встановити унітаз в квартирі, буде залежати від виду виробу та варіанти кріплення. В середньому вартість послуг становить 2000 руб.
Якщо вирішено питання приступити до заміни унітазу своїми руками, слід підготувати необхідний набір інструментів і матеріалів:
- перфоратор або дриль зі свердлами по бетону і для керамічної плитки;
- розвідний гайковий ключ;
- молоток або зубило;
- гумовий шпатель;
- гнучкий шланг для підключення подачі холодної води;
- фум-стрічка;
- кульовий кран;
- герметик;
- гофра або фанова труба;
- кріплення для унітазу;
- цементно-піщаний розчин.

Якісно виконати монтаж унітазу своїми руками неможливо з мінімальним набором необхідних інструментів, який є в будинку у будь-якого господаря
Важливо! Якщо унітаз встановлюється на інсталяцію, перерахований вище список доповнюється відповідним набір, який купується в магазині сантехніки.
Перед тим, як встановити унітаз своїми руками, слід демонтувати старе пристрій. Перекривається подача холодної води на бачок, і з нього зливається вся рідина. За допомогою гайкового ключа відкручується і знімається шланг, що з’єднує бачок з водопроводом. Далі слід демонтувати сам бачок, який був прикручений до чаші унітазу за допомогою болтів.
Тепер необхідно демонтувати сам унітаз. Послідовність дій буде залежати від варіанта установки пристрою. Якщо унітаз був прикручений до підлоги за допомогою болтів, досить відкрутити кріплення і зняти сантехустройство. Якщо чаша змонтована на дерев’яному постаменті, тафти, тоді необхідно від’єднати шурупи від дошки. А потім видалити саму тафту. В результаті в підлозі утворюється заглиблення, яке слід закрити цементно-піщаним розчином.
Важливо! Цементний розчин твердне через місяць, але свердлити отвори для нового кріплення можна вже через тиждень.

При установці унітазу вирішуються наступні завдання: під’єднання до каналізації, герметизація основи і міцне закріплення на підлозі
Якщо випуск закладено цементним розчином, його можна зруйнувати за допомогою зубила або молотка. Процес слід виконувати обережно, щоб не пошкодити сам чавунний випуск. Щоб неприємні запахи з каналізації не поширювалися по приміщенню, отвір слід закрити заглушкою.
Якщо унітаз змонтований за допомогою клейової мастики, достатньо за допомогою будівельного ножа послабити ущільнення і вдарити, як слід, спереду по чаші. Далі необхідно витягнути випуск з манжети.
Унітаз: як встановити пристрій. Способи монтажу
Варіант установки унітазу, відео наочно покаже послідовність дій, залежить від виду пристрою і його конструктивних особливостей. Підлогові пристрої вважаються найбільш поширеним типом обладнання. Вони монтуються на підлогове покриття після завершення всіх оздоблювальних робіт. Послідовність дій залежить від варіанта установки підлогового унітазу.
Кріплення унітазу до підлоги може здійснюватися відкритим або закритим способом. Перший варіант передбачає установку виробу за допомогою спеціальних зовнішніх кріплень, які йдуть в комплектації пристрою. Другий спосіб є більш трудомістким. Монтаж унітазу здійснюється за допомогою внутрішнього кріплення, що дозволяє отримати більш естетичний вигляд пристрою.

Кріплення унітазу до підлоги відкритим способом не таке естетичне, як внутрішнє, але монтувати його значно простіше
Навісні унітази встановлюються на певній висоті над рівнем підлоги за допомогою спеціальних конструкцій-інсталяцій, на які кріпиться сама система. Монтаж пристрою виконується до початку оздоблювальних робіт.
Вибір варіанта установки також залежить від способу приєднання унітазу до каналізаційної труби. Унітази з горизонтальним випуском підключаються до системи каналізації під прямим кутом. Пристрої з косим випуском підключаються під кутом 45 град. Каналізаційний розтруб для підключення пристрою з вертикальним випуском розташовується в підлозі.
Перш ніж приступити до монтажу унітазу слід підготувати підставу. Для підлогового пристрої воно повинно бути рівним.
Варіанти підключення унітазу до каналізації
Для підключення унітазу до каналізації можна використовувати один з наступних з’єднувальних елементів:
- фанова труба;

Підключення конструкції унітазу
- патрубок пластиковий;
- ексцентрик;
- гофра.
З допомогою пластикових патрубків можна виконати підключення будь-якої конфігурації. При монтажі сполучних елементів слід обов’язково використовувати гумові ущільнювачі. Щоб отримати щільне і надійне з’єднання додатково рекомендується використовувати герметик.
Стаття по темі:

Ідеї для оформлення. Вибір оздоблювальних матеріалів. Нюанси планування і освітлення. Корисні поради.
Фанова труба найчастіше використовується для горизонтального випуску. Тут слід враховувати, що розтруб каналізаційної труби і випуск унітазу повинні ідеально підходити один до одного, тому що змістити пристрій не вийде.
Якщо підключення до каналізаційного випуску відбувається за допомогою ексцентричного манжета, герметик можна не використовувати, оскільки конструкція деталі створює необхідну герметичність. Вихідна частина ексцентрика вставляється в каналізаційний випуск. Тут важливо правильно підібрати діаметр деталі. Другий кінець ексцентрика надівається на висновок унітазу. Конструкція даного з’єднувального пристрою дозволяє змістити унітаз на невелику відстань щодо каналізаційного стояка.

Гофра для підключення унітазу до каналізації
Самим популярним і простим варіантом з’єднання стояка з унітазом є використання гофри, яку можна застосовувати для будь-якого виду унітазу. Як встановити гофру на унітаз? На один край гофри наноситься хвиляста смужка силіконового герметика. Ця частина вставляється в каналізаційний випуск. Така ж процедура виконується з іншим краєм гофри, який одягається на горловину унітазу. Місця з’єднання притискаються пальцями.
Способи кріплення підлогового унітазу
Існує три способи, як встановити унітаз своїми руками, відео наочно відображає послідовність дій кожного з них:
- установка на дерев’яну основу;
- монтаж на дюбелі;
- установка на клей.

Один із способів монтажу унітазу на дерев’яну основу — установка конструкції на тафту
Монтаж унітазу на дюбелі вважається найпоширенішим варіантом. Цей спосіб зазвичай використовується для монтажу виробу на кахельну плитку. Перед установкою слід підготувати підставу, яке повинно бути ідеально рівним. Підлогова плитка повинна бути укладена до монтажу. Це самий бюджетний варіант при вирішенні питання, скільки коштує встановити унітаз. Адже витрати залежать лише від вартості пристрою.
Установка унітазу на клей здійснюється тільки на гладке підставу. Для виконання монтажу необхідно використовувати якісний склад, в якості якого може виступати силіконовий клей, епоксидна смола з затверджувачем або рідкий герметик. Насамперед виконується розмітка: унітаз обводиться по контуру. Місце установки очищається від забруднень. Для кращої адгезії клею і поверхні її рекомендується обробити наждаковим папером і знежирити. На підставі інструкції готується склеювальний склад. Він наноситься на обведений контур, зазначений на підставі і на дно унітазу. Пристрій ставиться на місце і притискається до підлоги.
Корисна порада! Для повного висихання клею може знадобитися не менше 12 годин, протягом яких унітаз не можна експлуатувати.
Як встановити унітаз у приватному будинку на дерев’яну підлогу? Для цього слід скористатися способом монтажу пристрою на дерев’яну основу, тафту. Вона являє собою дерев’яний брус з твердих порід деревини товщиною 2,8-3,2 див.

Установка унітазу на дерев’яну підлогу під силу навіть початківцю майстру, головне – ознайомитися з усіма тонкощами роботи та вибрати оптимальний метод монтажу
Корисна порада! Заготовку необхідно обробити проти гниття оліфою.
Для кріплення надійно тафти до підлоги на ній слід закріпити анкера, які повинні виступати на 2-3 см над рівнем дошки. Далі в підлозі виконується виїмка, яка заповнюється цементним розчином. Тафта перевертається виступаючими анкерами вниз і топиться в цементний розчин. Брус повинен розташовуватися урівень з підлогою. Монтаж унітазу слід виконувати після повного висихання цементу.
Сантехнічне пристрій ставиться на тафту і фіксується на ній за допомогою шурупів, під капелюшки яких укладаються гумові прокладки. Щоб шурупи легко вкручувалися і викручувалися, рекомендується змазати їх тавотом або графітом.

При монтажі унітазу до підлоги відкритим способом видно всі кріпильні елементи з зовнішньої сторони конструкції, що спрощує їх фіксацію
Корисна порада! Замість дерев’яного бруса можна використовувати старий гумовий килимок або шматок лінолеуму.
Як встановити унітаз на плитку за допомогою дюбелів
Кріплення унітазу за допомогою дюбелів може бути відкритим або закритим. Відкритий спосіб установки припускає використання зовнішнього кріплення унітазу за допомогою спеціальних болтів, що входять в комплектацію унітазу. В першу чергу слід визначити місце установки пристрою з урахуванням розташування всіх підвідних комунікацій. Обладнання виставляється на плитку і виконується розмітка всіх отворів.
Корисна порада! Щоб оцінки були максимально точними, слід олівець тримати строго вертикально.

Для того, щоб встановити унітаз на плитку за допомогою дюбелів, дрилем просвердлюється отвір потрібної глибини, в залежності від розміру придбаних кріплень
Зазначені місця слід просвердлити для подальшої установки дюбелів. Відразу слід використовувати свердло по склу, щоб не пошкодити крихку плитку, а потім необхідно застосувати свердло по бетону, щоб не пошкодити перше. Отвори слід очистити від пилу. Для додаткової гідроізоляції їх необхідно заповнити силіконом. Далі вставляються монтажні дюбеля.
Унітаз необхідно встановити на місце, попередньо змастивши контур підстави силіконом для створення гарної вологоізоляції. В підготовлені отвори необхідно змонтувати кріпильні втулки, куди закручуються монтажні болти, на які встановлюються заглушки. За допомогою гумового шпателя слід видалити надлишки силікону до його затвердіння. Далі встановлюється бачок унітазу. Як зібрати пристрій можна докладно побачити на відео, розміщене в мережі Інтернет. Після чого необхідно виконати підключення пристрою до комунікацій.
Як встановити унітаз в приватному будинку своїми руками закритим способом? Як і в попередньому варіанті спочатку слід підготувати місце установки, правильно розрахувавши відстані для шлангів і труб. Кріплення до унітазу необхідно приєднати заздалегідь. Сантехнічне пристрій встановлюється на певне місце і обводиться по контуру маркером з позначкою місць кріплення. Висвердлюють отвори, в які поміщаються дюбеля. До них за допомогою спеціальних болтів необхідно прикрутити внутрішнє кріплення.

Встановити унітаз на плитку за допомогою дюбелів прихованим способом складніше, але кінцевий результат виглядає набагато естетичність
Далі виконується підключення унітазу до необхідних комунікацій. Для герметизації трубних з’єднань слід використовувати фум-стрічку. Після підключення унітазу до водопроводу та каналізації на корпусі пристрою слід грунтовно затягнути болти на кріпленнях.
Важливо! Якщо в санвузлі встановлена система теплої підлоги, монтаж унітазу закритим спосіб виконувати заборонено.
Вивчити особливості методів монтажу допоможе відео «Як встановити унітаз в квартирі своїми руками».
Установка підвісного унітазу
Вирішити питання, як встановити підвісний унітаз, можна двома способами. Перший варіант передбачає монтаж пристрою на бетонну основу, другий — на металеву інсталяцію.

В підвісній унітазі набагато краще працює система змиву з-за особливостей конструкції, до того ж, у таких системах присутня подвійна кнопка змиву, що дозволяє витрачати менше води
Установка навісного унітазу першим способом починається з виконання розмітки. В стіні просвердлюються отвори для монтажу стрижнів для кріплення унітазу. Далі встановлюється дерев’яна опалубка, щити якої виставляються строго вертикально і кріпляться між собою саморізами. У центральній її частині також виконуються два отвори. Потім встановлюється муфта для зливу води.
В отвори в стіні наноситься клей і вставлені стрижні, які повинні виходити з щита опалубки строго горизонтально. Заливка порожнини бетоном. Після його застигання опалубка видаляється. За допомогою гофри виконується підключення до пристрою зливного бачка. Гофра фіксується силіконовим герметиком. Унітаз навішується на стрижні і затискається за допомогою пластикової шайби і гайки. На завершення підключення підвісної бачка і випробування зливу. Весь процес наочно можна побачити на відео «Як встановити унітаз підвісної типу на бетонну основу».
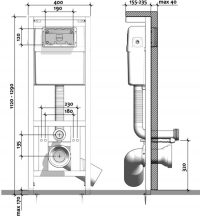
Як встановити інсталяцію унітазу
Підвісний унітаз може встановлюватися на інсталяцію, яка входить в комплектацію. Вона являє собою металеву раму, яка кріпиться до стіни, а на неї навішується чаша унітазу.

Схема інсталяції конструкції унітазу
Однією з найпопулярніших вважається інсталяція Геберит, установка якої виконується на підставі інструкції. Рама встановлюється вертикально і фіксується до стіни і підлоги за допомогою спеціальних кріплень. За допомогою нижніх упорів виконується регулювання рами по висоті, а верхні допомагають виставити рівну відстань від стіни.
Важливо! Центр інсталяції повинен розміщуватись над серединою каналізаційного виходу.
Коли рама змонтована, можна приступати до установки на свої місця згідно інструкції з’єднувальних елементів, таких як муфти і патрубки. Далі слід у відповідні гнізда встановити металеві стрижні, які будуть утримувати чашу унітазу. На необхідній відстані висувається патрубок каналізації і скобою фіксується в заданому положенні. Потім необхідно підключити до бачка воду за допомогою гофрованої труби. З’єднання фіксуються за допомогою накидної гайки. На завершення необхідно встановити кришку на місце і інсталяція готова.
Щоб закрити інсталяцію можна змонтувати фальшстені з гіпсокартону, листи якого кріпляться до змонтованим профілів і рамі інсталяції. Після декоративного облицювання поверхні стіни на металеві стрижні навішується чаша унітазу. Її випуск щільно і герметично заходить в пластиковий розтруб. В завершення процесу слід встановити декоративну панель зливного пристрою з кнопкою. Більш детально ознайомитися з установкою інсталяції geberit можна на відео, розташоване на спеціалізованих сайтах.

Інсталяції економлять простір і приховують сливи: всі труби і комунікації залишаються поза увагою і розміщуються в стіні
Перш ніж приступити до монтажу унітазу своїми руками слід детально вивчити всі тонкощі цього питання. Хід виконання робіт залежить від виду виробу та способу його установки. Дотримання інструкції дозволить виконати монтаж якісно і надійно, отримавши в результаті довговічне сантехнічне виріб і естетичний вигляд санвузла. У разі залучення фахівців слід з’ясувати, скільки коштує встановити унітаз. Ціна послуг може бути різною.
Установка унітазу своїми руками: відеоурок
Ірина Дудка 2018-06-04T18:19:09+00:00 Ванна і Туалет, Сантехніка| ОЦІНИТЕ
МАТЕРІАЛ
Завантаження… ПОДІЛІТЬСЯ
У СОЦСЕТЯХFacebookTwitterOkGoogle+PinterestVk
