Саморобний токарний станок по металу своїми руками: виготовлення та експлуатація
Токарний верстат потрібен для виготовлення та обробки металевих деталей. Професійне обладнання коштує досить дорого, тому в цілях економії можна виготовити саморобний токарний станок по металу своїми руками. Зробити це можна кількома способами, а креслення подібного вироби легко знаходяться в інтернеті. Використовувати для виготовлення можна підручні матеріали, розмір верстата може бути будь-яким.

Професійний токарний верстат має високу вартість, тому має сенс виготовити подібний пристрій самостійно
Складові міні-токарного верстата по металу своїми руками
Будь саморобний токарний верстат складається з наступних елементів:
- привід – основна частина механізму, яка відповідає за його потужність. Вибір приводу необхідної потужності є однією з найбільш складних завдань. У невеликих токарних верстатах по металу своїми руками можна використовувати привід від звичайної пральної машини або дриля. Зазвичай, потужність цього елементу починається від 200 Вт, а кількість оборотів в хвилину – від 1500;
- станина – несуча рама конструкції, яка може бути виготовлена з дерев’яних брусків або сталевого куточка. Станина має характеризуватися високою міцністю, інакше вся конструкція може розвалитися від вібрацій під час роботи;

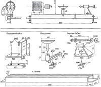
Проекція і основні вузли токарного верстата по металу
- задня бабка – виготовляється зі сталевої пластини і привариваемого до неї сталевого куточка. Пластина впирається в направляючі станини, а основним призначенням задньої бабки токарного верстата своїми руками є фіксація металевої деталі при обробці;
- передня бабка – частина, аналогічна задньої бабки, але встановлюється на рухомій рамі;
- ведучий і ведений центри;
- супорт – наполеглива механізм для робочої частини.
Обертальний момент від двигуна до робочої частини верстата може передаватися декількома способами. Хтось віддає перевагу безпосередньо встановлювати робочу частину на вал двигуна – це економить місце і дозволяє заощадити на запчастинах. Якщо ж такий варіант неможливий, крутний момент можна передавати за допомогою фрикційної, ремінної або ланцюгової передачі. У кожного з цих варіантів є свої переваги і недоліки.
Ремінна передача для електродвигуна є найдешевшою і характеризується досить високим рівнем надійності. Для її виготовлення можна використовувати ремінь для електродвигуна, знятий з будь-якого іншого механізму. Недолік пасової передачі полягає в тому, що з часом ремінь може стиратися і його доведеться міняти тим частіше, чим інтенсивніше ви працюєте з верстатом.

Пристрій передньої і задньої бабки токарного верстата. Передня бабка (зліва): 1 — клиноподібний ремінь; 2 — шків двоступінчастий; 3 — шпиндель; 4 — підшипник кульковий. Задня бабка (праворуч): 1 — корпус; 2 — центр; 3, 6 — рукоятка; 4 — пиноль; 5, 12, 14 — гвинти; 7 — маховик; 8 — тяга; 9, 10 — важелі; 13 — гайка
Ланцюгова передача коштує дорожче і займає більше місця, але і прослужить значно довше, ніж ремінна. Фрикційна передача має проміжні характеристики між пасової та ланцюгової.
Корисна порада! При складанні токарного верстата вибирайте той тип передачі, який найкраще буде відповідати поставленим завданням. Наприклад, для міні-токарного верстата своїми руками краще підійде установка робочої частини безпосередньо на вал.
Супорт токарного верстата своїми руками: креслення, як зробити з підручних матеріалів
Супорт є однією з найважливіших частин саморобного токарного верстата – від нього залежить якість майбутньої деталі, а також кількість часу і сил, які ви витратите на її виготовлення. Ця частина розташовується на спеціальних полозках, які переміщаються по напрямних, розташованим на станині. Супорт може рухатися в трьох напрямках:
- поздовжнє – робоча частина верстата рухається вздовж заготовки. Поздовжнє рух використовується для виточування різьби в деталі або для зняття шару матеріалу з поверхні металевої заготовки;

Токарний верстат по металу, створений своїми руками
- поперечний рух перпендикулярно до осі заготовки. Використовується для виточування поглиблень і отворів;
- похиле – рух під різними кутами для виточування заглиблень на поверхні заготовки.
При виготовленні супорта токарного верстата своїми руками варто враховувати той момент, що ця частина схильна до зносу в результаті виникають під час роботи вібрацій. З-за них кріплення розхитуються, виникає люфт, все це впливає на якість виготовленої деталі. Для того щоб уникнути таких проблем, супорт необхідно регулярно підлаштовувати і регулювати.
Регулювання саморобного супорта для токарного верстата своїми руками здійснюється по щілинах, люфту і сальникам. Регулювання зазорів потрібна в тому випадку, коли зносився гвинт, який відповідає за переміщення частини в подовжній і поперечній площинах. В результаті тертя супорт починає розхитуватися при навантаженнях, що значно знижує точність виготовлення деталі. Усунути зазори можна шляхом вставки клинів між напрямними і кареткою. Люфт деталі усувається за допомогою закріплює гвинта.
Якщо ж у вашому верстаті зносилися сальники, їх слід ретельно промити і просочити свіжим машинним маслом. У разі критичного зносу сальники краще повністю замінити на нові.

Пристрій супорта: 1 — каретка супорта; 2 — ходовий гвинт; 3 — поперечні санчата супорта; 4 — поворотна частина супорта; 5 — напрямні поворотної частини; 6 — резцедержатель; 7 — гвинт для закріплення резцедержателя; 8 — гвинти для закріплення різців; 9 — рукоятка для повороту резцедержателя; 10 — гайки; 11 — верхня частина супорта; 12 — поперечні напрямні каретки; 13 — ручка для переміщення верхньої частини супорта; 14 — рукоятка для переміщення поперечних санчат; 15 — рукоятка для включення подачі супорта від ходового гвинта; 16 — маховичок для поздовжнього переміщення супорта; 17 — фартух
Саморобний токарний станок по металу своїми руками: порядок складання
Збірка механізму виконується в наступному порядку:
Крім того, за кресленнями токарного верстата по металу своїми руками видно, що для підвищення стійкості різцевого механізму виготовляється підручника, а на нижній частині конструкції закріплюється тонка смуга металу. Остання служить для захисту робочої частини верстата від деформації в процесі роботи.

Пристрій саморобного токарного верстата для обробки металу: 1, 7 — швелери; 2 — ходова труба; 3 — задня бабка; 4 — піддон для збору стружки; 5 — супорт; 6 — ходовий гвинт; 8 — електродвигун; 9 — нерухома передня бабка; 10 — лампа в захисному ковпаку-відбивачі; 11 — сітчастий екран для захисту від токаря стружки; 12 — опора
Корисна порада! Токарний верстат по металу, зібраний своїми руками, може бути використаний не тільки за прямим призначенням, але і для шліфування і полірування металевих деталей. Для цього до електричного валу приєднується шліфувальний круг.
Вибір електродвигуна для верстата
Найважливішою частиною саморобного токарного верстата по металу, виготовлення відео якого можна легко знайти в інтернеті, є електродвигун. Саме з його допомогою здійснюється рух робочої частини верстата. Відповідно, від потужності цього механізму залежить потужність усієї конструкції. Вона вибирається в залежності від розмірів металевих заготовок, з якими ви плануєте працювати.
Якщо ви плануєте працювати на верстаті з дрібними деталями, для цього цілком підійде мотор з потужністю до 1 кВт. Його можна зняти зі старої швейної машинки або будь-якого іншого подібного електроприладу. Для роботи з великими запчастинами вам знадобиться двигун з потужністю в 1,5-2 кВт.
При складанні за готовим кресленням саморобного токарного верстата по металу враховуйте, що всі електричні частини конструкції повинні бути надійно ізольовані. Якщо у вас немає досвіду роботи з електричним обладнанням, краще звернутися за допомогою по підключенню до фахівця. Так ви будете впевнені в безпеці роботи і надійності конструкції.

Асинхронний двигун є оптимальним варіантом для саморобного токарного верстата
Виготовлення токарного верстата з дрилі своїми руками
Якщо ви хочете заощадити на запчастинах і значно спростити собі завдання по зборці саморобного токарного верстата, в якості приводу можна використовувати звичайну електричну дриль. У такого конструктивного рішення є ряд переваг:
Звичайно, є і негативні сторони у токарного верстата з дрилі. Як зробити обробку з допомогою даного інструменту великих деталей можливої? Це практично нездійсненно, так як у дрилі відносно невеликий крутний момент і велике число обертів. Звичайно, можна підвищити ці параметри, якщо все-таки встановити ремінну передачу і з її допомогою передавати обертовий момент від дриля на шпиндель, але це значною мірою ускладнить конструкцію, головною перевагою якої є простота і компактність.

Схема пристрою саморобного токарного верстата на основі дрилі: 1 — кріплення до столу або верстата; 2 — передня опора; 3 — опора під заготівлю; 4 — задня опора
Виготовлення саморобного настільного токарного верстата по металу на основі дрилі має сенс у тих випадках, коли у вас немає необхідності в проведенні масштабних робіт, а виточувати потрібно тільки дрібні деталі.
Для виготовлення токарного верстата по металу на основі електродрилі вам знадобляться ті ж деталі, що і для звичайної конструкції за винятком електродвигуна і передньої бабки. Роль останньої також виконує дриль. Враховуючи компактність конструкції, як станини може використовуватися звичайний стіл або верстак, на якому будуть фіксуватися всі складові верстата. Сама дриль закріплюється в конструкції за допомогою хомута і струбцини.
Корисна порада! Функціональність токарного верстата на основі електродрилі можна істотно розширити, якщо додати до його конструкції різні насадки і додаткові пристосування.
За допомогою саморобного токарного верстата можна не тільки виточувати деталі, але і наносити на обертову заготівлю фарбу, здійснювати намотування дроту на трансформатор, робити на поверхні деталі спіральні насічки і виконувати багато інших дій. Крім того, якщо зібрати для верстата приставку-копір, то з її допомогою можна швидко і без особливих зусиль робити невеликі однакові деталі.

Креслення передньої опори, всередині якої закріплюється дриль
Особливості роботи токарних верстатів з металу своїми руками, відео-інструкції як спосіб уникнути помилок
Як і у будь-якого іншого обладнання, у саморобних токарних верстатів є свої особливості, які необхідно враховувати при збірці і експлуатації. Наприклад, при роботі з великими деталями або при використанні потужного електродвигуна виникають сильні вібрації, які можуть призвести до серйозних похибок при обробці деталі. Щоб позбутися від вібрацій, ведучий і ведений центри верстата необхідно встановлювати на одній осі. А якщо планується встановлювати тільки провідний центр, до нього повинен кріпитися кулачковий механізм.
У настільних токарних верстатах своїми руками з металу не рекомендується встановлювати колекторний двигун. Він схильний до мимовільного збільшення числа оборотів, що може призвести до вильоту деталі. Це, в свою чергу, може призвести до виробничих травм або псування майна. Якщо ж без установки колекторного двигуна ніяк не обійтися, в комплекті з ним обов’язково потрібно встановлювати редуктор для пониження оборотів.
Ідеальним варіантом двигуна для саморобного токарного верстата є асинхронний. Він не збільшує частоту обертів під час роботи, стійкий до великих навантажень і дозволяє працювати з металевими заготовками з шириною до 100 мм.

Найголовніше при роботі на токарному верстаті — дотримання техніки безпеки
Правила установки та експлуатації будь-якого типу електродвигуна для токарного верстата можна подивитися в численних відео-інструкціях в інтернеті. З їх допомогою ви не лише уникнете поширених помилок при складанні, але і заощадите час і сили завдяки наочності матеріалу.
Техніка безпеки при роботі з саморобним токарним верстатом
При роботі з конструкцією слід дотримувати певні заходи безпеки. Так, після складання верстата потрібно здійснити перевірку його працездатності. Шпиндель повинен обертатися легко і без затримок, передній і задній центри повинні бути вирівняні по загальній осі. Центр симетрії обертової деталі повинен збігатися з віссю її обертання.
На будь-якому відео токарного верстата своїми руками видно, що після монтажу електродвигуна він накривається спеціальним кожухом. Останній служить не тільки для захисту оператора верстата, але і для захисту самого двигуна від попадання пилу, металевих частинок і бруду. Для верстата, виготовленого на основі електродрилі, такий кожух не потрібен.
Корисна порада! Якщо ви плануєте монтаж конструкції на основі потужного електродвигуна, то обов’язково переконайтеся в тому, що для роботи з ним вистачає потужності вашої електромережі. В домашніх умовах краще обійтися мотором від побутової техніки, який точно буде працювати від напруги у вашій розетці.

Приклад токарного верстата по металу, зібраного своїми руками
Також слід дотримуватися наступних правил безпеки:
Варіанти модернізації саморобного токарного верстата
Якщо вам потрібен механізм, який зможе не тільки виконувати токарні роботи, але і шліфувати і фарбувати заготівлю, базовий верстат можна легко модифікувати. Найкраще робити це для конструкції на основі електродрилі, так як замінити робочу частину у ній простіше всього.

Токарний верстат може бути багатофункціональним пристроєм в майстерні, з допомогою якого можна виконувати різні роботи, в тому числі побутові: заточку ножів, ножиць та ін.
Існує кілька популярних модифікацій токарного верстата по металу. Як зробити конусоподібний отвір? Для цього до основи необхідно прикріпити два напилка таким чином, щоб вони утворювали трапецію. Після цього монтується пружинний механізм, який забезпечує подачу напилків вперед і під кутом, що дозволяє свердлити в деталі конусоподібні отвори.
Крім того, для роботи з металевими деталями різної довжини можна зробити верстат з розбірної основою. За допомогою декількох дощок або металевих кутників можна наближати або віддаляти робочий інструмент до кріплень, що утримує деталь, а також змінювати розмір зазору між кріпленнями. Найзручніше робити таку конструкцію на основі звичайного столу або верстата.
Якщо прикріпити до електродвигуна в якості робочого інструменту шліфувальний круг, за допомогою верстата можна займатися не тільки поліруванням поверхні деталі, але і заточки ножів, ножиць та інших побутових інструментів. Таким чином, токарний верстат перетворюється в зручний багатофункціональний механізм.

Створення токарного верстата своїми руками дозволить отримати обладнання, оптимально підходить під потреби власника
Збірка токарного верстата в домашніх умовах є досить простим завданням, яку ще більше спрощують численні відео-інструкції і креслення з інтернету. При цьому зібрати конструкцію можна буквально з підручних частин, використовуючи для цього стару побутову техніку та відходи монтажного та будівельного виробництва.
Основна перевага самостійної збірки – це економія коштів. Крім того, варто відзначити можливість самостійно регулювати габарити і потужність пристрою, щоб пристосувати його під свої потреби. Саморобний верстат може бути не тільки великим, але і зовсім мініатюрним, призначеним для обробки дрібних деталей.
Артем Іванов 2018-06-03T21:57:03+00:00 Інструменти|Своїми руками| ОЦІНИТЕ
МАТЕРІАЛ
Завантаження… ПОДІЛІТЬСЯ
У СОЦСЕТЯХFacebookTwitterOkGoogle+PinterestVk
