Саморобні верстати і пристосування для домашньої майстерні
У даній статті розглядаються саморобні верстати і пристосування для домашньої майстерні. Тут докладно викладено особливості найпопулярніших і необхідних інструментів, зроблених своїми руками, а також пристосувань для майстерні або гаража, покрокові технології їх виготовлення та інші корисні рекомендації по цій темі.

Багато власників домашніх майстерень створюють своїми руками необхідне їм обладнання
Саморобні верстати і пристосування для домашньої майстерні: загальна інформація
Кожен власник гаража або майстерні в залежності від своїх потреб сам підбирає оснащення. Багато з них знають як робляться саморобні верстати і пристосування для гаражів, тому обходяться власними силами при облаштуванні приміщення, підганяючи вже під себе технічні особливості конструкцій.
Так, при створенні металевого слюсарного верстата своїми руками креслення і розміри виробу на них можна підігнати під параметри приміщення та інші умови. Навіть для невеликої домашньої майстерні потрібно відвести достатньо простору, щоб розмістити хоча б конструкцію універсального складного верстата і мінімальний набір інструментів. Необхідна площа для цього становить мінімум 3-5 м2.

Майстерня, обладнана в спеціально відведеному для цього приміщенні
Корисна порада! Майстерню краще облаштовувати в окремому приміщенні, щоб шум від роботи саморобного шліфувального верстата по дереву і іншого інструменту не заважав мешканцям. Під розміщення верстатів можна відвести гараж, площі якого достатньо для комфортної роботи і встановлення обладнання.
Виготовлення пристосувань для зберігання інструменту: полиці, стелажі
Насправді дуже складно домогтися оптимальних робочих умов. Бажано, щоб розмір приміщення був не менше 6,5 м. Для облаштування майстерні можна зробити прибудову до будинку чи гаражу. Це рішення буде найбільш вигідним при будь-якому розкладі.
Перед тим, як проектувати креслення складного верстата своїми руками, який має саму габаритну конструкцію (тому його розміри враховуються в першу чергу), варто визначитися з деякими моментами:
- визначити, які види робіт будуть виконуватися в майстерні;
- визначити перелік необхідного інструментарію та обладнання.
З допомогою кріплення інструменту на стіні можна істотно заощадити корисний простір в майстерні. Для цього чудово підійдуть полиці або стелажі. Можна вдало скомпонувати ці конструкції, досягнувши самого раціонального розподілу площі.

Домашня майстерня повинна бути розташована так, щоб шум від працюючих інструментів не заважав мешканцям
В цілях економії простору можна обзавестися спеціальним пристосуванням для циркулярної пилки своїми руками, виготовленим на основі звичайної дрилі. Такий універсальний верстат може виконувати відразу кілька функцій, об’єднуючи в собі можливості:
- циркулярної пилки;
- шліфувального верстата;
- точила;
- токарного міні — верстата по дереву;
- відрізного верстата.
Робочий стіл можна об’єднати з лещатами для столярного верстака і укомплектувати його висувними ящиками, щоб зберігати дрібні інструменти.
Полиці для інструментів своїми руками: популярні конструкції
Металеві конструкції більш міцні і надійні, а дерев’яні – доступні в ціні.
Існує кілька варіантів раціонального зберігання інструментів:
- настінні полиці;
- стелажі для інструменту своїми руками;
- стельові полиці підвісного типу;
- полиці-щити для підвішування дрібних інструментів.

Полиця-щит з перфорованої сталі для підвішування дрібних інструментів
Корисна порада! Полиця-щит дуже зручна для проведення слюсарних і столярних робіт. На неї можна встановити власники або гачки для інструменту, невеликі полички або ємності для кріпильних елементів. Доцільніше всього підвісити таку конструкцію над складним столярним верстатом. Можна навіть підвести додаткове освітлення. Краще для цього використовувати невелику лампу.
Технологія виготовлення полиці під інструменти своїми руками (щит):
Залишиться тільки закріпити полку-щит на стіні. Щоб вушка не зісковзували з анкерів, рекомендується фіксувати їх спеціальними шайбами.

Схема пристрою з монтажними розмірами стелажу під інструмент майстерні
Виготовлення столярного верстака своїми руками: креслення, відео, технологія
На кресленні столярного верстата повинні бути присутніми наступні деталі:
Корисна порада! Лінійний параметр верстата може перевищувати 1 м. Збільшений розмір конструкції можна використовувати для установки своїми руками столярних лещат в кількості двох штук.
Існує кілька модифікацій верстаків:
- мобільний;
- стаціонарний;
- складаний (універсальний).
Ознайомившись з пристроєм столярного верстака, можна приступати до його виготовлення.
Технологія і креслення столярного верстака своїми руками: як зробити просту конструкцію
Покрокова технологія виготовлення конструкції:
Зверніть увагу! Для монтажу кришки не варто застосовувати цвяхи. У процесі їх забивання може зрушити каркасна частина виробу.

Пристрій верстата для столярних робіт
Технологія виготовлення універсального дерев’яного верстата своїми руками
Незважаючи на те, що технологія створення даної конструкції багато в чому схожа на попередній варіант, для виготовлення складеного столярного верстака креслення з розмірами потрібні в обов’язковому порядку. Але в даному випадку використовуються болти замість саморізів.
Крім цього, в доладному універсальному верстаті своїми руками можна встановити висувні ящики для зберігання інструментів.
Технологія виготовлення складного верстата своїми руками:

Розміри і параметри обладнання, створеного своїми руками можна підігнати під власні потреби
Зверніть увагу! Креслення верстата складного не такі складні, як може здатися. Перевага конструкції полягає в тому, що будь-яка пошкоджена деталь може бути легко замінена новою.
Конструкція столярних лещат для верстака своїми руками
Зазвичай верстати комплектуються лещатами. Як зробити своїми руками подібне пристосування знають багато власників гаражних майстерень. Для саморобної конструкції знадобляться спеціальні шпильки. Такий вид кріплення продається в господарських магазинах.
Новачкам фахівці рекомендують скористатися додатковими матеріалами для створення лещат своїми руками: відео як зробити такий інструмент можна легко знайти в інтернеті.
Для роботи буде потрібно спеціальний гвинтовий штир. Дана деталь, що має різьблення, є основним діючим компонентом конструкції. Мінімальний діаметр штиря – 2 см, довжина нарізки – 15 див. Чим довше буде ця деталь, тим ширше можна розвести лещата. Якщо в кресленнях лещат своїми руками врахувати саме ці розмірні параметри, можна отримати конструкцію, яка розлучається майже на 8 див.

Схема складання лещат для саморобного столярного верстака
Губки інструменту робляться з пари дощок. Одна частина деталі буде фіксованою. Для її виготовлення потрібно взяти сосну. Друга частина розміром 2х1,8х50 см буде рухатися. У кожній з цих дощок потрібно виконати свердлом отвір під гвинт. За допомогою свердла діаметром 1 см формуються у всіх дошках одночасно отвори для шпильок. Щоб отвори не зміщувалися по відношенню один до одного, можна з’єднати їх за допомогою цвяхів.
Після того як усі отвори виконані, у них вставляється гвинт і всі шпильки разом з шайбою та гайкою.
Корисна порада! Щоб мати можливість обробляти заготовки різного розміру, потрібно зробити шпильки переставляються. Потрібно зробити в кожній з дощок пару додаткових отворів, розташованих недалеко від гвинтового затиску.
Додатково можна використовувати для створення лещат своїми руками відео — матеріал, розміщений нижче.
Виготовлення слюсарного верстата своїми руками: як зробити конструкцію з металу
Для слюсарних робіт краще виготовити металевий верстак своїми руками, адже дерев’яний для цього не підійде. Справа в тому, що деревина не так міцна. До того ж при роботі з металевими заготовками стільниця з цього матеріалу буде постійно пошкоджуватися і швидко прийде в непридатність.
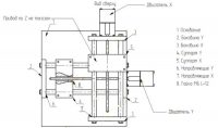
На загальному кресленні слюсарного верстата своїми руками можна виділити п’ять основних компонентів конструкції:
Розміри слюсарного верстата:
Параметри верстакаРазмер, смДлина конструкции2200Ширина конструкции750Высота конструкции950Ширина тумби з ящиками750Просвет між тумбами700
Корисна порада! Для того щоб зробити якісні шви, рекомендується використовувати вуглекислотний напівавтомат. Досвідчені майстри можуть скористатися зварювальним апаратом імпульсного типу. При відсутності навичок у поводженні з цим інструментом краще довірити роботу професіоналам.
Технологія виготовлення верстата своїми руками: як зробити збірку
Виготовлення універсального верстата своїми руками починається зі складання рами. Для цього потрібно взяти пару коротких і пару довгих балок. У процесі зварювання ці елементи можуть піддатися скручування.
Щоб цього не допустити, необхідно:

Монтажна схема слюсарного верстата з металу
Потім кріпляться задні вертикально розташовані стійки і задня балка (довга, одна з трьох). Обов’язково потрібно перевірити наскільки рівно по відношенню один до одного вони розміщені. Якщо є якісь відхилення, балки можна обережно підігніть з допомогою молотка. Наприкінці виконується складання інших стоєчних елементів з вертикальним характером розташування, а також елементів, що забезпечують жорсткість.
Коли рама готова, до неї можна приварити куточки, призначені для посилення конструкції. Стільниця формується з дерев’яних дощок. Попередньо їх потрібно просочити вогнетривкою рідиною. Потім зверху укладається лист металу.
На вертикальних стоєчних елементах можна закріпити щит з фанери для інструментів. Цей же матеріал використовується для того, щоб зашити тумби. Для ящиків можна використовувати металеві коробки або виготовити дерев’яні конструкції.
Можна використовувати для того, щоб більш детально розібратися в технології виготовлення верстата своїми руками, відео, яке розміщене нижче:
Особливості створення токарного верстата по дереву для домашньої майстерні
У технології виготовлення токарного верстата по дереву своїми руками особливе місце займає станина. Від цієї деталі безпосередньо залежить робота інших деталей, а також стійкість всієї конструкції. Вона може бути металевою або дерев’яною.
Корисна порада! Для виготовлення за стандартним кресленнями токарного верстата по дереву своїми руками краще використовувати електричний мотор, який здатний розвивати швидкість до 1500 про./мін. Оптимальний показник потужності – 200-250 Вт. Якщо передбачається обробка великих заготовок, можна збільшити показники потужності.
Для створення токарно — копіювального верстата по дереву своїми руками можна використовувати старий ручний фрезер, який вже не потрібен. Цей інструмент поміщається на фанерній майданчику товщиною 1,2 см і розміром 20х50 див. Попередньо в ній потрібно виконати отвори, призначені для фрези і кріпильних елементів. Сюди ж будуть монтуватися упори з брусків. Вони необхідні для того, щоб фреза перебувала у фіксованому стані. Сам фрезер кріпиться двома цвяхами між фіксаторів.
Насправді зовсім нескладно виготовити копіює конструкцію саморобного токарного верстата по дереву своїми руками – відео — матеріалів в мережі достатньо.

Основні частини найпростішого токарного верстата (зліва — тільки з провідним центром, праворуч — з ведучим і веденим центрами): 1 — рама; 2 — диск; 3 — провідний центр; 4 — заготовка; 5 — упор для різця; 6 — задня бабка; 7 — ведений центр (центр-болт); а — висота
Приклад саморобного токарного верстата по дереву своїми руками
Для підстави краще взяти сталевий профіль з товстими стінками. Щоб конструкція вийшла надійної, рекомендується використовувати дві опори. Поверх них буде встановлена станина. Для скріплення деталей застосовується пазовий тип з’єднання. Попередньо потрібно виготовити опорні платформи, призначені для бабок (задній і передній).
Перелік деталей для токарного верстата по дереву (як самому зробити збірку конструкції на основі цього списку зрозуміти нескладно):

Креслення для виготовлення саморобного токарного верстата
Зверніть увагу! Щоб працювати з цією конструкцією, необхідно буде придбати набір заводських різців. При наявності відповідного інструменту їх можна виготовити власноруч, проте потрібно інструментальна сталь.
В якості допоміжної інформації можна використовувати для складання токарного верстата по дереву своїми руками відео, детально відбиває цей процес.
Другий приклад деревообробного токарного верстата своїми руками
Альтернативним рішенням буде виготовлення конструкції найпростішого токарного міні — верстата по дереву своїми руками на основі електричного дриля. Цей приклад технології можна використовувати в якості проби перед тим, як спорудити більш серйозний інструмент.
Цей тип верстата підійде для обробки дерев’яних заготовок невеликого розміру. Матеріалом для станини можуть послужити бруси з деревини. Зворотний бабку можна замінити поєднанням вала, встановленого на опорний підшипник. Щоб зафіксувати заготовку потрібно буде дістати відповідну насадку на дриль.
Дана конструкція має свої недоліки, вони пов’язані з:
- високою ймовірністю того, що виникнуть похибки під фрезеруванні;
- низьким рівнем надійності;
- відсутністю можливості виконувати обробку дерев’яних заготовок великого розміру.

Простий деревообробний токарний міні-верстат, створений своїми руками
Але не варто відмовлятися від цього варіанту, адже він покладений в основу технологій створення більш досконалих і складних токарних інструментів. Щоб правильно розрахувати конструкцію, визначте для себе необхідні експлуатаційні властивості і технічні характеристики.
Принцип виготовлення різців для токарного верстата по дереву
Технологія в даному випадку ускладнена лише правильним вибором заготовок, які не тільки повинні мати відповідний запитам рівень твердості ріжучої кромки, але і правильно встановлюватися фіксатор – державка.
Зверніть увагу! При відсутності інструментальної сталі можна обійтися підручними засобами. Після того, як завершується етап попередньої підготовки, матеріал додатково загартовується.
Рекомендовані види заготовок:

Токарні різці: А — з напівкруглим лезом для чорнового точіння; Б — з прямим лезом для чистового точіння; — фасонні; Р — верстатний прохідний
На верстаті можна передбачити можливість зміни різців. Для цього виготовляється особлива модифікація корпусу з необхідними монтажними деталями. Ці елементи повинні бути досить міцними, щоб витримувати навантаження в процесі роботи і при цьому зберігати початкове розташування кромочной частини.
Коли різець виготовлений, виконується його заточування, а різальна кромка гартується. Після того як ріжуча частина загострилася, різець потрібно занурити в машинне масло. За допомогою технології повільної загартування поверхню виробу можна зробити максимально твердою. У цьому випадку напружена заготівля повинна охолоджуватись у природному режимі.
Пристосування для заточування ножів своїми руками: креслення та рекомендації
Для виготовлення точила з двигуна від пральної машини своїми руками можна обмежитися мотором від старої радянської конструкції, наприклад, СМР-1,5 або Рига-17. Потужності 200 Вт, буде достатньо, хоча можна збільшити цей показник до 400 Вт, обравши інший варіант движка.
Перелік деталей, необхідних для заточувального верстата своїми руками, включає:
- трубку (щоб виточити фланець);
- гайку для фіксації каменю на шківі;

Саморобний пристрій для заточування ножів
- метал для виготовлення захисного кожуха для точила своїми руками (товщина 2,-2,5 мм);
- камінь точильний;
- електричний кабельний шнур, має вилку;
- пристрій для старту;
- куточок з металу або ж брусок з дерева (для станини).
Діаметр фланця повинен відповідати розмірам втулки на моторі. Крім цього, на дану деталь буде надіватися точильний камінь. З одного боку на цьому елементі виконується різьблення. Відступ повинен дорівнювати товщині кола, помноженої на 2. Різьба наноситься мітчиком. З іншого боку фланець необхідно запресувати на вал двигуна з допомогою нагрівання. Фіксація здійснюється болтовим або зварювальним з’єднанням.
Корисна порада! Різьба повинна йти в протилежну сторону щодо того напрямку, куди виконуються обертальні рухи двигуна. Інакше гайка, яка фіксує коло, буде розкручуватися.
Робоча обмотка двигуна приєднується до кабелю. Вона має опір 12 Ом, яке можна обчислити за допомогою мультиметра. Пускова обмотка для точила для ножів своїми руками буде мати 30 Ом. Потім виготовляється станина. Рекомендується брати для неї металевий куточок.

Складальне креслення саморобної універсальної точила для ножів
Деякі люди потребують заточувальному верстаті для ланцюгів бензопил. Своїми руками зробити таку конструкцію можна з станини з 3 опорами, двох шпинделів, крокового двигуна (2 кВт) та труб, які використовуються в якості власників.
Інструкція зі створення стаціонарної циркулярної пилки своїми руками
Створення столу для ручної циркулярної пилки своїми руками є найважливішим етапом створення верстата, оскільки на цій конструкції будуть розміщуватися основні деталі обладнання у вигляді:
- силового агрегату;
- контрольного блоку;
- ріжучого компонента;
- інших складових.
Опорна станина на столі для ручного інструменту виконує функцію направляючої для циркулярної пилки своїми руками. Вона контролює напрямок, у якому здійснюється розпил, і фіксує заготовку.

Будівництво столу для ручної циркулярної пилки є найважливішим етапом створення верстата
Пилорама – модифікація циркулярної пили. Відмінність полягає лише в тому, що диск розміщений знизу. На конструкцію столу для циркулярної пилки своїми руками покладено функцію станини. Тут же встановлений силовий агрегат, блок, фіксуючий диск і система контролю.
На етапі проектування для циркулярної пилки своїми руками креслень слід брати до уваги деякі фактори:
Корисна порада! Якщо стіл виготовляється під ручний варіант інструменту, стільницю рекомендується зробити металевої. Лист металу варто оснастити на підставі ребрами жорсткості.

Схема пристрою стаціонарної циркулярної пилки
Як виготовити циркулярну пилку з болгарки своїми руками
Спочатку стільниця виготовляється з листового матеріалу. На нього наноситься розмітка у відповідності з розмірами інструментарію. По цій розмітці виконуються вирізи для установки пили.
Далі виконується:
Для верстата із циркулярної пилки своїми руками потрібні ніжки. Вони монтуються з урахуванням габаритів стільниці з дерев’яних брусів з перерізом 4х4 див. Допускається використання сталевих куточків. Щоб забезпечити додаткову стійкість, між опорами слід встановити ребра жорсткості. Поруч з робочим місцем поміщається контрольний блок. Не варто відмовлятися від установки ПЗВ і пристосувань, що захищають двигун від перевантажень.

Варіант циркулярної пилки з дрилі. Компонувальна схема: 1 — привід (електродриль); 2 — робочий стіл (дюралюміній, лист s5); 3 — дискова пила; 4 — стійка (Ст3, смуга 20×5, 4 шт); 5 — опорний тримач валу оправки; 6 — оправка; 7-тримач електродрилі; 8 — опорна плита (меблева ДСП, s30)
Технологія створення відрізного верстата по дереву
Технологія виготовлення саморобного відрізного верстата:

Проста конструкція відрізного верстата для домашньої майстерні
Корисна порада! Фахівці радять застосовувати асинхронний двигун. Такий мотор не особливо вимогливий. Для мереж з 3-ма фазами необхідний двигун потужністю 1,5-3 кВт, для однофазних мереж цей показник потрібно збільшити на третину. Потрібно підключення за допомогою конденсатора.
Залишиться виконати монтаж мотора на коротке плече коромисла. На довге плече поміщається ріжучий елемент. Вал і двигун з’єднуються за допомогою пасової передачі. Для стільниці можна використовувати лист металу, стругану дошку.
Збірка свердлильного верстата своїми руками: відео як зробити конструкцію, рекомендації
Хороший креслення свердлильного верстата з дрилі своїми руками – основна умова, щоб обзавестися необхідним інструментом. Для створення такого верстата не потрібно застосовувати особливі матеріали і купувати додаткові комплектуючі.
Складові для конструкції саморобного свердлильного верстата своїми руками:
- станина (підстава);
- обертальний механізм (дриль);
- пристосування, що забезпечує подачу;
- вертикально розташована стійка для фіксації дрилі.

Для створення свердлильного верстата з дрилі не потрібно застосовувати особливі матеріали і купувати додаткові комплектуючі
В освоєнні технології виготовлення свердлильного верстата з дрилі своїми руками відео — матеріал може надати неоціненну допомогу.
Керівництво по створенню свердлильного верстата своїми руками (як зробити найпростішу конструкцію):
Для виготовленого своїми руками свердлильного міні — верстата необхідний механізм подачі обертового інструменту. Класична схема конструкції передбачає використання пружини і важелі. Пружина закріплюється між колодкою і стійкою.
Існує безліч пристосувань для заточування свердел своїми руками, відео — матеріал допоможе розібратися в цій темі.
Особливості фрезерних верстатів з ЧПУ своїми руками
Програмне забезпечення вважається важливою складовою у фрезерному верстаті з ЧПУ по дереву своїми руками. Креслення звичайної конструкції з урахуванням цієї умови повинні включати додаткові елементи під нього:
- порт LPT;
- блок ЧПУ.
Корисна порада! Для виготовлення своїми руками копіювально — фрезерного верстата по дереву або металу можна використовувати каретки, що належать старому принтера. На основі цих деталей можна створити механізм, що дозволяє фрезі переміщатися в двох площинах.
Збірка фрезерного верстата по дереву для домашньої майстерні
На першому етапі складаються для фрезерного верстата по дереву своїми руками креслення, які містять інформацію про розміщення всіх компонентів конструкції, їх розміри, а також способи фіксації.

Схема фрезерного верстата з ЧПУ
Далі збирається опорна рама з труб, заздалегідь нарізаних на деталі необхідного розміру. Для скріплення потрібно використовувати зварювальний апарат. Потім виконується контроль розмірних параметрів, щоб приступити до виготовлення робочої поверхні.
Діяти треба в рамках наступної схеми:
Обов’язково перед роботою варто провести випробування верстата. Включений фрезер не повинен дуже сильно вібрувати. Щоб компенсувати цей недолік рекомендується додатково встановлювати ребра жорсткості.

Найважливішою вимогою до верстатів для майстерні є безпека експлуатації
Збірка фрезерного верстата по металу своїми руками
Покрокова інструкція з виготовлення саморобного фрезерного верстата по металу:
Зверніть увагу! Закріплювати обертальний елемент в станині краще так, щоб шпиндель був спрямований вниз. Для фіксації необхідно заздалегідь приварити перемички, потрібні гвинти і гайки.

Схема пристрою фрезерного верстата (а — загальний вигляд, б — кінематична схема): 1 , 5 — напрямні лінійки; 2 — зубчастий сектор; 3 — фреза; 4 — огорожа; 6 — пульт керування; 7 — додаткова опора шпинделя; 8 — кронштейн; 9 — маховичок підйому кронштейна; 10 — маховичок натягу ременя; 11 — електродвигун; 12 — шпиндель; 13 — маховичок настройки шпінделя по висоті; 14 — станина; 15 — перемикач частоти обертання шпинделя; 16 — вимикач; 17 — стіл
Після цього потрібно прикріпити до шпинделя конус (Морзе 2) і виконати на нього установку цангового або свердлильного патрона.
Особливості виготовлення рейсмусового верстата своїми руками
Креслення рейсмуса своїми руками зі складною конструкцією припускають використання дорогих компонентів:
- підшипників, що володіють підвищеною зносостійкістю;
- сталевих прокатних листів;
- зубчаток;
- шківів;
- потужного електричного двигуна.
В результаті витрати на виготовлення саморобного рейсмуса істотно зростають. З цієї причини багато хто намагаються обмежитися простою конструкцією.
Інструкція для саморобного рейсмусового верстата по дереву:
Елемент конструкцииДанныеСтанинаРамы (2 шт.), виготовлені із застосуванням зварювання на основі куточка (4-5 см). З’єднання рам здійснюється за рахунок шпильок (сточені 6-гранники – 3,2 см).ПротяжкаРезиновые валики вижимного від типу пральної машинки. Виточені під розмір підшипників і надіті на вісь діаметром 2 див. Діє за рахунок обертальних ручних рухів.СтолОтшлифованная дошка кріпиться до станини за допомогою болтового з’єднання, головки мають бути потайними. Дошки потрібно обробити маслом (вже відпрацьованим).Двигательна 3 фази, потужність – 5,5 кВт, обертальна швидкість – 5000 об./мін. Захисний кожухИзготовлен із жерсті (6 мм), надітій поверх каркасного куточка (20 мм).
Збірка рейсмуса з електрорубанки своїми руками
Для створення саморобного рейсмусового верстата потрібно помістити рубанок на брусок, зафіксувати його за допомогою такого пристосування, як струбцини, не забувши при цьому залишити зазор.
Зверніть увагу! Розмір зазору виставляється з урахуванням товщини заготовки, яка буде оброблятися на верстаті.
Схема виготовлення рейсмуса з рубанка своїми руками дуже проста:
- опорний брус закріплюється на зручній поверхні;
- необхідна величина зазору підбирається за рахунок додавання прошарків фанери;
- на отримане основа кріпиться струбцинами конструкція рейсмуса з електрорубанка.
Дві струбцини утримують основу на столі, інші дві – рубанок. Переконавшись в надійності цього кріплення, можна приступати до використання інструменту.

Схема пристрою саморобного рейсмусового верстата
Схема створення шліфувального верстата по дереву своїми руками
Рекомендації по виготовленню витратного стрічкового шліфувального верстата своїми руками:
Калібрувально — шліфувальні верстати по дереву відносяться до групи барабанних конструкцій. Ця категорія обширна і включає безліч різновидів обладнання.
Для виготовлення барабанного шліфувального верстата по дереву своїми руками можна вибрати наступні конструкції:
- плоскошліфувальна – заготівля обробляється в рамках одній площині;
- планетарна – з її допомогою на заготівлі формується рівна площина;
- круглошлифовальная – з її допомогою обробляються заготовки циліндричної форми.
З відео, розміщеного нижче, можна дізнатися, як зробити своїми руками верстат шліфувального типу.
Правила експлуатації фугувального верстата по дереву своїми руками
У конструкціях виготовленого своїми руками фугувального верстата дуже важливо правильно виставити налаштування обладнання, щоб похибки не перевищували допустимі показники:
- перпендикуляр – максимально 0,1 мм/см;
- площина – 0,15 мм/м.
З технологією виготовлення фуганка своїми руками можна ознайомитися за допомогою відео.
Якщо в процесі експлуатації на оброблюваної поверхні з’являється ефект поверхневої заворсованості або підпалини, значить затупились ріжучі елементи. Щоб обробка деталей з габаритами менш 3х40 см була більш комфортною, утримувати їх потрібно з допомогою штовхачів.
Крива поверхня заготовки після виконаної обробки свідчить про те, що порушено правильне розміщення ножів і робочої поверхні. Ці елементи потрібно виставити заново.
Всі ці верстати можуть бути корисними для проведення ремонту в будинку або елементарної лагодження речей. Тому їх присутність в домашній майстерні буде незайвим. Незалежно від того, яким буде оснащення гаража, всі верстати вимагають дбайливого й уважного ставлення. Під час роботи ніколи не можна забувати про безпеку.
Артем Іванов 2018-08-13T19:39:44+00:00 Інструменти, Споруди|Своїми руками| ОЦІНИТЕ
МАТЕРІАЛ
Завантаження… ПОДІЛІТЬСЯ
У СОЦСЕТЯХFacebookTwitterOkGoogle+PinterestVk
