Садова лавка зі спинкою своїми руками: креслення цікавих виробів
Облаштування присадибної ділянки здійснюється різними методами: встановлюються навіси і альтанки, прокладаються доріжки, які розбиваються квітники і клумби. Завершальним нюансом є садові меблі. Для облаштування невеликої зони відпочинку підійде садова лавка зі спинкою своїми руками: креслення і схеми красивих конструкцій, а також рекомендації щодо їх створення ви зможете знайти в цій статті.

Садова лавка зі спинкою може бути ключовим елементом у дизайні прибудинкової території
Види конструкцій та фото садових ослонів
Сучасний асортимент меблів для саду досить великий. Класифікація виробів здійснюється на підставі таких ознак:
- характеристики;
- матеріал;
- функціональність.

Дерев’яна лавка, розташована на веранді приватного будинку
Фото садових ослонів своїми руками, їх функціональна сторона
Функціональні особливості меблів цінуються нарівні з їх практичністю і довговічністю. Усі вироби поділяють на дві великі групи:
- лавки, використовувані виключно для сидіння;
- лавки багатофункціонального призначення (виріб може виконувати декілька функцій – бути лавкою, качалкою або столиком).

Лавка зі спинкою, виготовлена з колод і дощок
Корисна порада! Використовуйте незвичайну конструкцію лавки-трансформера, щоб економно витрачати місце в саду. Її легко можна перетворити в столик для письма або прийому їжі на свіжому повітрі.
Багато власників присадибних ділянок встановлюють лавочки-гойдалки. Для їх створення використовуються матеріали різного типу, а самим конструкцій можна надати цікаву форму. Щоб такий лавкою було зручно користуватися, обов’язково потрібно спорудити поверх неї навіс. Він забезпечить захист від сонця та опадів.

Лава-гойдалка – відмінний варіант садових меблів
Популярні для виготовлення своїми руками лавки зі спинкою, мають стаціонарний тип розміщення. Найчастіше їх роблять з бетону або цегли, а під установку підбирається спеціальне місце. Подібні вироби не бояться впливу сонця і вологи.
Існують лавочки складного типу з невеликими габаритами і мобільного конструкцією. Вони знадобляться, якщо дачна ділянка використовується рідко. На час відсутності власників складні лавочки прибираються в гараж на зберігання або в будинок.

Дерев’яна лавка зі спинкою використана для організації зони відпочинку в саду
Фото дачних лавок своїми руками з дерева і металу
Металеві вироби володіють найбільш високими характеристиками міцності. Вони надійні, довговічні і можуть експлуатуватися на протязі всього року. Конструкції з металу невибагливі щодо догляду. Досить періодично покривати поверхню антикорозійним засобом, який захистить лавки від згубного впливу вологи.

Приклад дерев’яної лавки з каркасом з металу
Повністю виконана з металу лава буде мати дуже масивний вигляд, тому сучасні конструкції виготовляються із застосуванням кованих візерунків. Слід пам’ятати, що для цього потрібно обзавестися зварювальним апаратом.
Більша частина власників заміських ділянок, які приймають рішення зробити лавку для дачі своїми руками, віддає перевагу деревині. Цей матеріал стає основою для створення крамничок з красивим дизайном, відмінними експлуатаційними характеристиками і теплою фактурою. Незалежно від оформлення саду або двору, дерев’яні вироби завжди можна гармонійно вписати в ландшафт.

Комбінована лава з деревини та металу з кованими елементами
Корисна порада! Візьміть для роботи дуб, модрину.
В цілях захисту поверхню виробу потрібно покрити лакуючим складом або фарбою. Це дозволить запобігти псуванню деревини, яку спричиняють комахи, грибки, цвіль, а також волога і сонце. Використання лакирующего складу в якості фінішної обробки допоможе зберегти природний малюнок дерева.

Вироби з металу відрізняються високою міцністю і тривалими термінами експлуатації при мінімальному догляді
Фото лавок своїми руками з каменю
Якщо ви віддаєте перевагу практичним варіантів лавок, варто звернути увагу на вироби, виконані з каменю. Цей вид матеріалу відрізняється невисокою вартістю і тривалими термінами експлуатації, а конструкції виходять міцними, надійними і естетично привабливими.
Камінь відноситься до розряду матеріалів природного походження. Незважаючи на це, конструкції таких крамниць не завжди зможуть підтримати будь-який дизайн і стиль саду. На ділянці обов’язково повинні бути присутніми кам’яні елементи в якості доповнення. Особливо вигідно лавки виглядають на тлі житлового будинку, частково виконаного з каменю.

Лавка, викладена з натурального каменю, з м’якими матрацами і різнокольоровими подушками
Непоганий ансамбль складуть кам’яні:
- ступені;
- доріжки;
- водойми;
- габіони;
- клумби.
З каменю можуть бути виконані частково або повністю опори огорож, альтанок і навісів. Якщо на ділянці є хоча б один з цих елементів, кам’яні лавки завжди припадуть до місця. Однак слід пам’ятати, що такі вироби не мають спинки.

Навіть найпростіша лавка з каменю виглядає вишукано, благородно і грунтовно
Фото садових ослонів своїми руками: вдалі саморобки з пластику та інших матеріалів
Пластикові вироби мають цілу низку переваг, до яких належать:
- простота й невелика вага конструкції, завдяки чому транспортування матеріалу не викликає складнощів, а саму лаву можна переміщувати з одного місця на інше;
- економічність;
- великий вибір колірних рішень, що дозволяє виготовити виріб, яке згодом добре впишеться в дизайн саду;
- практичність (конструкції складно-розбірного типу легко розбираються і укладаються в багажник і також легко збираються на місці).

Лавки з пластику володіють невеликою вагою, що робить їх надзвичайно мобільними, а також простими у транспортуванні
Корисна порада! Використовуйте креслення садових ослонів своїми руками для створення конструкцій з комбінованих матеріалів. Ви зможете наділити свій виріб позитивними експлуатаційними характеристиками, які притаманні кожному типу застосованого сировини.
Об’єднані поєднання різних за текстурою, фактурою, кольором і походженням матеріалів використовують не тільки в декоративних цілях. Найбільш поширеним варіантом є комбінація каменю та деревини.

Комбінована лавочка, побудована з металу і деревини
Оригінально виглядають конструкції, виготовлені з деревини і доповнені кам’яними або металевими елементами. В таких проектах деревина створює м’яку і гарну текстуру, а камінь і метал відповідають за міцність.
Приклади та технології створення садових лав та ослонів своїми руками
Конструкції лавки і лавки мають деякі відмінні риси. Будівництво крамниці – найпростіший спосіб організувати сидяче місце в саду. Виріб не має спинки і, на відміну від лавки, володіє простим зовнішнім виконанням.

Створення лавки – швидкий і легкий спосіб організації місця для відпочинку в саду
Створювана своїми руками дерев’яна лавка зі спинкою може мати більш складне декоративне виконання:
- нестандартну форму;
- підлокітники;
- конструкцію, прикрашені різьбленими та кованими елементами.
Найпростіші ідеї для створення садових лавочок
Щоб оживити конструкцію простої лавочки, необов’язково придумувати складний креслення і ламати голову над створенням додаткових аксесуарів для саду. Досить скористатися двома дерев’яними ящиками і кількома дошками.

Оригінальна дерев’яна лавка зі столиком, призначена для сидіння двох осіб
Ящики в цьому випадку будуть виконувати функцію опор. Після виготовлення лавки їх можна наповнити землею і організувати невелику квіткову клумбу. З дощок роблять сидіння, яке встановлюється між ящиками. Матеріал обов’язково потрібно добре зашліфувати за допомогою наждачного паперу, прибрати всі нерівності і задирки.
Корисна порада! З крамниць на основі ящиків можна зробити садову лавку зі спинкою своїми руками. Досить встановити конструкцію до стіни і на її площину прибити в необхідному місці кілька дощок в якості спинки.

Рис. 1-1. Схема ослони з дерев’яними ящиками для квітів: 1 — пристрій лавки і розрахунок матеріалів: А — лаги (дошки 2х4 довжиною 17 1/2″ — 6 шт., дошки 2х4 довжиною 20 1/2″ — 4 шт.); В — дно ящика (3/4 фанера 20 1/2″ x 20 1/2″ — 2 шт.); З — трими (дошки 1х4 довжиною 23 1/2″ — 16 шт.); D — бічні ламелі (дошки 1х6 довжиною 25″ — 32 шт.); Е — трими для облицювання верху (дошки 2х4 довжиною 45″ — 8 шт.); F — каркас сидіння (дошки 2х4 довжиною 63″ — 2 шт., дошки 2х4 довжиною 17 1/2″ — 2 шт.); G — поперечні планки (дошки 1х2 довжиною 17 1/2″ — 5 шт.); Н — сидіння (дошки 1х4 довжиною 60″ — 5 шт.).; 2 — облицювання борту; 3 — установка стінок ящика для квітів; 4 — монтажні розміри стінок ящика; 5 — схема пристрою дна ящика для квітів
Конструкції з деревини мають певний недолік. Матеріал сам по собі вимагає постійного догляду, а в даному випадку дерево ще й стикається з грунтом, періодично необхідно виконувати полив рослин. Щоб зробити лавочку більш практичною, дерев’яні ящики можна замінити бетонними або кам’яними тумбами. Клумби з бетону можна зробити самостійно або придбати в магазині.
Для сидіння слід використовувати оброблені дошки або половину оциліндрованої колоди. Вибір сировини залежить від того, в якому стилі виконаний дизайн саду або двору. Закріплювати сидіння рекомендується металевими куточками, фиксируемыми до бетону з застосуванням дюбелів, а до деревини наскрізних болтів або саморізів.

Рис. 1-2. Схема ослони з дерев’яними ящиками для квітів: 6 — монтажні розміри каркаса сидіння; 7 — посилення конструкції лавки; 8 — установка рейок сидіння; 9, 10 — монтаж ящика
В якості опор можна використовувати вазони з карликовими деревами або декоративними кущами. Єдине, але дуже важлива вимога – ємність повинна бути дуже міцною. В сидіння вирізається отвір за формою вазона в тому місці, де зазвичай знаходяться ніжки лавок. Розмір отвору повинен бути достатнім, щоб створити умови для росту рослини і догляду за ним, однак, при цьому воно не повинно перевищувати розмір ємності. По суті, сидіння з дощок поміщається поверх вазонів і фіксується за рахунок сили тяжіння і ваги сидять.

Кутова дерев’яна лавка з ящиками для квітів, встановлена на веранді приватного будинку
Виготовлення садових ослонів з дерева своїми руками в стилі етно
Стильові напрямки дизайну етно і рустик часто використовуються в дизайні приміщень. Заміський будинок, коттедж або дача – прекрасне місце для створення екологічного і природного куточка, підходить для сімейного відпочинку. Цей дизайн можна продовжити і в саду. Для цього достатньо зробити лавку зі спинкою своїми руками з колод (Рис. 1) і інших природних матеріалів.
Корисна порада! Для будівництва конструкції можна використовувати колоди з корою або без неї. Обробляти матеріал або залишити його в первозданному вигляді – залежить від ваших побажань і дизайну ділянки.

Лавки, виготовлені з колод, відрізняються самобутністю і екологічністю
Технологія виготовлення дачної лавки своїми руками з колоди
Щоб сформувати сидіння, досить розпиляти стовбур дерева вздовж. Зробити це можна рівно посередині (в зоні діаметру) або змістивши пилку ближче до краю (в зоні середнього діаметра). Спинка виготовляється зі стовбура дерева з меншою товщиною або ж ви можете виконати зріз ближче до крайової частини. В результаті цей елемент повинен бути тонше і легше, ніж деталь сидіння.

Рис. 2. Садова лавка з колод у дворі заміського будинку
Ніжки можна зробити із залишків колоди. Їх з’єднують з деталлю сидіння за допомогою металевих штифтів. Робиться це так:

Стилі етно і рустик відмінно підходять для оформлення присадибної ділянки
Кріплення забивається за допомогою кувалди або молотка. Оскільки деревина є за своєю структурою досить м’яким матеріалом, удари молотка можуть пошкодити її поверхню. Щоб уникнути цього, потрібно підкласти під інструмент непотрібну дошку.
Штифти забезпечують надійне з’єднання всіх деталей. Щоб посилити фіксацію, можна встановити 2-3 штифта.

Лавка зі спинкою, виготовлена з використанням колод
Стиль етно в садових лавках зі спинкою своїми руками: додаткові ідеї
У стилі етно можна створити конструкцію з нестандартним виконанням. Родзинкою може стати, наприклад, виготовлення лави з застосуванням вигнутих гілок різного діаметра. Перед складанням вироби ці гілки обробляються і ошкурювати. Іншими словами, з них знімається кора, а потім поверхня шліфується наждачним папером. Для складання сидіння повинна використовуватися необрізна дошка. Вона обробляється аналогічним способом.

Різні варіанти дерев’яних лавок, створених в стилі етно
Зверніть увагу! Всі елементи цієї конструкції мають округленими формами, а дошки сидіння дивляться торцями вперед.
Якщо на вашому дачній ділянці є плетений паркан, ви можете використовувати цей варіант конструкції з деякими змінами. Короткі дошки сидіння можна замінити довгими, розташувавши їх уздовж. Спинка формується за принципом плетіння з гілок середньої товщини, які добре гнуться.

Лавка в стилі рустик стане унікальним об’єктом на садовій ділянці
Щоб виконати плетену спинку, необов’язково володіти якимись особливими навичками. У вас може вийти не дуже акуратний результат, але цього і не потрібно. Спинка повинна бути простою і ненав’язливою, грубе плетіння тільки збільшить її декоративні властивості. Гілки можна розташовувати щільно або, навпаки, залишати зазори між ними, щоб ваша лава «дихала».

Лавка з колод встановлена на закритій веранді заміського будинку
Лавка як альтернатива лавці для дачі своїми руками
Незважаючи на відсутність спинки, дана схема (Рис. 3-1) виготовлення лавки виглядає досить привабливо за рахунок особливостей матеріалу, з якого вона виконана. Сама по собі конструкція має дуже просту будову, тому з технологією її створення впорається кожен.
Для ніжок потрібно заокруглений брус. Якщо у вас є колоди з невеликим діаметром, можна заощадити на закупівлі матеріалу і обтесати їх самостійно. Оригінальний зовнішній вигляд лавочки виходить за рахунок того, що бруски укладаються один на інший і фіксуються. В результаті виходять красиві опори для виробу.

Рис. 3-1. Порядок виготовлення простої дерев’яної лавки: 1 — складання креслення конструкції
Розрахунок параметрів і необхідних матеріалів
Висота лави може коригуватися з урахуванням ваших потреб. Цей показник також залежить від діаметру бруса, який буде використовуватися в роботі. Щоб розрахувати кількість матеріалу, потрібно визначити скільки брусків буде укладатися один на інший для формування необхідної висоти однієї з ніжок.
Розмірна таблиця:
Параметр изделияПоказатель, смДлина120Высота38Ширина45Доска для сидіння (перетин)4х9
В нашому випадку буде потрібно 5 брусків, довжина яких становить 0,45 м. Формула розрахунку: 5х0,45 = 2,25 м. Виходячи з цього, для будівництва двох опор буде потрібно 4,5 м брусу (2,25х2). Сидіння буде складатися з п’яти дощок довжиною 1,2 м. Для його виготовлення знадобиться наступне кількість матеріалу: 5х1,2 = 6 м.

Рис. 3-2. Порядок виготовлення простої дерев’яної лавки: 2 — розпил деревини для ніжок лави; 3 — свердління отворів в деталях ніжок; 4 — підготовка дощок для сидіння; 5 — обробка країв деталей сидіння
Корисна порада! Для заокруглення граней бруса можна використовувати фрезу або придбати готовий профільований матеріал. Його вартість вище, зате в роботі профільований брус набагато зручніше.
Початковий етап: підготовка матеріалу
Для початку готуються дошки для сидіння. Матеріал нарізається на необхідну кількість дощок відповідної довжини і обробляється. Гострі кути слід округлити. Для цього скористайтеся можливостями фрезера або шліфувальної машинки. Якщо у вас немає під рукою такого інструменту, достатньо буде обробити краї наждачним папером.

Рис. 3-3. Порядок виготовлення простої дерев’яної лавки: 6, 7 — нанесення розмітки на деталі ніжок; 8 — свердління отворів в намічених точках; 9 — нанесення захисного покриття на деталі сидіння
Шліфування з допомогою наждачного паперу – процес тривалий і трудомісткий. Щоб спростити собі роботу, можна замовити шліфовку матеріалу на лісопилці. Після того, як дошки підготовлені, їх потрібно розкрити лакуючим складом. Це може бути повністю прозорий лак або склад з відтінком (вибір фінішного покриття залежить тільки від вас).
Бруски, призначені для формування ніжок лавки, щільно укладаються поруч один з одним так, щоб їх краї утворили рівну лінію. За допомогою олівця і косинця нанесіть розмітку в тих зонах, де будуть встановлені кріпильні елементи. Лінії слід розподілити по всій довжині з кроком в 7-10 див.

Рис. 3-4. Порядок виготовлення простої дерев’яної лавки: 10, 11 — кріплення ніжок до сидіння; 12 — вигляд готового виробу
Збірка дерев’яної конструкції: монтаж кріплення
В якості кріплення будуть використовуватися металеві штифти. Альтернативою їм можуть стати нагелі, виконані з деревини. Під установку кріплення виконуються отвори, діаметр яких трохи менше діаметра штифтів, а глибина становить половину довжини штифта.
Для фіксації деталей кріплення буде забиватися в один із брусків, а наступний елемент буде насаживаться через отвір поверх нього.

Проста крамниця без спинки може використовуватися не тільки для сидіння, але і в якості столика
Корисна порада! Складання конструкції з допомогою штифтів – надійний спосіб кріплення. Щоб збільшити міцність фіксації, можна скористатися клейовим складом при монтажі, але цей прийом зробить конструкцію нерозбірними.
Штифтовое з’єднання використовується і в процесі створення за кресленнями лавки для дачі своїми руками з дерева, конструкція якої укомплектована спинкою. Якісного результату можна досягти тільки в тому разі, якщо всі отвори будуть розташовуватися строго один над одним. У підсумку всі деталі при складанні повинні утворити рівну крайову лінію.

Дерев’яні стіл і лавки, пофарбовані в білий колір, утворюють затишну обідню зону в саду
Після нанесення ліній розмітки потрібно виміряти відстань від краю, яке повинно бути однаковим. Для цих цілей рекомендується створити шаблон. Достатньо взяти шматок планки, ширина якої складає 1,5 див. Вона буде служити своєрідним обмежувачем. Іншими словами, отвори від краю буде відокремлювати відстань, рівну ширині цієї планки. Прикладіть шаблон рівно по крайовій лінії і відзначте місця перетинів з уже наявною перпендикулярної розміткою.
Стаття по темі:

Установка штифтів повинна здійснюватися в шаховому порядку, тому вам слід розташовувати отвору не на кожному перетині ліній, а через одне. З іншого боку бруска також виконуються отвори. Вони повинні розташовуватися в шаховому порядку по відношенню до отворів, які були виконані раніше. В результаті при з’єднанні ніжок з сидінням на кожну планку припадатиме пара штифтів.

Проста лавка зі спинкою, побудована з деревини
Завершальний етап створення лавочки з деревини
З технологічної точки зору, описаний раніше тип з’єднання можна вважати правильним. Проте, схема його монтажу досить складна для людини, яка не володіє необхідними навичками.
Існує більш простий спосіб скріплення конструкції:

Оригінальна лавка, виготовлена з старої дерев’яної ліжка
Після цього дошки сидіння прибиваються до цих ніжок цвяхами (зверху) або ж ви можете виконати в цьому місці штифтовое з’єднання.
Корисна порада! Щоб приховати місця розміщення цвяхів, приготуйте міметичний із суміші дуже дрібних тирси і мастики, призначеної для деревини. Підбирайте мастику в тон лавці. Цією сумішшю замажте всі місця з’єднань. Після висихання поверхню слід зашкурити.

Варіант простий лавочки з дощок, прибудованої до дерева в саду
Коли збірка конструкції завершена, виконайте шліфування всіх деталей. Їх поверхня повинна бути максимально гладкою. Після цього можна наносити фінішне покриття. Використовуйте для цих цілей шар склад або фарбу для деревини, призначену для зовнішніх робіт. Краще, якщо фінішне покриття буде напівпрозорим. Таким чином ви зможете залишити видимим природний візерунок дерева.

Дерев’яні лавки зі зручними м’якими сидіннями, декоровані подушками
Креслення лавок для дачі своїми руками: фото і опису
Лава за рахунок присутності спинки має більш зручну конструкцію, ніж лавка. На неї можна спиратися і розслабити спину. Місткість таких виробів може бути різною, але зазвичай креслення садових ослонів з дерева своїми руками складаються на 2-4 персони. Це робиться по тій причині, що довга конструкція потребує встановлення додаткової опори. У підсумку процес створення виробу ускладнюється. Фактично простору на 2-4 персони достатньо, тому можна обмежитися виготовленням найпростіших конструкцій.

Лава за рахунок наявності спинки має більш зручну конструкцію для сидіння порівняно з лавкою
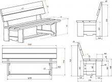
Садова лавка зі спинкою своїми руками: креслення конструкції на дві персони
Для виготовлення своїми руками лавки зі спинкою з дерева за даним проектом (Рис. 4) вам потрібно обзавестися таким інструментом:
- дрилем;
- набором свердел;
- ножівкою;
- рубанком.
Зверніть увагу! Конструкція призначена для монтажу в саду, на балконі або терасі.

Лавки, побудовані з деревини, гармонійно вписуються в будь-який ландшафт
На виконання всіх робіт по створенню лавки у вас піде не більше одного дня. В якості основного матеріалу буде використовуватися квадратний брусок, виготовлений із сосни. Параметри його перерізу – 6х6 див. Також знадобляться дошки «двадцятки». Перед тим як виконувати розкрій цих дощок, їх слід острогать до тих пір, поки не вийдуть деталі з розмірами 5,8х5,8 див.
Лавка для дачі з дерева своїми руками: покрокова інструкція
Збірка лавки з соснових брусків здійснюється в наступній послідовності:
- за допомогою шкантів і клейового складу виконуємо складання ніжок для боків П-подібної форми. Потім за допомогою того ж методу кріплення фіксуємо на них рейки (5,8х2 см) та бруски-проножки (3,5х3,5 см), що монтуються з боків;

Рис. 4. Креслення дерев’яної лавки зі спинкою на дві персони
- щоб намітити місця розміщення відповідних дірок під монтаж шкантів, використовуйте маркер;
- з’єднайте боковину і поздовжньо розташовану рейку. Для того щоб відзначити положення боковини, слід використовувати прокладку завтовшки 2 см;
- фіксуйте всі елементи під час свердління отворів струбцинами. Це дозволить вам добитися точного сполучення між сполучаються деталями конструкції;
- перед тим як виконати остаточну зборку, добре відшліфувати елементи.
Останній етап будівництва – нанесення захисного засобу і фінішного покриття.

Для більш тривалого терміну експлуатації конструкції з дерева потребують обробки захисним засобом і нанесенні фінішного покриття
Садова лавка своїми руками з підручних матеріалів: застосування піддонів
З таких підручних матеріалів, як піддони, можна створити цікаву конструкцію лавки (Рис. 5). Вона може бути встановлена не тільки в саду, але і на терасі і навіть всередині дачного будиночка. Для роботи буде потрібно три піддону.
Етапи виготовлення:
- один з піддонів поділяємо навпіл. Ці половинки згодом будуть спинкою вироби. Розкрій треба зробити так, щоб після зборки деталі спинки і сидіння утворили фігуру геометрично правильної форми, а всі краї збіглися;

Рис. 5. Порядок виготовлення лавочки з піддонів в шести фото
- два інших піддону за допомогою цвяхів збиваємо разом. До них закріплюємо спинки-половинки;
- поверх конструкції слід покласти матрац відповідного розміру. Ви можете використовувати подушки зі старого дивана, попередньо замінивши їх оббивку, або пошити нові. На спинку також можна покласти кілька подушок невеликого розміру.

Використання дерев’яних піддонів – цікавий спосіб створення оригінальної садових меблів
Корисна порада! Ви можете залишити матрац лежати спокійно або зафіксувати його за допомогою ременів. Для більшої функціональності до конструкції можна додати колеса.
Креслення садової лавки зі спинкою з дерева своїми руками: конструкція «Трансформер»
Для виготовлення конструкції потрібно закупити соснові пиломатеріали.
Матеріали для роботи:
Тип материалаКоличество, шт. Розмір перерізу, смДлина, смДоска63х10100Доска23х1032Брусок43х680брусок23х650
Технологія виготовлення лавки-трансформера
Дотримуючись покрокової інструкції, ви зможете створити цікаву лавку, конструкція якої може трансформуватися в столик з двома лавками (Рис. 6).
Основні етапи виготовлення лавки:
- створивши опорні частини згідно з кресленням, прикріпіть до однієї з них 3 дошки. З цих дощок буде сформовано сидіння. Не забудьте при цьому відступити від торцевої частини на 5 див. В кожну дошку потрібно встановити 4 самореза. Два з них будуть фіксувати сидіння до опори з однієї сторони, що залишилися, призначені для фіксації сидіння до іншої опори (з іншого боку виробу);

Схема з монтажними розмірами лавки-трансформера
- на кожну вузлову зону складання потрібно виконати монтаж 4 кріпильних елементів;
Корисна порада! При складанні вузлів нанесіть на ці зони столярний клей. Клейовий склад підвищить міцність фіксації і довговічність всієї конструкції.
- після того як усі деталі підготовлені до роботи, ніжки, мають опертя спинки і сидіння, слід запив з торця під кутом близько 75º. Використовуючи саморізи, призначені для роботи з деревиною, з’єднайте ніжки попарно з середині брусками. Оптимальна довжина кріпильних елементів становить 5 см;

Рис. 6. Схема створення лавки-трансформера: 1 — кінематична схема трансформера в положенні «стіл» (1 — обмежувачі положення (труба 20×20 мм, довжина 35-49 мм), 2 — опорний стрижень); 2 — деталь З (труба 40×20 — 2 шт.); 3 — з’єднувальні перемички (труба 20×20 мм). Д — для зовнішньої лавки, Д1 —для внутрішньої; 4 — деталі В, В1 (труба 40×20 мм). В1 дзеркальна по відношенню до В; 5 — ніжка лавки (4 шт.), де: А — сталева труба 40×20 мм, 1 — перемички (труба 20×20 мм — 4 шт.), 2 — опорний стрижень
- далі виконується спинка. У процесі трансформування вона перетворюється в стільницю. Знайдіть поздовжню крайку опорної дошки. Її довжина складає 32 див. Сюди потрібно прикріпити три дошки завдовжки 150 див. При цьому відступ від торця в цьому випадку вже буде становити 8 см;
- дошки монтуються так, щоб між сусідніми елементами утворився зазор в 1 см;
- в опорної дошки потрібно виконати 3 отвори, діаметр яких становить 0,8 див. Краще цю процедуру виконати заздалегідь. Дані отвори будуть використовуватися для фіксації спинки лави в горизонтальному положенні.

Цілісна дерев’яна конструкція для саду, що складається із столу і лавок
Завершальний етап будівництва лави-трансформера
Для створення осей обертання виконайте 2 отвори у верхній частині задньої ніжки. Фіксація спинки до основи виробу буде здійснюватись за рахунок пари болтів М8.
Одне з виконаних отворів буде осьовим, друге – звичайним. Щоб спростити експлуатацію лави, болт в зоні осьового отвору оснастите гайкою 6 гранями, для другого підійде гайка-баранчик. У неї слід відігнути вусики. За рахунок цієї простої маніпуляції кріплення може відвертатися/завертатися без застосування додаткового інструментарію, а лише силою рук.

Ключовою ланкою в патіо виступає дерев’яна лавка зі спинкою
По завершенні всіх робіт потрібно перевірити конструкцію на працездатність. Встановіть спинку в похиле положення і закріпіть її болтами. Дістаньте скріплює елемент з отвору і перемістіть спинку в горизонтальне положення. Щоб зафіксувати її, помістіть болт на колишнє місце і закріпіть гайкою. Конструкція повністю готова до експлуатаційного використання.
При створенні лавок можна експериментувати. Головне, щоб при цьому виріб вийшло міцним і практичним.
Артем Іванов 2018-08-09T12:11:30+00:00 Облаштування, Ділянка|Своїми руками| ОЦІНИТЕ
МАТЕРІАЛ
Завантаження… ПОДІЛІТЬСЯ
У СОЦСЕТЯХFacebookTwitterOkGoogle+PinterestVk
