Пристосування для гаража своїми руками: ідеї та поради щодо створення
У статті розглядаються найбільш зручні та практичні пристосування для гаража своїми руками, які дозволяють поліпшити комфорт експлуатації даного приміщення. Тут докладно викладені рекомендації по розробці і створенню конструкцій, призначених для зручного зберігання інструментарію та автомобільних запчастин, поради по виготовленню меблів, а також облаштування системи освітлення та опалення.

Правильна організація зберігання інструментів та запчастин зробить гараж більш функціональним
Корисні пристосування для гаража своїми руками: загальні рекомендації
Гараж призначений не тільки для збереження, але і для обслуговування автомобіля. З цієї причини дане приміщення має бути містким, чистим, комфортним і грамотно облаштованим.

Альтернативою стаціонарним шаф може служити мобільний стелаж для інструментів
Щоб досягти всього цього, достатньо врахувати основні вимоги щодо організації простору:
Корисна порада! Усі ці елементи не повинні займати простір, що перевищує 10-20% від площі гаража.

Оптимальна організація системи зберігання в гаражі: 1 — відкриті кронштейни і гачки для часто використовуваних інструментів, 2 — стелаж для дрібних інструментів, 3 — полки для запчастин і шин, 4 — стелаж для великих інструментів, 5 — шафи для різних речей, 6 — верстат з додатковими полицями
Варіанти полиць в гаражі своїми руками: фото та поради з облаштування місць для зберігання
Близько 80% полиць в гаражі своїми руками споруджується для зберігання гаражних приладдя, а саме:
- інструментарію і додаткових пристосувань;
- комплектуючих деталей для автомобіля;
- аксесуарів.
Нерідко на фото полиць в гаражі своїми руками зустрічається їх поєднання зі стелажем, який також можна виготовити самостійно. Найчастіше стелаж розглядається в якості основного місця для зберігання інструментарію. Після його установки вільний простір заповнюють зручними і місткими поличками.
Обов’язково виберіть місце, де буде зберігатися робочий одяг. Необов’язково займати більшу площу, можна обійтися однією полицею або навіть гачком (залежно від потреб).

На відритому стенді з кронштейнами можна розташувати часто використовувані дрібні інструменти
Гараж – місце, де зберігаються небезпечні та займисті речовини. До них відноситься масло, бензин, розчинники, фарби, поліролі. Для них необхідно передбачити окремий шафа, повісити вогнегасник і встановити бак з піском.
Для захисту від забруднення в процесі зберігання коліс, встановлених на кронштейнах для шин, варто придбати пакети великого розміру або спеціалізовані чохли, що дозволяють запобігти потраплянню пилу.
Кронштейни і полиці для коліс в гаражі: особливості конструкцій
До найбільш громіздким запасних частин транспортного засобу відносяться комплекти гуми, яка може бути зимової або літньої. Коли використовується зимовий варіант, літня гума зазвичай зберігається в гаражі, і навпаки. Тому слід організувати полиці для зберігання шин або кронштейни.
Конструкція кронштейна виглядає наступним чином:

Складні кутові полиці для сезонного зберігання шин
Корисна порада! Полиці для коліс в гаражі своїми руками рекомендується розміщувати якомога ближче до стелі на оптимальній висоті. Завдяки цьому автомобільні шини не будуть займати корисну площу в гаражі.
Для компактного зберігання коліс може використовуватися цілий стелаж у вигляді чотирьох широких полиць. Він підійде для розміщення коліс з дисками, які можна буде розташувати одне над іншим в горизонтальному положенні. Конструкцію можна зробити кутовий і підняти на стіну.
Для створення подібної конструкції рекомендується використовувати:
- дерев’яний брус;
- дошки;
- листи ДСП.
Установка кронштейнів для шин – найраціональніший спосіб зберігання коліс. Більшої економії вільного простору можна домогтися, підвісивши гуму до стельового основи вздовж гаражної стіни. Цей варіант можливий, якщо приміщення має велику висоту і залізобетонні перекриття у вигляді плит на стелі. Вони будуть використовуватися в якості основи для вкручування дюбелів.

Настінна полиця для покришок, виконана з профільної труби
Зберігання інструментів: цікаві ідеї для гаража своїми руками
Щоб організувати зручну зону для розміщення речей, можна самостійно виготовити саморобний і дуже місткий стелаж або полиці. Зрозуміло, в магазинах можна знайти сотні готових моделей, тим не менш полку в гаражі своїми руками набагато дешевше, ніж придбати аналогічний виріб на ринку.
Щодо стелажів та ж проблема. Взявшись за самостійне виготовлення місця для зберігання інструментів, можна не тільки організувати зручний і практичний стелаж, але і гармонійно вписати його в простір гаража.
Корисна порада! Мінімальний показник навантажень, які повинна витримувати конструкція, становить 150 кг і більше. При цьому максимальне обмеження навантаження на одну секцію становить 500 кг.

Наявність полиць і кронштейнів допоможе систематизувати інструментарій залежно від його призначення
Правила виготовлення виробів з деревини:
Товщина матеріалу визначається тими навантаженнями, які будуть діяти на стелаж.
Рекомендації з виготовлення полиць для інструменту в гаражі своїми руками
Полиці встановлюються в тих випадках, коли гараж не дозволяє поставити стелаж. Краще, якщо конструкцій буде кілька.

Саморобний стенд в гаражі для зберігання спортивного інвентарю
Схема створення полиць для інструментарію:
Корисна порада! При виготовленні полиць краще віддати перевагу декільком коротким конструкціям, оскільки одне довге виріб може проломитися під вагою інструменту.
На завершальному етапі можна зробити декоративну обробку виробів (фарба чи спеціальна плівка).

Настінна пластикова планка для компактного зберігання дрібного інструментарію
Технологія створення стелажа для інструменту в гаражі
Для створення стелажа власними руками потрібні дошки шириною 9 і 19 див. Розмір конструкції можна коригувати.
Покрокова технологія:

Містка шафа-стелаж з розпашними дверцятами
Корисна порада! Щоб зміцнити виріб, слід між секціями виконувати монтаж брусків з деревини. Вони дозволять рівномірно розподілити навантаження по стелажа.
Організація системи освітлення і обігріву в гаражі
Щоб експлуатація гаража була комфортною, у приміщенні слід грамотно організувати систему освітлення, вентиляції і обігріву. Оскільки автомобілі тісно пов’язані з застосуванням отруйних і шкідливих речовин, проблема вентиляції в обмеженому приміщенні стоїть особливо гостро. Для гаража підійдуть продухи до цегляної кладки. Вони оснащуються гратами.
Фактори, що впливають на рівень освітлення:
- площа гаража, його висота;
- кількість та характер розміщення робочих зон (розмірів верстата для гаража, оглядової ями, кількість верстатів);
- тип обробки на стінах, її забарвлення;
- показник питомої потужності мережі на 1 м2;
- тип світильників для гаража.

Стельові вбудовувані світильники типу Армстронг
Для підтримки оптимальної температури можуть використовуватися різні види опалення:
- газове;
- на основі відпрацьованого масла;
- повітряне;
- електричне (інфрачервоний обігрівач для гаража);
- пічне;
- водяне;
- твердопаливне.
Існує безліч альтернативних способів самостійно організувати систему обігріву.
Особливості галогенових, люмінесцентних та світлодіодних світильників для гаража
Технічні показники галогенових ламп в чому схожі з лампами розжарювання, проте колба у них наповнена парами брому, тому вироби виділяють більше світла. До переваг таких світильників відносяться і тривалі терміни служби – 4 тис. годин.

Грамотна організація в гаражі систем зберігання та освітлення
Корисна порада! Вироби обов’язково повинні бути поміщені в плафони. Також варто подумати про стабілізації, спрямованої на захист від стрибків електричного напруги. Не рекомендується торкатися до таких ламп руками (знижується термін придатності).
Люмінесцентні лампи всередині заповнюються інертними газами. Зсередини колби покриті спеціальним складом, який випромінює світло в ультрафіолеті під впливом дугового розряду типу. До рекомендованих моделей відносяться вироби класу IP-65, захищені від вологи і пилових частинок.
Установка світлодіодного освітлення в гаражі супроводжується самими високими витратами. Тим не менш вони окупаються 50 тисячами робочих годин. Щодо економічності світлодіоди на 50% вигідніше люмінесцентних ламп. При цьому вони не мають у своєму складі шкідливих компонентів, а світ не має агресивного впливу на очі, тому не потрібно докуповувати плафони.
Установка освітлення в гаражі: як зробити розрахунок
Для розрахунку потужності звичайних ламп можна використовувати формулу:
P = S x W/N.

Освітлення в гаражі має бути досить яскравим і потужним
Розшифровка значень:
- P – сумарна необхідна потужність, Вт/м2.
- W – потужність одного світильника, Вт.
- N – число ламп (світильників), шт.
- S – площа приміщення, м2.
Для галогенових і світлодіодних світильників оптимальним показником є 16-20 Вт/м2. Це значення підійде для приміщень, де висота стель складає не більше 2,5 м. У гаражах з 3-метровими стелями цей показник слід помножити на 1,5.
На розрахунок впливає внутрішнє оздоблення стін приміщення. У темних гаражах освітлення повинно бути яскравим.
Рівень відбиття світла:
Площа приміщення, м2Высота стель,мЦвет обробки стенТемныйСветлый20менее 30,60,75500,750,91000,851203-50,40,55500,60,751000,750,9505-70,40,551000,60,75
Для освітлення оглядової ями в гаражі рекомендується використовувати малопотужні світильники з галогенними або світлодіодними лампами, так як волога, що накопичується в цьому місці, може спровокувати удар струмом. Прилади монтуються з боків заздалегідь зроблені поглиблення.
Корисна порада! Щоб випадково впав інструмент не розбив лампу, конструкцію світильників можна зробити висувний. Коли яма не використовується, прилади надійно заховані в поглибленнях.

Над робочими столами можна додатково обладнати енергозберігаючі світильники
Автономна система освітлення в гаражі своїми руками
Існує ряд принципів, на основі яких виконується система автономного освітлення:
Система багаторівневого освітлення для гаража вважається найбільш оптимальною. Вона передбачає монтаж великий лампи посеред приміщення і встановлення маленьких світильників в робочих зонах.
Розрахунок висоти для багаторівневої системи:
УровеньВысота, м1основание потолка21,830,7540,4
Світильники встановлені правильно в тому випадку, якщо машина не відкидає тінь ні на одну із сторін.
Який вибрати обігрівач для гаража
Обігрів гаража здійснюється за допомогою невеликих пристроїв переносного типу, які здатні прогріти приміщення в короткі терміни і в подальшому підтримувати оптимальну температуру.
Замислившись над тим, які обігрівачі краще для гаража, багато хто помилково вважають, що саморобний прилад може виготовлятися виключно з дорогих комплектуючих і вимагає значних витрат часу. З цієї причини власники гаражів відмовляються від цієї затії.

Обігрів гаража з використанням кліматичного обладнання
Насправді для виготовлення обігрівача для гаража своїми руками досить обмежитися бюджетними матеріалами, наприклад, термоплівкою. Схема створення такого приладу дуже проста і передбачає використання наступних матеріалів та інструментів:
- набору, призначеного для складання обігрівача;
- дроти, укомплектованого вилкою;
- шаруватого паперового пластика (площа одного елемента 1 м2);
- графітного порошку;
- епоксидного клейового складу.
Корисна порада! Обов’язково потрібно мати при собі мультиметр. При складанні приладу цей інструмент марний, зате він знадобиться для перевірки на працездатність.

Теплова газова, або дизельна електрична гармата — поширений варіант опалення в гаражі
Рекомендації по складанню саморобного обігрівача для гаража
Покрокова інструкція, як зробити обігрівач для гаража:
Після того, як обігрівач просушений, слід провести перевірку опору. Безпечним обігрівач для гаража вважається тільки після цієї перевірки. До цього моменту категорично заборонено підключати прилад до електричної мережі.
Обмеження щодо безпеки:

Приклад використання в гаражі твердопаливної печі типу булерьян
Створення корисних пристосувань для гаража своїми руками
Щоб здійснювати ремонтні та сервісні роботи, потрібно спорудити оглядову яму в гаражі своїми руками, розміри якої будуть відповідати габаритам авто, а також верстат для зручної роботи, плюс забезпечити приміщення верстатами.
Основний набір інструментів і матеріалів для створення саморобного верстата для гаража включає:
- дошки дерев’яні бруски;
- кріпильні елементи та стяжки;
- рубанок і інші інструменти для обробки дерева;
- шар і столярний клейові склади;
- наждачний папір та оліфу.

Приклад розміщення в гаражі корисних пристосувань: 1 — верстат з ручними верстатами, 2 — стелажі та шафи, 3 — стіл для проведення різних ремонтних робіт, 4 — полиця для зберігання шин, 5 — оглядова яма
Технологія виготовлення верстата в гаражі своїми руками: фото, креслення
Верстат складається з стільниці і підстілля, а також декількох пристроїв затискного типу. Висоту верстака у гаражі слід підбирати з урахуванням власного росту. Можна взяти в якості орієнтира висоту кухонного столу в будинку, за яким зручно працювати. Обов’язково складіть для створення верстата для гаража своїми руками креслення.
Корисна порада! Готові креслення верстата для гаража, які можна знайти в інтернеті, підійдуть в якості основи для самостійного виготовлення конструкції. При бажанні її можна підігнати під свої запити.
Облаштування гаража: як зробити верстат в приміщенні:
Етап работыДетали, розмір в смТип крепленияСборка столешницы20 дощок (5х10х200) з пазами 2,5х2,5 в 5-му та 16-му елементі (крок 25)Клейовий склад металеві стяжкиСушка—Виготовлення ніжок (4 шт.)Брусок (10х10х80) з пазами під кронштейни на передніх опорахКронштейныСборка підстави подстольяРамы (2 шт) з дощок (5х10)З’єднання «шип» на глибину 2,5 см і болтыФиксация бічних і задніх опорних стенокПлиты ДСП (товщина 10 мм)ШурупыФиксация стільниці до верхньої рами—Болти
Заключна обробка припускає просочення готового виробу оліфою і розтин лаком.
Рекомендації щодо створення оглядової ями в гаражі своїми руками
Не існує певних розмірів оглядової ями в гаражі. В якості основи беруться габарити автомобіля.
Як зробити оглядову яму в гараж з оптимальними параметрами:
Як правильно зробити оглядову яму в гараж з використанням різних матеріалів:
МатериалТолщина стінок, смКерамический кирпич12-25Бетон15Строительные блоки20
Котлован виривається з урахуванням оптимальної ширини ями, матеріалу, вибраного для стінок, а також товщини гідроізоляційного шару. Етапи створення ями:
- розмітка;
- будівництво котловану;
- облаштування котловану;
- будівництво стін;
- прокладка освітлення.
Для гідроізоляції стін застосовується спеціалізована гідрофобна просочення.
Корисна порада! З допомогою опалубки можна виготовити армовані поглиблення в стінах ями для розміщення інструментів і освітлювальних приладів.

Схема облаштування оглядової ями: 1 — стінки з піноблоків, 2 — гідроізоляція, 3 — бутова кладка. 4 — кутник розміром 50х50х4 мм
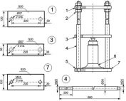
Виготовлення преса для гаража своїми руками
Для створення преса слід виготовити з 4 відрізків металевих труб каркас розміром 178х80 див. Ці елементи з’єднуються методом зварювання. В роботі рекомендується керуватися кресленнями, заздалегідь підібраними або складеними. Після цього потрібно встановити:
- фіксатор;
- знімний упор;
- пляшковий домкрат (гідравлічний).
Можна використовувати для розгляду детальної технології створення корисних пристосувань для гаража своїми руками відео-матеріали. Такі наочні рекомендації допомагають зорієнтуватися у розмірах, освоїти покрокові інструкції і уявити, який вигляд повинна мати готова конструкція.

Схема виготовлення гідравлічного преса: 1 — верхня силова платформа, 2 — гайки, 3 — нижня платформа, 4 — шпильки діаметром 30 мм, 5 — нижня різьблення шпильок, 6 — гідравлічний домкрат пляшкового типу; 7 — основа товщиною 20 мм
Облаштування гаража можна зробити власними руками. На цьому список корисних пристосувань не закінчується. Його завжди можна доповнити будь-якими цікавими ідеями. Головне, щоб гараж повністю відповідала особистим вимогам щодо комфорту і зручності.
Артем Іванов 2018-06-18T21:53:52+00:00 Інструменти, Споруди|Своїми руками| ОЦІНИТЕ
МАТЕРІАЛ
Завантаження… ПОДІЛІТЬСЯ
У СОЦСЕТЯХFacebookTwitterOkGoogle+PinterestVk
