Плани двоповерхових будинків: вдалі проекти для комфортного проживання
Забудовники все частіше використовують для облаштування заміських земельних ділянок плани двоповерхових будинків. Споруди подібного типу можна розглядати як золоту середину щодо габаритів, корисних площ, типу розміщення кімнат у приміщенні. Споруди з двома поверхами вважаються класичними. Вони припускають традиційний тип розміщення приміщень з організацією кухонь та кімнат загального призначення на першому поверсі, спалень і санвузлів – на другому.

Двоповерховий будинок — оптимальний варіант для проживання великої родини
Плани двоповерхових будинків, їх особливості
Традиційність у розміщенні внутрішніх приміщень має свої плюси і мінуси. Плани двоповерхових будинків представлені у великій різноманітності, і забудовник може коригувати їх за своїм бажанням:
- підбирати матеріали (будівництво на основі газоблоків, деревини, піноблоків, цегли, кераміки тощо);

Двоповерховий будинок невеликих розмірів з зовнішньої сходами на балкон
- самостійно встановлювати розмірні параметри кожного з приміщень;
- додавати додаткові конструкційні елементи до будівлі (тераса, веранда, горище, гараж, мансарда, еркер).
Корисна порада! Цегляні споруди котеджів – кращий спосіб рішення проблеми з проживанням на дачі в літній сезон. Вони також будуть зручні і в якості постійного місця проживання, так як володіють всіма необхідними для комфорту параметрами: довговічністю, хорошим теплоізоляційним рівнем, міцністю, високою звуковою ізоляцією і іншими не менш корисними перевагами.

Планування є дуже важливим етапом – ретельно продумайте розташування та площа приміщень в майбутньому будинку
Переваги будинків з двома поверхами
Будівництво котеджу з двома поверхами володіє наступними перевагами:
- економія площі території – це питання особливо актуальне серед власників земельних ділянок невеликого розміру. Завдяки економії простору з’являється можливість встановити на прибудинковій території додаткові споруди господарського призначення (сарай для зберігання дров, навіс для авто) чи для відпочинку (альтанки, навіс, баню, літню кухню, організувати зону з лавками і квітниками);
- широкі можливості для дизайнерських рішень, які зачіпають екстер’єр. Скориставшись послугами професійних дизайнерів-конструкторів чи архітекторів, можна спорудити цікава будівля, виконати оформлення всієї прибудинкової території і саду в єдиному стилі з використанням одних і тих же матеріалів;

Будівля з двома поверхами надає широкі можливості для різних дизайнерських рішень
- можливість урізноманітнити фасад і архітектуру котеджу гарними балконами (в якості матеріалу для перил можна використовувати натуральний камінь, деревину, прикрашену різьбленням, міцне скло, метал, доповнений художньою ковкою, або застосувати поєднання цих матеріалів);
- з’являється більше можливостей щодо дизайну внутрішніх приміщень, їх декоративного вдосконалення.

Суміщені вітальня і їдальня, розташовані на першому поверсі приватного будинку
Мінуси двоповерхового будівництва
Для будівництва котеджу з двома поверхами необхідний бюджет більшого розміру, ніж у випадку з одноповерховими будівлями.
Цей момент обумовлюється багатьма факторами. В першу чергу, це особливості зведення фундаментної частини. Щоб утримувати вагу декількох поверхів, потрібна надійна і міцна основа. Для цих цілей передбачені фундаменти стрічкового типу, що виготовляються з бетону. Вартість їх будівництва дуже висока. Зате характеристики дозволяють утримувати вагу будинку з меблевим наповненням та мансардою навіть на невеликій за площею ділянці забудови.
Наявність другого поверху зобов’язує забудовника до створення сходової конструкції. Це несе в собі не тільки додаткові витрати, але і ускладнює технологію будівництва будинку.

Наявність другого поверху створює необхідність у додаткових витратах на зведення сходової конструкції
Важливо! Згідно зі статистикою, сходові конструкції та майданчики виступають у ролі основних джерел небезпеки і стають причиною безлічі нещасних випадків, які відбуваються в заміських приватних будинках. Причому нерідко ряди постраждалих поповнюють і самі будівельники, так як процес зведення двоповерхового будинку супроводжується застосуванням драбин.
Статистика нещасних випадків на сходах за останні 6 років:
Загальні показники і причини происшествийПроцентное або кількісне соотношениеОбщее число пострадавших50000Рост кількості нещасних случаев62%Зісковзування драбини з опорного места59%Несправність робочого інвентарю (драбини)8%Втрата рівноваги під час строительства27%
Певна кількість падінь пов’язано з неакуратною експлуатацією самими власниками вже готової сходової конструкції, що вели на другий поверх, а також з порушенням технології і норм безпеки під час її будівництва, що призводить до обвалення або поломки окремих частин.

Сходова конструкція в приватному будинку з двома поверхами
Цього можна легко уникнути, якщо довірити роботу професіоналам, які складуть вірні креслення, розрахують параметри, підберуть відповідні матеріали поручнів та інших деталей, їх кріплень.
Чим ускладнюється планування двоповерхових будинків
Вартість будівництва збільшується і за рахунок інших моментів. Розглянемо їх докладніше:
- велику вагу споруди вимагає додаткового посилення міжповерхових перекриттів, інакше майбутнє проживання в будинку буде супроводжуватися підвищеною небезпекою;

Двоповерхові споруди прийнято вважати класичним варіантом заміських будинків
- елементи комунікаційних систем і опалення в двоповерхових будівлях мають більш розгалужену і складну схему. З-за цього буде потрібно прокладка додаткових водопроводів, підведення каналізаційних стоків, установка спеціального циркуляційного обладнання, що сприяє нормальному пересуванню теплового носія всередині контуру, щоб забезпечувати повноцінне опалення. До такого обладнання належить циркуляційний насос;
- на етапах проведення будівельних, а також оздоблювальних і фасадних робіт буде потрібно установка лісів, щоб забезпечити можливість підйому матеріалів на необхідну висоту;

Двоповерховий будинок в стилі модерн з підземним гаражем
- для сімей, в яких є літні люди, діти, а також люди з обмеженими можливостями розробляються спеціальні проекти. Не представляється можливим використовувати абсолютно всі типи планувань. У такому будинку кімнати, належать вказаним категоріям мешканців, обов’язково повинні розташовуватися на першому поверсі, оскільки переміщення по сходах може бути проблематичним і небезпечним;
- кількість витрат на покупку утеплювача збільшується з тієї причини, що вітрове навантаження на стіни зростає.
Зверніть увагу! Вартість розробки проекту також збільшується за рахунок проектування сходових і балконних конструкцій, фундаментної частини, конструктивних та вузлових елементів.

Приклад планування двоповерхового будинку з невеликою площею
Фото двоповерхових будинків: проекти з планами різної площі
На ділі виявляється, що будівництво котеджу з двома поверхами має більше недоліків, ніж переваг. Але в основному всі мінуси стосуються тільки додаткових витрат. Якщо ви маєте в своєму розпорядженні необхідним бюджетом, зведення будівлі стане вигідним рішенням в будь-якому відношенні.
Частина витрат стосується оформлення документації, пов’язаної з:
- створенням потужного фундаментного підстави;
- улаштуванням сходової конструкції;
- ускладненням проектних рішень;
- посиленням перекриттів між поверхами.

Двоповерховий будинок із зоною відпочинку на відкритій терасі
Маючи достатні для будівництва бюджетні можливості, ви зможете спорудити на невеликій ділянці землі дійсно надійний і комфортний будинок. Для цього можна використовувати безкоштовні проекти або скористатися послугами спеціалізованої компанії, що займається проектними розробками.
Проекти двоповерхових будинків і котеджів, безкоштовні креслення і фото
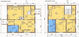
На прикладі планування двоповерхового будинку 6 на 8 м можна побачити, що навіть невелика будівля здатне запропонувати нормальні житлові умови і комфорт. Основний вхід в котедж розташований з ганку. Для зручності тут обладнана гардеробна кімната. Велике приміщення вітальні поєднане з компактною кухнею, яка примикає до санвузлу.

Проект 1. Фасад двоповерхового будинку 6х8 м
З вітальні по сходах можна потрапити на другий поверх, де розміщені дві спальні. Одну з них легко можна переобладнати під дитячий або гостьову. Кімнати розділяє приміщення гардеробної, призначеної для загального користування.
Зверніть увагу! Загальна площа котеджу збільшена за рахунок довгої тераси, що примикає до вітальні. Ділянка будинку можна використовувати в якості їдальні в теплу пору року. На терасі є одразу два входи в будинок, завдяки чому гості і господарі мають можливість безперешкодно переміщатися з вулиці в будинок.

Проект 1. План першого поверху: 1 – тамбур, 2 – вітальня, 3 – кухня, 4 – ванна, 5 – тераса. План другого поверху: 1 – спальня, 2 – гардеробна, 3 – спальня, 4 – сходовий хол
Приклад зручного планування двоповерхового будинку 6х9 метрів
Прямокутний варіант планування не менш зручний, ніж квадратний. У цьому проекті з розмірами 6х9 м, перший поверх являє собою зону для прийому гостей. Тут знаходиться кухня з невеликою їдальні, повноцінний санвузол, а також вітальня великого розміру, завдяки чому вирішується проблема розміщення сходів на другий поверх. Кімнати мають оптимальне розташування, завдяки якому можна раціоналізувати переміщення людей по дому. Кухня і вітальня обладнана виходами на вулицю.

Проект 2. Фасад двоповерхового будинку 6х9 м
На другому поверсі плануванням передбачаються дві спальні, одна з яких цілком може стати дитячою кімнатою, інша – батьківської спальнею. Приміщення дитячої примикає до невеличкій кімнаті, яку можна обладнати:
- під гардеробну з розсувними дверима;
- під невеликий спортзал;
- під комору для зберігання речей.
Цей варіант планування, як і будь-які інші готові проекти, може бути скоректований з урахуванням побажань майбутнього власника. Ви завжди можете поміняти призначення кімнат, а також їх розміщення і розміри.

Проект 2. План першого поверху: 1 – кухня-вітальня-їдальня, 2 — ванна. План другого поверху: 1 – коридор, 2 і 3 – спальня, 4 — гардеробна
Планування двоповерхових будинків 7 на 7: фото і креслення
Планування двоповерхового будинку 7 на 7 м, зображена на проекті нижче, достатньо функціональна. Вона включає всі приміщення, які необхідні для комфортного проживання сім’ї з двома дітьми. Нижній поверх котеджу відведено під прийом гостей.
Тут розташована:
- кухня;
- їдальня;
- вітальня;
- повноцінний санвузол;
- приміщення передпокою і гардеробної.
Корисна порада! Шляхом з’єднання просторів кількох кімнат можна істотно збільшити корисну площу. На прикладі даної планування двоповерхового будинку 7х7 м видно, як вдало виглядає поєднання таких приміщень, як вітальня, кухня та їдальня.

Проект 3. Фасад двоповерхового будинку 7х7 м
Котедж має два ганку. Одна виконує роль парадного входу з вулиці: відразу ж при вході в будинок через передпокій розташована гардеробна, де можна залишити верхній одяг і взуття. Друге ганок розміщено на виході з вітальні з іншого боку будівлі.
Таке рішення вигідно з багатьох причин. По-перше, ви завжди зможете розбити на задньому дворі зону для відпочинку або невеликий садок з квітником, де буде приємно відпочивати з гостями. По-друге, на задньому дворі може розташовуватися ігрова зона для дітей, куди вони зможуть проходити через вітальню. При цьому виключається необхідність обходити навколо будівлі.

Проект 3. План першого поверху: 1 – прихожа, 2 – коридор, 3 – кухня-вітальня, 4 – ванна. План другого поверху: 1 – коридор, 2 – дитяча, 3 – спальня, 4 – ванна
План двоповерхового будинку 7 на 7 м враховує потреби всієї сім’ї, при цьому загальна площа будівлі невелика. На другому поверсі розміщуються кімнати для відпочинку: батьківська спальня з великим ліжком і дитяча. Приміщення дитячої кімнати навмисно було залишено великим, що дозволяє організувати відразу два спальних місця, робочу зону і гардеробна шафа. Тут же є великий санвузол з джакузі і душовою кабінкою.
Особливості планування двоповерхового будинку 7 на 8: фото і креслення
У будівництві нерідко використовуються форми, наближені до квадрату. Зовні такі будівлі, як показано на прикладі проекту нижче, виглядають квадратними, але зайвий метр дозволяє вільно встановити сходи, не зменшуючи при цьому корисну площу вітальні і надаючи можливість організувати на другому поверсі додатковий санвузол.

Проект 4. Фасад двоповерхового будинку 7х8 м
Цей проект цікавий тим, що основна споруда має невелику прибудову біля головного входу, де встановлено крильце з кількома зручними підходами. Також будинок забезпечено ще одним входом з ганку, розташованого позаду будинку.
Простір другого поверху повністю зайнято спальнями. Два великих приміщення розділені один від одного невеликим холом, ведучим в приміщення ванної кімнати. Завдяки цьому ні одна з кімнат, призначених для відпочинку, які не є прохідною, чим забезпечується комфорт, спокій і можливість усамітнитися. На плані видно, що одна зі спалень обладнана великим ліжком. Отже, дане приміщення може розглядатися в якості батьківської спальні. У той час як друга спальня відведена під дитячу з двома спальними місцями.

Проект 4. План першого поверху: 1 – прихожа, 2 – вітальня, 3 – кухня-їдальня, 4 – комора, 5 — ванна. План другого поверху: 1 – коридор, 2 – ванна, 3 – дитячий, 4 — спальня
Зверніть увагу! Одна з кімнат має вихід на балкон. Можливість установки подібних конструкційних доповнень до будівлі є одним з найбільш привабливих переваг споруд з двома поверхами і конкретно цього проекту.
Матеріали для будівництва заміських будинків
Для зведення двоповерхових котеджів використовуються різні будівельні матеріали, які на сучасному ринку представлені у величезному розмаїтті.
Для цих цілей застосовується:
- брус;
- штучні матеріали (піноблоки, цегла, блоки);
- колода.
Каркасна технологія будівництва сьогодні найбільш поширена серед забудовників, але застосовуються й інші варіанти. Вибір сировини для зведення будинку обмежується виключно бюджетними можливостями, а також смаковими уподобаннями майбутнього власника.

Двоповерховий будинок з прибудованим навісом і басейном на задньому дворі
Особливості котеджів, побудованих з деревини
Деревина вважається традиційним сировиною, що використовується для будівництва заміського житла.
Вона володіє декількома перевагами:
- надійністю;
- теплотою;
- екологічністю.
Котеджі з деревини відмінно зберігають тепло. Нагрівання будівлі відбувається дуже швидко навіть після повного остигання. Це перевага буде особливо вигідним для власників будинків, які використовуються для проживання тільки сезонно.

Внутрішнє оздоблення двоповерхового будинку, зведеного з колод
Що стосується внутрішньої декоративної обробки, то дерев’яні котеджі в ній практично не потребують, оскільки матеріал сам по собі виглядає красиво і дуже природно. Велика частина забудовників воліє залишати будівлю в первозданному вигляді, так як на виконання чистових ремонтних робіт може знадобитися суттєва сума.
Корисна порада! Споруди з дерева володіють легкою конструкцією, завдяки чому можливий монтаж будівлі на полегшене фундаментне основу. Використовуйте фундамент стрічкового типу. Краще, якщо він буде дрібно заглибленим. Можливий варіант використання пальового фундаменту з обв’язкою або цільної плити.
В якості сировини для будівництва будинку можуть бути використані наступні матеріали:
- клеєний брус;
- колода;
- цільний брус.

Дерев’яна будова відрізняється екологічністю і природною красою
Навіть невелика ширина стін здатна досить добре утримувати тепло всередині будинку. До недоліків будівель подібного типу відноситься необхідність витримувати зібрану коробку протягом 3-12 місяців. На цей період робота зупиняється, так як стає неможливою встановлення склопакетів та дверних конструкцій в отвори, які все ще може повести в сторону під впливом усадки.
Особливості планування двоповерхового будинку 9 на 9: фото план будівлі з газобетону
Будівлі, зведені з цегли, пінобетону або газобетону, як на плануванні двоповерхового будинку 9 на 9 м, відрізняються надійністю і довговічністю. Але це можливо тільки за умови суворого дотримання технології будівництва.
Зведення подібних споруд припускає, що готовий будинок буде володіти значним вагою, а це означає, що слід грунтовно підійти до організації фундаменту. Варто враховувати, що будинки з штучних матеріалів не дозволять заощадити. Підстава поганої якості призведе до того, що котедж буде«гуляти», що в підсумку призведе до виникнення тріщин і зробить подальшу експлуатацію не тільки небезпечною, але й неможливою.

Проект 5. Фасад двоповерхового будинку 9х9 м з газобетону
У такому будинку добре зберігається температура, однак це може бути можливим тільки в тому разі, якщо будівля не охолоджувати. Як і будь-яке інше кам’яна будівля, зображений на плані двоповерховий будинок 9 на 9 м потрібно довго прогрівати, щоб забезпечити комфортні температурні умови, оскільки матеріал на протязі довгого часу здатний поглинати тепло.
Споруди із штучних матеріалів дають певну свободу в питаннях проектування. Кам’яна споруда може бути доповнено архітектурними елементами:
- аркою;
- еркером;
- балконом;
- круглими кутовими зонами.

Проект 5. План першого поверху: 1 – прихожа, 2 – коридор, 3 – кабінет, 4 – вітальня, 5 – кухня, 6 – ванна. План другого поверху: 1 – коридор, 2 – дитяча, 3 – спальня, 4 – дитяча, 5 – ванна
Будинки з бруса або оциліндрованного колоди також можуть бути побудовані з застосуванням зазначених елементів, але виконати таку роботу буде вкрай складно.
Використання каркасної технології будівництва
Каркасна технологія зведення будівель може бути охарактеризована трьома словами: дешево, швидко, просто.
Зверніть увагу! Так само як і у випадку з цегляними і блоковими будинками, будівництво каркасного котеджу супроводжується певною свободою щодо розподілу внутрішніх просторів та архітектури, а експлуатаційні характеристики мають багато спільного з будівлями з деревини.

Зведення будинків за каркасною технологією володіє безліччю переваг
Переваги котеджів каркасного типу:
- невисокі витрати на будівництво;
- полегшена вага конструкції;
- можливість заощадити кошти на етапі організації фундаменту;
- висока швидкість зведення;
- відсутність необхідності витримувати коробку, даючи їй час на усадку;
- практичність і простота експлуатації;
- практично повна відсутність обмежень щодо форми будівлі, його габаритів.
Якщо будівництво буде супроводжуватися застосуванням екологічних матеріалів, котедж буде не гірше, ніж дерев’яний.

Двоповерховий котедж каркасного типу з невеликою площею
Особливості проектування котеджів поверхами
Мінімальна площа забудови з оптимальними розмірами дорівнює квадратній зоні з параметрами 8х8 м чи в прямокутному ділянці, на якому зможе поміститися план двоповерхового будинку 8 на 10 м.
Ці розміри дозволяють виконати будівництво невеликого будинку дачного типу з раціональним розподілом внутрішніх приміщень. Допускається використання фундаменту меншого розміру, але в такому випадку планування буде малофункціональною і не дуже зручним.
На плануванні двоповерхового будинку 8 на 10 м повноцінно поміщається сходи. Місця цілком достатньо для того, щоб розмістити не тільки кухню і вітальню на першому поверсі і хазяйські спальні на другому, але і приймати гостей.

Після внесення до планування обов’язкових приміщень може залишитися вільна площа, яку можна використовувати для організації додаткових кімнат
Верхня межа розмірів обмежується лише побажаннями власників і розмірами заміського ділянки. Для комфортного проживання сім’ї, що складається з двох дорослих і кількох дітей, потрібно котедж площею 110-130 м2. Цей показник може бути збільшений до 200 м2 за рахунок організації гаража.
Будівництво будинку більшого розміру спричинить за собою додаткові витрати, причому не тільки в процесі зведення. Обслуговування і експлуатація великих котеджів обходиться дуже дорого, а більшість кімнат буде рідко використовуватися господарями.
Перший поверх заміського будинку і його планування
У більшості випадків набір приміщень для першого поверху однаковий для всіх варіантів планувань. Тут можуть бути розміщені кімнати різного призначення, але частина з них є обов’язковою:
- вітальня;
- кухня;
- санвузол для гостей;
- передпокій або хол;
- бойлерна.

Варіант планування першого поверху двоповерхового будинку з великою верандою
Корисна порада! Організуйте на вході в будинок невелике тамбурное приміщення, тоді холодне повітря не буде безпосередньо потрапляти в будинок при відкритті дверей. Таким чином, ви зможете зберегти комфортні температурні умови навіть у зимовий час.
Після внесення до планування обов’язкових приміщень у вас може залишитися вільна площа. Її можна використовувати для організації додаткових кімнат, наприклад:
- кабінету;
- гостьовий;
- їдальні.
Планування двоповерхового будинку 10х10 м може включати наявність гаража. Це приміщення включається в загальний креслення першого поверху і вноситься під дах будівлі, а також оснащується окремим входом в котедж. У більшості випадків приміщення гаража пропонує два входи. Один з них може пролягати прямо з дому (через передпокій), другий – з вулиці (через ролети).

Планування першого поверху будинку компактних розмірів
Домогтися вдалого розміщення кімнат нескладно. Головна умова успіху – виключити на плані вузькі і довгі коридори. Цього можна досягти за рахунок об’єднання просторів декількох приміщень. Що стосується коридорів, то простір, який вони займають, не можна розглядати як корисний і функціональний.
Як правильно поєднати кілька приміщень
Проблема невеликій площі першого поверху вирішується за рахунок видалення деяких перегородок, що дозволить максимально збільшити вільний простір. Цей метод суміщення приміщень називається студійної плануванням. На практиці виходить, що приміщення вітальні, кухні та холу з’єднані в одну велику кімнату, яка має суто візуальне поділ на функціональні ділянки.
Суміщені простору одночасно виконують роль тих же коридорів, звідки можна потрапити в гостьову кімнату, санвузол або кабінет, якщо плануванням передбачається наявність даних приміщень на першому поверсі.

Студійна планування дозволяє розсунути внутрішній простір будинку
Зверніть увагу! Сходи є незамінним атрибутом будівлі з двома поверхами. Вона може використовуватися в якості природної перегородки.
У рідкісних випадках прохідною кімнатою є кухня. В таких умовах робочий простір має острівний тип розміщення. Воно обов’язково комплектується барною стійкою, конструкція якої залежить від форми самого приміщення.

Об’єднані приміщення вітальні і кухні поділяються барною стійкою
Частіше за все встановлюються барні стійки наступних форм:
- трикутна;
- напівкругла;
- П-подібна;
- довільна.
Класичний варіант розподілу внутрішніх просторів, де кожна з кімнат має чіткі межі, можливий лише в тому випадку, якщо приміщення володіють великою площею. Тоді з’являється можливість ускладнити конструкційну форму кімнат, додаючи внутрішні перегородки, які не зможуть створити ефект замкнутих просторів. Кухню і вітальню можна поєднати, при цьому остання з них може бути абсолютно самостійною кімнатою.

Приклад планування першого поверху будинку без використання внутрішніх перегородок
Другий поверх заміського будинку і його планування
У класичних варіантах планувань другий поверх будівлі відводиться під зону для відпочинку всієї сім’ї.
Тут розміщуються:
- приміщення спалень;
- повноцінний санвузол з ванною для загального користування;
- дитячі;
- додатковий санвузол для батьків.
При наявності достатньої кількості місця нагорі облаштовується кімната для сімейного відпочинку, що є аналогом вітальні, але використовується виключно живуть в будівлі людьми. Тут же встановлюється гардеробна.

Планування другого поверху з чотирма спальнями великого двоповерхового будинку з мансардою
Корисна порада! Якщо котедж має гараж, над зоною його розміщення не варто розташовувати дитячі та спальні. Рекомендується поміщати туди зону, призначену для зберігання речей, сходовий майданчик або гардеробну кімнату.
Планування двоповерхового будинку: правила поєднання кімнат на другому поверсі
Так само як і у випадку з першим поверхом, слід уникати формування коридорів. Найбільш поширений варіант вирішення даної проблеми – організація невеликого п’ятачка з вільним простором. Він може розташовуватися перед сходами і служити в якості прохідного приміщення між іншими кімнатами на поверсі.

Спальня з виходом в кімнату відпочинку, організована на другому поверсі приватного будинку
Набагато рідше п’ятачок використовується в якості прохідної кімнати між дитячої і батьківської спальнями. Це обумовлюється тим, що подібне рішення можливе лише за умови наявності достатньо великої кількості місця. У невеликих двоповерхових котеджах внизу встановлюється лише один санвузол, щоб можна було використовувати площу нагорі виключно під спальні.
Батьківська спальня нерідко має суміжне розташування з однієї з кімнат невеликого розміру. Такі способи планування актуальні для сімей з маленькими дітьми. Менша кімната облаштовується під дитячу для малюка віком до 3-4 років. У міру дорослішання дитина переселяється з власну спальню, яка також може мати суміжне приміщення.

3D-модель невеликого за площею двоповерхового будинку
Якщо на плануванні передбачені спальні з суміжними приміщеннями меншого розміру, для кожного члена сім’ї може бути організована власна гардеробна. Невеликі розміри будинку не дозволять виконати таке рішення, тому допускається варіант облаштування однієї вбиральні на всіх з поділом на сектори, де кожен ділянка призначена для окремого члена сім’ї.
Приклади вдалих планувань котеджів з двома поверхами
При розробці планування варто враховувати той факт, що більшу частину часу мешканці проводять на першому поверсі. Це дозволяє використовувати вітальню в якості загальної кімнати, кабінету або дитячої. На другий поверх сім’я піднімається тільки для сну, тому рекомендується наділяти загальні простору максимально комфортними умовами, щоб створити зручності для всіх.

Варіант вдалого планування двоповерхового будинку 8 на 8 м
Двоповерховий котедж з мансардою та верандою
Планування з мансардою та верандою вважаються найбільш вдалими. А якщо в такому котеджі облаштувати ще й підвал, з’явиться простір для зберігання речей або консервації. На плануванні двоповерхового будинку 10 на 10 м можна побачити, наскільки вигідно може бути використано підвальне простір під будинком. А наявність мансардного поверху дозволяє поліпшити житлові умови і додати кабінет на першому або другому поверсі.
Корисна порада! На будь-який з планувань основними приміщеннями є їдальня і вітальня. Використовуйте їх простір з максимальною вигодою, встановивши вихід на веранду, у внутрішній дворик або сад. Завдяки цьому вечора у вітальні з друзями або в колі сім’ї стануть більш комфортними.

Двоповерховий котедж з мансардою та відкритою верандою
Мансарди використовуються для розміщення спалень. Їх кількість залежить від розміру мансардного поверху, а також потреб сім’ї. Нерідко тут облаштовуються та інші приміщення:
- гостьова кімната;
- більярдна;
- спортивний зал з тренажерами;
- кабінет;
- джакузі та ін.

В мансарді двоповерхового приватного будинку розташована ванна кімната з джакузі
У будинках, де є мансарда, перший поверх має масивну конструкцію, ніж другий. Якщо плануванням передбачається розміщення відразу декількох кімнат нагорі, не варто забувати, що котедж буде піддаватися високою ваговій навантаженні. Тому з метою безпеки рекомендується ретельно проводити всі розрахунки, враховуючи при цьому загальну площу будівлі, а також розмір ділянки, де буде здійснюватись будівництво.
Особливості будівлі з мансардним поверхом
Планування мансардного поверху приділяється підвищена увага. Оскільки це простір призначене для проживання і відпочинку людей, мансарда повинна бути максимально комфортною і зручною. Окремого розгляду заслуговує матеріал для будівництва даху.

Облаштування цокольного поверху, гаража і мансарди – ефективні способи збільшення корисної площі будинку
Найпоширеніші конструкції дахів:
- односхила;
- з двома скатами;
- ламана (з двома скатами).
Дахи з двома скатами дуже прості у виконанні і вимагають менших витрат на будівництво. Даний момент обумовлюється тим, що скати даху використовуються в якості бічних сторін, а торцеві зони – фронтонів.
Корисна порада! Облицювання фронтонів повинна виконуватися з допомогою того ж матеріалу, що і оздоблення першого поверху. З типом даху та покрівельного матеріалу потрібно визначитися заздалегідь – ще на етапі складання проекту. Заздалегідь продумується і наповнення мансардного поверху.

Дитяча спальна кімната, влаштована на мансардному поверсі приватного будинку
Переваги мансарди:

В мансарді двоповерхового будинку розташована затишна зона відпочинку
Переваги і недоліки мансарди в плануванні двоповерхового будинку 10 на 10: фото
Планування будівлі з параметрами 10х10 м, яка представлена нижче, має як переваги, так і недоліки, пов’язані з будівництвом мансардного поверху.
Планом будинку передбачається розміщення відразу трьох спалень (батьківського і двох дитячих) на мансардному поверсі. За рахунок цього простору під дахом сім’я з двома підлітками може з комфортом проживати в котеджі. Кожна спальня укомплектована гардеробом і робочою зоною. Всі приміщення виходять у довгий хол.

Проект 6. Фасад двоповерхового будинку 10х10 м
Розміщення кімнат виконано раціонально, але існує ряд недоліків, пов’язаних саме з мансардою. Велика частина з них проявляється ще на етапі будівництва.
По-перше, ускладнюється процес монтажу вентиляційної системи, а також всіх елементів теплоізоляції. Будь-яка помилка в технології може стати причиною промерзання приміщень або появи надмірної вологості, що призведе до порушення комфортного клімату та формування конденсату, появі цвілі.
По-друге, з’являються складності з природним освітленням, яке повинно потрапляти в кожну з кімнат в необхідній кількості.
Корисна порада! Якщо обмежитися виключно вертикальними вікнами, що встановлюються в спеціальну конструкцію, іменовану «шпаківнею», рівень природного освітлення буде вкрай малий. Рекомендується встановлювати спеціалізовані віконні конструкції, призначені для цих цілей.

Проект 6. План першого поверху: 1 – прихожа, 2 – хол, 3 – кабінет, 4 – вітальня-їдальня, 5 – кухня, 6 – ванна. План другого поверху: 1 – коридор, 2 – ванна, 3 – дитячий, 4 – спальня, 5 – дитяча
Недоліки, пов’язані з експлуатацією приміщень
Мансардне простір називають «мертвою зоною». Незважаючи на те, що приміщення мансарди нічим не відрізняються від аналогічних кімнат на першому поверсі, корисної площі в них набагато менше, оскільки похилі стіни не дозволяють встановлювати меблі впритул. Виходом з цієї ситуації стане меблі під замовлення. Ці вироби проектуються з врахуванням конструкційних особливостей приміщення. З одного боку, такий прийом дозволить незвично обставити кімнату, з іншого – спричинить додаткові витрати.
Мансарда практично завжди використовується в якості простору під розміщення спалень і дитячих, однак не можна назвати цю зону підходящим місцем. Особливо це стосується кабінетів і дитячих кімнат, оскільки похилі стіни можуть створювати у людини відчуття тривожності, внутрішнього занепокоєння і погрози.

Кабінет, організований в мансарді двоповерхового будинку
Особливості планування двоповерхового будинку з гаражем
Нерідко для зведення заміських будинків використовується деревина. Якщо для будівництва обрана саме вона, то для плану двоповерхового будинку з гаражем будуть потрібні деякі доповнення. У цьому випадку на стінових панелях потрібно виконати облицювання, гараж щоб візуально не вибивався із загального вигляду будівлі, гармоніював з ним.
Гараж може мати окреме приміщення, але це можливо тільки при наявності великий прибудинкової території. Для організації покрівлі будинку та гаража потрібно використовувати однакові матеріали, щоб не порушувати загальний екстер’єр двору. Крім цього, слід дотримуватися єдність і в плані конструкції дахів. Нахил повинен бути однаковий.

Двоповерховий будинок з прибудованим до нього приміщенням гаража
Проект двоповерхового будинку з гаражем розробити самостійно складно. Рекомендується використовувати готовий план, який можна замовити в будь-будівельної компанії або завантажити безкоштовно в мережі.
Корисна порада! В двоповерхових будівлях обов’язково встановлюється сходи. Простір під нею можна ефективно використовувати під зберігання речей. Правильно виконавши всі розрахунки, ви зможете помістити під сходи невелику комору або встановити полиці для книг тощо
План двоповерхового будинку 12 на 12 м з гаражем
У проекті, поданому нижче, враховуються потреби сім’ї з дітьми. Перша перевага, що кидається в очі, – наявність двох входів у будинок, розташованих з різних сторін будинку.

Проект 7. Фасад двоповерхового будинку 12х12 м з гаражем
Один вхід розташований з передній частині котеджу. Піднявшись на невеликий ґанок, власники будинку і їх гості потрапляють в тамбур, де можна зняти верхній одяг і взуття. Ця зона служить для збереження тепла в будинку і відділяється дверима від невеликого холу, в який виходять всі інші приміщення першого поверху. Для зручності в тамбурі можна встановити настінну вішалку з гачками для одягу гостей. У холі є місце для гардероба, що належить господарям.
Другий вхід в будинок розташований з протилежного боку будівлі. Велике ганок можна використовувати для організації їдальні на свіжому повітрі. Власникам заміського будинку не завадить для літа придбати набір садовий або складаний меблів для вулиці. Зручність розміщення другого входу обумовлюється тим, що з заднього двору можна потрапити прямо у вітальню. Це найкраще поєднання, якщо власники будинку люблять відпочивати на вулиці і приймати гостей.

Проект 7. План першого поверху: 1 – прихожа, 2 – сходовий хол, 3 – вітальня, 4 – кухня-їдальня, 5 – комора, 6 – туалет, 7 – гараж. План другого поверху: 1 – коридор, 2 – дитяча, 3 – спальня, 4 – дитяча, 5 – ванна
Об’єднання вітальні і кухні: переваги та недоліки
На плануванні видно, що приміщення великої вітальні з’єднана з їдальнею і кухнею. Досить часто даний тип розміщення рекомендують і самі дизайнери, які вбачають у цьому рішенні безліч переваг.
Переваги поєднання просторів:
- збільшення простору і корисної площі;
- візуальне розширення меж;
- комфортні умови для спілкування з родиною під час вечері або спільного відпочинку;
- зручні умови для прийому гостей;
- у процесі приготування їжі люди, що знаходяться на кухні, не відокремлені від інших мешканців.

Приклад об’єднання вітальні і кухні на першому поверсі будинку
У цього прийому є кілька недоліків:
- доведеться збільшити частоту проведення генеральних прибирань;
- неприємні запахи з кухні можуть поширюватися по дому.
Зверніть увагу! Суміщені простору на плануванні двоповерхового будинку 12 на 12 м мають один істотний мінус – потрібно узгодження дизайну всіх трьох приміщень (кухні, їдальні, вітальні), але при цьому потрібно візуально розмежувати кімнати за призначенням.
Методи візуального поділу простору
Дизайнери рекомендують використовувати спеціальні прийоми для візуального розділення простору:
- монтаж барної стійки;
- певне розміщення меблевого наповнення кухні, в результаті якого кухонна витяжка з виступаючою конструкцією буде грати роль роздільника;

Приміщення кухні-їдальні і вітальні відокремлені один від одного за допомогою меблів
- монтаж підлогового покриття різного типу. Наприклад, для кухні підійде плитка з каменю або кахель, підлога у вітальні краще оформити ламінатом;
- використання незвичайних колірних рішень при обробці стін. В додаток до цього кольору можуть дублюватися і на підлозі.
У цьому випадку разграничивающим елементом служить шафа, частково відокремлює простору їдальні та кухні від вітальні. Краще, якщо предмети меблів будуть мати однакову або схожу забарвлення. Це дозволить уникнути помилок при оформленні інтер’єру в приміщеннях вітальні, кухні і їдальні. За рахунок аксесуарів можна акцентувати увагу на певних ділянках кімнати або окремих об’єктах.
Стаття по темі:

Специфіка розміщення гаража
В залежності від розміру прибудинкової території, а також специфіки її використання (чи на ній встановлюватися додаткові споруди або розбиватися сад), приміщення гаража може бути окремим або включеним в будову хати. У нашому випадку планування передбачає приміщення гаража, яке примикає до будинку в якості прибудови.

Планування першого поверху приватного будинку з великим приміщенням гаража
Корисна порада! Гараж, поєднаний з котеджем, дозволить заощадити площу на ділянці. Завдяки такому рішенню знижуються і витрати на будівництво, так як окреме приміщення зажадає більш високих грошових вкладень.
У процесі проектування слід пам’ятати, що гараж рекомендується розміщувати з північного боку. Не варто забувати і про якісну вентиляційної системи, яка буде перешкоджати проникненню у будинок вихлопних газів, неприємних запахів і від парів палива.
Переваги поєднаного з будинком гаража:
- економія грошових коштів, що витрачаються на будівництво;
- швидкий і зручний доступ до житлової частини будинку;
- формування корисної площі над гаражем, яка може використовуватися в різних цілях;
- економія простору на ділянці.

Двоповерховий приватний будинок з гаражем на дві машини
До недоліків можна віднести лише ймовірність попадання газів з гаража в житлові кімнати.
Гараж, мансарда і веранда – далеко не єдині елементи, які можуть поліпшити планування, зробити її функціональної і комфортною. На великих ділянках можна додати до плану будови зимовий сад. Найчастіше цей елемент прилаштовується до кухні.
Подібні приміщення супроводжуються великими енергетичними та тепловими витратами. Якщо встановити огорожу від інших приміщень і посилити теплоізоляцію, даних проблем можна уникнути. Завдяки зимового саду та інших конструкційних доповнень можна створити унікальний будинок, в якому буде приємно жити цілий рік.
Артем Іванов 2018-11-23T14:26:13+00:00 Будівництво|Проект| ОЦІНИТЕ
МАТЕРІАЛ
Завантаження… ПОДІЛІТЬСЯ
У СОЦСЕТЯХFacebookTwitterOkGoogle+PinterestVk
