Перепланування квартири: що можна, а що не можна робити самостійно
Багато мешканців квартир зі стандартним плануванням незадоволені тими базовими даними, які їм надані. І це цілком зрозуміло, адже житлоплощу часто буває розділена таким чином, що проживання для сім’ї стає некомфортним. Якщо вашою метою є перепланування квартири: що можна, а що не можна – один з найпоширеніших питань на даному етапі. Розглянемо всі заборони, а також рекомендації фахівців в цій сфері.

Перепланування допоможе підвищити комфорт проживання в квартирі
Перепланування квартири: що можна, а що не можна здійснювати
Практично всі зміни, які мешканці багатоквартирних будинків можуть собі дозволити, контролюється на законодавчому рівні. Тому основа будь-якої діяльності – Житловий Кодекс, в якому передбачений спеціальний розділ, спрямований на регулювання цього питання.

Роботи по переплануванню квартир регулюються Житловим Кодексом РФ
Заборони на перепланування
Розглянемо докладно, що категорично заборонено робити в рамках проведення перепланування квартири.
Заборонено проводити будь-які будівельні роботи, спрямовані на руйнування або погіршення технічних характеристик несучих стін (часткове руйнування, потоншення, створення додаткових навантажень). Для того щоб перепланування була проведена безпечно для всіх проживаючих в будинку, зверніться до технічного паспорту квартири. Всі несучі стіни позначені на плані.
Заборона встановлена не тільки на знесення цих стін, але і створення на них додаткових навантажень. Встановлення будь-яких важких перегородок потребує отримання відповідного дозволу. У разі перепланування квартири без узгодження, Житловий Кодекс передбачає відповідальність у вигляді штрафу. За перепланування квартири без дозволу доведеться заплатити близько 4 тис. рублів.
Важливо! Якщо ви зіштовхнулися з фактом незаконного перепланування квартири – куди скаржитися вам підкажуть співробітники житлової служби.

Житловим Кодексом заборонено демонтаж капітальних несучих стін
Як зрозуміти, яка з стін несуча? По-перше, всі зовнішні несучі стіни обов’язково. По-друге, такими є стіни, які відділяють одну квартиру від іншої і від під’їзду. Щоб отримати точну інформацію, достатньо подивитися план квартири. Всі несучі стіни набагато товщі стінових перегородок, і зазначаються за допомогою спеціальної штрихування або жирною лінією.
Заборонено використовувати загальнобудинкові комунікації для перепланування власної квартири. У цьому випадку найчастіше мають на увазі використання гарячої води і системи опалення. Наприклад, для установки в квартирі теплих підлог необхідно забезпечити приміщення додатковим приладом підігріву води. Інакше ви ризикуєте створити високу навантаження на суспільну комунікацію, і або позбавити частина мешканців цього зручності, або суттєво знизити їм температуру води в крані. З цієї ж причини заборонено встановлювати додаткові батареї на балконах і лоджіях.
Заборонено порушення роботи вентиляційної системи, водяних стояків або газових труб. Будь-які роботи, пов’язані з затрагиванием цих систем, необхідно погоджувати з відповідними організаціями та проводити тільки після отримання дозволу.

Дозволений частковий демонтаж стін кухні, якщо в приміщенні використовується електрична, а не газова плита
Природно, постає питання про поєднання кухні і вітальні, адже це один з найбільш поширених варіантів перепланування в малогабаритних квартирах. Тут існує два варіанти вирішення проблеми:
- заміна газової плити електричної (в цьому випадку дозволяється навіть повне об’єднання кімнат в одне приміщення);
- монтаж додаткового дверного або віконного отвору на кухню (повне поєднання кімнат шляхом знесення стіни або створення відкритої арки не дозволено).
Заборонено збільшувати площу нежитлових приміщень шляхом зменшення житлових. Це означає, що відвести частину кімнати на розширення комори або коридору можна. Крім того, Житловий Кодекс не передбачає перепланування квартири в панельному будинку таким чином, щоб житлові кімнати залишилися без світла чи тепла.
Зверніть увагу! При переплануванні не забувайте про те, що площа житлової кімнати, яка вийде в результаті, не повинна бути менше 8 м2.

Площа житлової кімнати після перепланування повинна становити не менше 8 квадратних метрів
Заборонено кардинальна зміна розташування санвузла. Встановлювати ванну, раковину або душову кабіну безпосередньо над житловими кімнатами сусідів знизу не можна. Для розширення санвузла можна використовувати тільки нежитлові суміжні приміщення, наприклад, комору, коридор тощо
Зміни, які дозволені в рамках перепланування
Щоб зрозуміти, як зробити самостійно перепланування квартири, узаконити всі зміни і більше ніколи не повертатися до цього питання, розглянемо, що ж все-таки дозволено мешканцям багатоквартирних будинків і скільки коштує узаконити перепланування в квартирі.
Той факт, що Житловий Кодекс передбачає і дозволяє ті чи інші зміни, зовсім не означає, що їх проведення може здійснюватися у вільному порядку і бути нічим не підкріплена документально. Те, що деякі зміни можна, не звільняє від необхідності узаконення перепланування квартири. Отже, що ж можна поліпшити на своїй житлоплощі?

Всі здійснені обов’язково вносяться зміни в технічний паспорт квартири
Дозволено зносити стіни, які не є несучими. Їх можна демонтувати повністю або частково, переносити, видозмінювати. Крім того, можна зводити нові стіни, покликані розділити існуючий простір. Однак тут потрібно не забувати про допустимих межах навантаження на перекриття будівлі. Самостійно провести розрахунки дуже складно, тому краще звернутися до фахівця, який володіє всією необхідною для цього інформацією. Крім того, він підкаже, як погодити перепланування квартири.
Корисна порада! Якщо в процесі узгодженої перепланування квартири ви вирішили встановити додаткову стіну або перемістити вже існуючу, зверніть увагу на гіпсокартон. Це легкий, зручний в монтажі та обробці матеріал.
Можна збільшити розмір жилого приміщення за рахунок демонтажу стіни між існуючою кімнатою і лоджією. Тут також необхідна консультація фахівця, який зможе підказати найбільш підходящий варіант перепланування. Оскільки встановити додаткову батарею на балкон не можна, потрібно продумати, як зробити так, щоб лоджія не стала додатковим джерелом холоду.

Житловий Кодекс дозволяє будівництво додаткових стінових перегородок
Основний упор в поєднанні балкону та кімнати треба робити на утеплення зовнішньої стіни. Якщо всі матеріали будуть правильно підібраними і якісними, невеликого електричного приладу обігріву буде цілком достатньо, щоб підтримувати необхідну температуру в приміщенні.
Допускається розширення санвузла за рахунок суміжних нежитлових приміщень, таких як коридор і комора. Стіну між ними можна знести і збільшити, таким чином, розмір ванної кімнати. При отриманні відповідного дозволу можна зробити і монтаж джакузі у квартирі. Хоча така ванна має досить велику вагу, при належному облаштуванні перекриття її установка не буде створювати суттєву навантаження будівлі.
За участю відповідних служб допускаються зміни в роботі систем газо — і водопостачання. Спеціальна ліцензія дозволяє робочим провести розрахунки та роботи з цими комунікаціями.
Можна збільшувати площу кімнати, використовуючи нежитлове простір. Тут припустимі практично будь-які варіанти за винятком тих, коли мова йде про суміщення кімнати з кухнею, в якій є газова плита.

Приклад перепланування з метою збільшення площі санвузла
Дозволено розділяти існуючі кімнати додатковими перегородками. В якості прикладу можна подивитися плани перепланування двокімнатної квартири в трикімнатну.
Ціна узгодження перепланування квартири зовсім невелика, і зробити все відповідно до вимог закону цілком можливо. Про те, як отримати дозвіл на перепланування квартири ви можете дізнатися у житловій службі свого району.
Як узаконити перепланування квартири самостійно
Для того щоб своїми силами отримати дозвіл на перепланування житла, необхідно пройти кілька обов’язкових етапів:
- отримати дозволи в житловій інспекції на проведення робіт;
- скласти новий план квартири;
- провести всі ремонтні роботи, пов’язані з переплануванням;
- запросити і прийняти комісію, що складається з працівників житлової інспекції для перевірки і реєстрації вироблених змін.

Проводити ремонтні роботи можна тільки після отримання відповідного дозволу в БТІ
Як узаконити вже зроблену перепланування квартири
Якщо ви не хочете нести відповідальність – незаконне перепланування квартири не для вас. Однак припустимо, що зміни були зроблені раніше, без вашої участі. Як оформити перепланування квартири самостійно? Розглянемо порядок дій у цьому випадку.
Відповідно до законодавства РФ, а саме 4 частини 29 статті Житлового Кодексу, вже проведена перепланування може бути зареєстрована тільки через суд. Для цього необхідно надати наступні документи:
- документи, що підтверджують ваше право власності;
- технічний паспорт на квартиру (як новий, так і старий варіант);
- довідку з санепідемстанції;
- висновок про стан опорних конструкцій (його можна отримати в проектувальної організації, що має ліцензію);
- заяву;
- висновок Держпожежнагляду про відповідність перепланування усім протипожежним нормам.

Вже проведене перепланування можна узаконити тільки через суд
Щоб детальніше дізнатися про порядок узгодження перепланування квартири необхідно звернутися в Бюро Технічної Інвентаризації. Фахівці підкажуть, що потрібно, щоб правильно узаконити перепланування квартири, вартість процедури і які документи необхідно підготувати. Вам знадобиться надати свідоцтво про право власності та технічний паспорт на квартиру, на підставі яких буде складено заяву на отримання нового техпаспорта.
Незареєстрована перепланування квартири може спричинити за собою безліч різноманітних наслідків. В тому числі це стосується і переходу житла від одного власника до іншого. І мова йде не тільки про угоду купівлі-продажу, але і про обмін, прийняття в дар та спадкування. Тобто в разі необхідності здійснення будь-якої операції з нерухомістю, реальна планування квартири повинна збігатися з тією, яка вказана в документах. В іншому випадку доведеться тривалий розгляд та переоформлення.
Ще один випадок, що перешкоджає повноцінному використанню своїх прав як власника квартири – зміна меж житлової площі. Це може бути зроблено шляхом часткового приєднання сходової клітки. Відповідно до законодавства, будь-яка зміна встановлених меж тягне за собою визнання існуючих документів недійсними. Так що цілком ймовірно, що вам доведеться доводити своє право власності в суді, якщо розширення житлоплощі проводилося без дозволу відповідних організацій.

Вивіз будівельного сміття регулюється законодавчими нормами, за невиконання яких передбачений штраф у розмірі від 3000 рублів
Як видно, спочатку піти законним шляхом набагато простіше, ніж після оформляти вже вироблену перепланування. Ціна проекту квартири для узгодження також буде нижчою, якщо робити все вчасно і послідовно.
Скільки коштує перепланування квартири
Перш ніж починати зміни своєї житлоплощі необхідно з’ясувати, скільки коштує перепланування в квартирі. БТІ надають цілий ряд платних послуг, обійтися без яких ніяк не вдасться. Вартість оформлення документів перепланування квартири цілком прийнятна – близько 5 тис. рублів. Повна вартість проекту перепланування квартири може скласти від 20 до 100 тис. рублів.
Нижче наведено перелік витрат для самостійного узгодження перепланування квартири:
- оплата нового технічного паспорта (вартість узгодження перепланування квартири багато в чому залежить від регіону вашого проживання і площі квартири);
- мито державі за отримання нового кадастрового паспорта;
- витрати, пов’язані з проведення судових процесів (якщо оформляється вже здійснена перепланування): мито суду та при необхідності – оплата послуг юриста;
- складання та затвердження нового проекту квартири, який видає ліцензована організація.

Вартість перепланування квартири може становити від 5 до 100 тис. рублів
Важливо! Не варто затягувати і краще одразу замовити проект перепланування квартири. У кращому випадку ви просто не зможете її продати за необхідності, а в гіршому вам загрожує оплата дуже великого штрафу.
Варіанти перепланування квартир різної площі
Серед найбільш радикальних рішень розширення житлоплощі варто виділити створення квартири-студії. Для цього всі стіни, які не є несучими (за винятком стін санвузла), зносять і замінюють легкими напівпрозорими перегородками. Такий варіант відмінно підходить, якщо в квартирі проживає одна людина або молода пара.
Розглянемо різні варіанти перепланування трьох-, двох — і однокімнатної квартири.
Стаття по темі:

Перепланування трикімнатної квартири в хрущовці
Перепланування трикімнатної квартири в панельному будинку займе у вас багато сил і часу. Тому перед тим як починати монтаж, розробіть максимально детальний план і узгодьте його з відповідними службами. Це допоможе вам уникнути зайвих клопотів і заощадити на вартості перепланування квартири.

Трикімнатна квартира до та після перепланування
Але що, здавалося б, можна покращувати в квартирі, де є цілих 3 кімнати? Часто буває, що проживаючи вдвох або втрьох, сім’я не потребує такої кількості кімнат, а от розміри кухні залишають бажати кращого. В такому випадку роблять (як видно на численних фото) перепланування 3-х кімнатної квартири хрущовки, поєднуючи сусідню житлову кімнату з кухнею. Приклади вдалих рішень для квартир цього типу ви можете побачити на фото перепланування 3-кімнатної квартири 64 кв. м або іншій площі.
У процесі перепланування квартири, об’єднання кухні і кімнати в одну зону відбувається практично безболісно. Все, що вам для цього необхідно зробити узгодження перепланування квартири самостійно.
Особливу увагу варто приділити перепланування 3-х кімнатної квартири серії П-44Т. В квартирі такого типу є лоджія, яка може відмінно сприяти розширенню простору.

Поєднання в хрущовці кухні і вітальні дозволило отримати простору обідню зону
Варіанти перепланування двокімнатної квартири
Найбільш часто зустрічаються в інтернеті – фото перепланування 2-х кімнатної квартири хрущовки, демонструють повне або часткове об’єднання всього простору. Однак для сімей з дітьми цей варіант практично не розглядається, оскільки перепланування двокімнатної квартири в хрущовці покликана підвищити рівень комфорту, а не навпаки.
У квартирі, де 2 кімнати суміжні, варіантів перепланування (фото хрущовок добре демонструє такий тип квартир), не так вже й багато. Тут потрібно подумати про те, чи є варіант безболісно розділити кімнати за допомогою, наприклад, невеликого холу або гардеробної, або ж доведеться кардинально все міняти. У будь-якому випадку вам доведеться пожертвувати в процесі облаштування частиною площі одній з кімнат. Але, в даному випадку, воно того варто.
Одним із вдалих варіантів перепланування 2-х кімнатної квартири є поділ великої кімнати на дві маленьких. Це відмінне рішення для сім’ї з двома різностатевими дітьми, у кожного з яких з’явиться можливість мати свою окрему кімнату. Друга кімната в цьому випадку відводиться під спальню батьків. Кухні належить виконувати роль і вітальні, тому її доцільно об’єднати з лоджією або балконом.

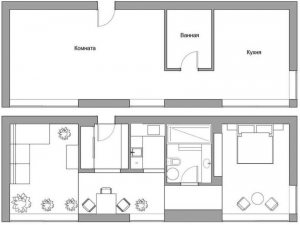
Приклад перепланування двокімнатної квартири 60 кв. м в трикімнатну
Перед тим як прийняти остаточне рішення, перегляньте якомога більше фото перепланування 2 х кімнатної квартири хрущовки, представлені в інтернеті.
Перепланування однокімнатної квартири в хрущовці
Як не дивно, але можливо зробити і перепланування однокімнатної квартири. Фото вдалих рішень доводять доцільність таких вкладень. Варіантів перепланування однокімнатної квартири досить багато, і всі вони спрямовані на візуальне і фактичне розширення простору.
В залежності від мети, якої ви прагнете, можна діяти в двох напрямках:
- перепланування студії в однокімнатну квартиру;
- перепланування однокімнатної квартири в двокімнатну.

Вдала перепланування однокімнатної квартири площею 50 кв. м
Також буває навпаки, коли господарі хочуть зробити з однокімнатної квартири студію. У цьому разі діяти треба за стандартною схемою об’єднання кухні і кімнати. Зразок проекту перепланування квартири такого типу нескладно знайти в інтернеті. Ціна проекту перепланування квартири цим способом є найнижчою.
Якщо планування вашої квартири не зовсім відповідає вашим побажанням, то це можна змінити. Достатньо зібрати необхідні документи і провести перепланування. Звичайно, це займе чимало сил і часу, однак ви зможете розширити ту частину квартири, яка найбільш затребувана саме у вашій родині. А це, безумовно, позитивно позначиться на вашому комфорті проживання в ній.
Артем Іванов 2018-05-27T20:09:10+00:00 Ремонт| ОЦІНИТЕ
МАТЕРІАЛ
Завантаження… ПОДІЛІТЬСЯ
У СОЦСЕТЯХFacebookTwitterOkGoogle+PinterestVk
