Опалення в приватному будинку з поліпропіленових труб своїми руками
Поліпропіленові труби популярні завдяки доступною ціною і якістю матеріалу. Низька теплопровідність полімеру зберігає температуру теплоносія. Низький еквівалент шорсткості внутрішніх стінок труб не знижує швидкість потоку. Проста технологія складання дозволяє швидко змонтувати опалення в приватному будинку з поліпропіленових труб своїми руками.

Озброївшись певними знаннями, можна змонтувати опалення з поліпропіленових труб своїми руками
Технічні характеристики поліпропіленових труб для опалення
Абревіатуру, з інформацією про робочих параметрах виробу, наносять на стінки труб. Базова маркування поліпропілену (РР) відповідає міжнародним стандартам:
- логотип фірми виробника;
- літерне позначення і доповнення про модифікації виробу (PP-random, PPRC, PPs);
- умовний тиск (PN25 МПа) робочого середовища;
- зовнішній діаметр і розмір стінки виробу;
- клас експлуатації;
- гранично допустимий робочий тиск у барах, що опосередковано вказує на термін служби виробу;
- стандарт продукту.

Поліпропіленові труби можуть бути армовані скловолокном або алюмінієм
Опис конструктивних особливостей, призначення та області застосування продукту призводить виробник в технічному паспорті виробу. Таблиця, як приклад, наводить дані про виробника продукції VALTEC (Італія):
КлассМесто примененияРабочее тиск, барСтекловолокноАлюминий1Горячее водопостачання, Т = 60°С13142Горячее водопостачання, Т = 70°С10113Теплые підлоги, Т = 50°С14184Теплые підлоги, Т = 70°С10135Радиаторное опалення (з урахуванням типу армування труби: алюмінієва фольга Т = 90°С, скловолоконна фібра Т = 90°З)69
Вироби з внутрішньою вставкою алюмінієвої фольги застосовують переважно для опалення. Армування поліпропіленових труб скловолокном також дозволяє їх використання в радіаторних контурах, теплих підлогах і гарячому водопостачанні приватних будинків. Однак труби з внутрішнім шаром з скловолоконної фібри допускають незначне подовження лінійних ділянок при нагріванні і проникність кисню.
Технічні характеристики армованих труб з поліпропілену (виробник VALTEC):
Фізичні свойстваАлюминиевая фольгаСтекловолоконная фибраДиаметр і товщина стінки труби, мм25х4,232х5,440х6,725х3,532х4,440х5,5Внутренний диаметр16,621,226,61823,229 Номінальний тиск, PN, бар2520Масса погонного метра труби, кг0,2620,4460,8800,2350,3780,590 Щільність PPR, р/см30,910,91 Наповнення труби, літрів на 1 пгм0,2170,3530,5560,2540,4230,660 Питома теплоємність при кДж/(кг*ºС)1,751,75 Межа зусилля на розрив, МПа3535Кислородопроницаемость, мг/м2 на добу−< 3,6 при 80ºСЭквивалентная шорсткість внутрішньої поверхні, мм0,010,015 Лінійне збільшення довжини 1/ºС3,1х10-56,2х10 5Коэффициент теплопровідності, Вт/(м*С)0,240,15
Фітинги та клапани для систем опалення з поліпропілену виконують з аналогічного матеріалу труб random сополімеру. Елементи без різьби призначені для з’єднання в розтруб, при якому труба вставляється в корпус фітинга. Внутрішній діаметр сполучних деталей (куточків 90º і 45º, муфт, перехідників, трійників, хрестовин і кранів) відповідає зовнішньому діаметру труби. Лінійне температурне розширення нівелюють готові компенсаторні петлі або зварні конструкції самостійного виконання.
Фіксатори (одиночні і блоки кліпс), призначені для кріплення прямих, горизонтальних або вертикальних ділянок трубопроводу вздовж стін. Крок установки кріплення (рекомендує виробник) залежить від розміру труби і якісних параметрів теплоносія. Хомути з аналогічного сировини призначені для кріплення ПП труб великого діаметру. Кріплення може бути жорстким або плаваючим, невеликий зазор забезпечить можливість вільного ходу при тепловому розширенні.

Будова армованої труби: 1 — поліпропілен; 2 — алюмінієва фольга; 3 — поліпропілен; S — загальна товщина труби; S1* — товщина основної труби; d — зовнішній діаметр; dy* — зовнішній діаметр основної труби
З’єднання зі сталевими трубами або арматурою отримують за допомогою комбінованих з’єднувальних деталей. Розбірні фітинги (американки) для переходу з металу на полімер випускають з внутрішньою або зовнішньою різьбою з гальванізованого металу з одного боку, і пропіленової вставкою з іншого.
Комплект фасонних і з’єднувальних деталей підбирається індивідуально для кожного приміщення в будинку. Кількість та марки фітингів залежать від конфігурації системи опалення та виду опалювального обладнання.

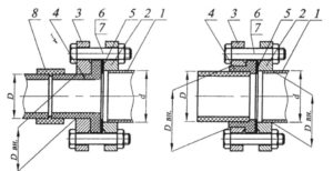
З’єднання поліпропіленової і сталевої труби: 1 — сталева труба; 2 і 3 — сталевий фланець; 4 — буртова втулка; 5 — прокладка; 6 і 7 — кріпильні елементи; 8 — муфта
Важливо! Прохід ПП труб через стіни і міжкімнатні перегородки оформляють прохідний гільзою, яка дозволить зміщення конструкції при тепловому розширенні і запобіжить стирання матеріалу. Між поверхнями внутрішніх кутів стін і поворотним вузлом трубопроводу з ПП залишають зазор компенсаційного ходу. Збільшення довжин лінійних ділянок не повинно викликати граничних напружень в зварних з’єднаннях.
Ціна пропіленових труб для опалення
Вартість продукту залежить від призначення і виробника. Відомі вітчизняні виробники, що спеціалізуються на виробництві армованих ПП труб: «Синикон» і «ЯрИнтерПласт».

В залежності від діаметру і типу армування, ціна поліпропіленової труби складе від 21 до 80 рублів за погонний метр
ПП труби марки PN25 МПа використовують для опалення. Ціна поліпропіленових труб армованих скловолокном нижче виробів з внутрішнім алюмінієвим каркасом (приблизно на 10%). Різницю пояснює гарантований термін служби продукту, дозволена температура теплоносія і робочий тиск системи.
Середня вартість поліпропіленових труб для опалення (ціна за метр):
Діаметр труби, ммкраїна-производительКласс експлуатації
/вид армированияЦена, руб/пгм25Италия5/алюминий33,7532Италия47,2540Италия79,5025Италия5/стекловолокно2332Италия42,2540Италия60,5025 Турция4/стекловолокно21,9920Турция5/алюминий21,52
За відгуками професіоналів, поліпропіленові труби для опалення — оптимальний варіант автономних систем. Однорідна паяння конструкція без різьбових з’єднань і металевих фітингів проста в монтажі і зручна при експлуатації.
Поліпропіленові труби у схемі водяного опалення приватного будинку
Трубна розводка передає потік теплової енергії від котла до приладів опалення. Вода — традиційний теплоносій систем опалення для заміських будинків. Аморфність полімеру до агресивному середовищі під дією високих температур є запорукою довговічності труб. Внутрішня поверхня труб чинить незначний опір напрямку руху потоку. Домішки, що містяться в теплоносії у зваженому стані (органіка, з’єднання солей жорсткості, окалина, частинки піску), не утворюють відкладень на стінках труб з поліпропілену. Армовані алюмінієм вироби виключають доступ кисню в систему опалення з трубопроводу. Шар фольгованого металу знижує ризик корозії теплообмінника котла, підвищує ресурс роботи системи в цілому. Численні матеріали, схеми, відео опалення своїми руками в приватному будинку без праці можна знайти в інтернеті.

Поліпропіленові труби системи опалення приватного будинку
Аварійне промерзання трубної розводки не загрожує руйнуванням поліпропіленових труб. Після розморожування води матеріал відновлює початкові властивості. Однак слід пам’ятати, що відігрівати труби з ПП з допомогою відкритого вогню не можна!
Збільшення лінійних розмірів труби при нагріванні, мабуть, єдиний істотний недолік виробів з поліпропілену. Армування алюмінієвою фольгою знижує в рази показник температурного розширення і підвищує рівень класності труб.
Важливо! У заміських будинках антифриз для систем опалення з пропілену не застосовують (дозволений матеріал труб для теплоносія «незамерзайка» — сталь, мідь, латунь і пластик, з гумовим зовнішнім контуром).

Схема опалення: 1 — поліпропіленові труби; 2 — кран кульовий; 3 — кран прямоточний радіаторний; 4 — розширювальний бак; 5 — циркуляційний насос; 6 — зворотний клапан; 7 — група безпеки; 8 — радіатор; 9 — термостатичний клапан; 10 — радіаторний кран; 11 — заглушка; 12 — кран Маєвського; 13 — кран кульовий; 14 — заглушка; 15 — термостатична головка
Враховуючи, що оптимальне тиск в контурі побутового котла 1,5÷2 бари, джерело тепла максимально наближений до споживача і температура в житловому будинку не опускається нижче 5°С, робимо висновок: армований алюмінієм поліпропілен — ідеальний матеріал для трубної розводки в приватному будинку.
Правила виробництва контактної теплової зварювання
Монтаж систем опалення з поліпропілену проводять при температурі в приміщенні не нижче 5°С. Витратний матеріал для термозварювання (комплектуючі деталі) повинен відповідати призначенню (PPRS).

Кроки з’єднання поліпропіленових труб за допомогою паяльника
Послідовність операцій при виготовленні вузлів за місцем провадження робіт:
- рез труби виробляють спеціальними ножицями по попередній розмітці на корпусі;
- підготовка поверхні зрізу включає зняття фаски на глибину 1 мм під кутом 30° і знежирення кінця труби ацетоном;
- відмітка кордонів плавки — на кінець труби олівцем наносять обмежувальну ризику;
- обробка робочих поверхонь паяльника;
- нагрів інструменту;
- розплавлення деталей (з витримкою тимчасових діапазонів діаметра труб за паспортом приладу, і співвісності деталей з корпусом праски);
- стиковка сайту без зміщень і обертання елементів;
- охолодження.
Розмір закладного ділянки труби для розігріву:
Діаметр, мм2025324050Расстояние від торця, мм14,5161820,523,5
Часовий регламент процесу ручного термічного зварювання (нормативні значення):
Зовнішній діаметр труби/внутрішній діаметр фітинга, ммВремя, сКонтакт з насадкойСтыковкаОхлаждение20541202574120328624040128300
Напруга електроструму в паяльнике для поліпропілену — 36В. Робота інструменту від побутової мережі вимагає наявності захисного відключення автомата.
Після охолодження з’єднань перевіряють прямолінійність стику, рівномірність валика зварного шва і відсутність дефектів зварювання. Кількість з’єднувальних вузлів, при виконанні правил контактного зварювання, не впливає на пропускну здатність системи. Мале опір зварних деталях обумовлено фізичними властивостями матеріалу і способом з’єднання без зменшення прохідного перерізу труби. Гідравлічні випробування на міцність і щільність системи ПП труб проводять через 16 годин після зварювання.

З’єднання труб за допомогою спеціального клею (холодне зварювання)
Схеми водяного опалення з поліпропілену для приватного будинку
Енергонезалежну або напірну, одно — або двотрубну схему вибирають виходячи з міркувань економічності і комфорту. Традиційно приватні будинки обладнають горизонтальною розводкою з незалежними поэтажными контурами. Система опалення невеликих будинків з природною циркуляцією представляє ланцюг послідовного з’єднання радіаторів. Ефективне теплопостачання будинки великої площі здійснюють двотрубної розводкою з примусовим рухом теплоносія.
Якісний монтаж і обв’язка обладнання неможливі без розрахунку пропускної здатності та визначення діаметра труб на кожній ділянці. Збіг розрахункових і фактичних витрат знизить теплові втрати, забезпечить стабільну, надійну і безшумну роботу системи.

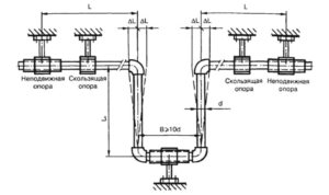
Монтаж поліпропіленових труб з Г-подібним компенсаторів теплового розширення
З допомогою онлайн-калькулятора можна зробити гідравлічний розрахунок для однотрубної схеми водяного опалення приватного будинку своїми руками. Програми DanfossCO і OvertopCO проводять розрахунки внутрішньобудинкових опалювальних систем з природною циркуляцією. Розрахунки в Excel Online зведені в зручну табличну форму. Заповнивши графу вихідних даних та обравши необхідні константи (графи виділені кольором), отримуємо результати розрахунку.
Класичний метод облаштування системи опалення однотрубна розводка. Пояснити монтаж зможе тематичне відео опалення приватного будинку з пропілену. Своїми руками можна швидко, акуратно і дешево виконати обв’язку обладнання.

Схема обв’язки труб в системі опалення з П-подібним компенсатором
Системи з однотрубною розведенням і природньою циркуляцією працюють під дією сил тяжіння. Ухил при прокладці труб та встановлення теплогенератора нижче рівня житлових приміщень збільшить швидкість руху потоку. Однак при послідовному підключенні радіаторів неможливо рівномірно розподілити тепло. Віддалені від котла приміщення прогріваються погано, виникає небезпека припинення циркуляції і скипання котлової води.
Проблему вирішує пристрій опалення приватного будинку своїми руками в схемі «ленінградка». Відео-ролики можна знайти в мережі.
Стаття по темі:

Винос патрубків до приладів опалення розділяє потік, більша частина теплоносія продовжує наскрізний рух по системі. Витрата через радіатор регулюють установкою вентиля терморегулятора, діагональним підключенням приладу або зміною прохідного перерізу байпаса.

Приклад облаштування петлеобразное компенсатора при монтажі ПП-труб
Опалення в приватному будинку з поліпропіленових труб своїми руками
Головні компоненти опалення — генератор тепла, труби і прилади опалення. Інше обладнання забезпечує працездатність системи при різних навантаженнях. Оснащення системи додатковими елементами залежить від розмірів будинку і модифікації обраного котла. Задані параметри роботи агрегату забезпечує група безпеки, розширювальна ємність з переливною трубою, нагнітач і пристрій регулювання тиску.
Якщо циркуляційний насос не вбудований в котлової контур, то нагнітач встановлюють на зворотній лінії трубопроводу, в безпосередній близькості генератора тепла. Місце установки розширювального бачка закритого типу для опалення — перед циркуляційним насосом. Групу безпеки монтують на лінії подачі біля котла.

Спайка поліпропіленових труб паяльником своїми руками
Важливо! Підключення потужного котла (понад 50 кВт) до трубної розводки з поліпропілену виробляють через метал. Фахівці радять поєднувати високотемпературний контур котла з системою вторинних контурів через гидроразделитель і колекторну гребінку, причому між котлом і гідрострілкою монтують металеві труби, потім пускають армований поліпропілен.
Поняття комфорту індивідуально для кожної людини. Але для всіх без винятку дім — це тепло. Опалення – невід’ємна частина будь-якого будинку. Прийняти грамотне рішення і втілити його власними силами допоможе максимальна поінформованість у даній темі.
Артем Іванов 2017-10-19T11:33:15+00:00 Опалення|Своїми руками| ОЦІНИТЕ
МАТЕРІАЛ
Завантаження… ПОДІЛІТЬСЯ
У СОЦСЕТЯХFacebookTwitterOkGoogle+PinterestVk
