Металеві садові лавки своїми руками: креслення і фото конструкцій
Лавки з металу менш популярні, ніж конструкції для саду на основі деревини. Адже технологічний процес створення дерев’яного виробу не вимагає застосування спеціалізованого інструментарію, а самі лавки виходять більш легкими і мобільними. Але якщо ви впевнені у власних силах завжди можна виготовити металеві садові лавки своїми руками: креслення і фото надійних конструкцій можна використовувати в якості наочного посібника.

Двомісна лава з вінтажними візерунками і м’яким сидінням
Металеві садові лавки своїми руками: креслення і фото, характеристика
Незважаючи на те, що даний вид конструкцій відноситься до розряду металевих, в більшості випадків на фото лавок з металу своїми руками, які зустрічаються в інтернеті, зображені вироби комбінованого типу. У них каркасна частина виготовлена з металу, а в якості матеріалу для сидіння і спинки використовується деревина.

Вдале застосування металевих елементів в лавках для саду
Таким чином не тільки здешевлюється будівництво лавки, але і сама конструкція стає більш практичною і комфортною, так як дерев’яне сидіння, на відміну від металевого, не розжарюється під сонцем.
Переваги лавки своїми руками з металу перед виробами з інших матеріалів
Металеві опори позбавлені тих недоліків, які притаманні каркасних частин лавок з інших матеріалів:
- чавун – найважчий вид конструкцій, який придатний для установки виключно в паркових зонах (вироби характеризуються високою вартістю, декоративністю і складною технологією виготовлення);

Яскрава і креативна конструкція лавки
- бетон – лавки мають велику вагу і супроводжуються цілим рядом труднощів в процесі установки на ділянці;
- камінь – вироби мають високу вартість і істотно обмежені в питаннях дизайну;
- деревина – незважаючи на красу, доступність і малу вагу, опори в даних конструкціях досить швидко приходять в непридатність, оскільки матеріал надзвичайно вразливий перед впливом погодних і кліматичних умов, а також негативних факторів навколишнього середовища (грибки, комахи, цвіль).

Оригінальна металева лавка, виконана з спинки старої ліжка
Корисна порада! Створення лавочки з профільної труби своїми руками вирішує проблему з виготовленням деталей для конструкції. Профільовані труби значно легше чавуну і дуже зручні в роботі.
Нерідко для створення металевого каркасу в якості сировини застосовується сталь. Саме цей матеріал вважається найбільш підходящим для ослонів і крамниць, призначених для установки на дільницях дачного типу та прибудинкових територіях заміських котеджів. Сталь практично не схильна до впливу корозійних процесів, руйнування. Вона пропонує безліч варіантів виконання дизайну за рахунок застосування методу декоративної ковки.

Поєднання металу і дерева в оригінальному виконанні
Особливості створення незвичайних конструкцій
Профільні труби застосовуються для створення декоративних елементів, якими можна доповнити готову лаву або лавку. Якщо ви прийняли рішення створити унікальну конструкцію – вам потрібно буде додати до загального списку необхідних інструментів ще кілька пунктів.
Для формування сталевого декору буде потрібно застосування:
- слюсарних лещат;

Металева конструкція є чудовим оформленням дерева в саду
- інструментарію для згинання труб;
- міні-верстата, іменованого «Равликом».
Щоб отримати симетричні вигини труб рекомендується використовувати плаз. Основою для його виготовлення служить шматок фанерного листа. Поверх нього слід нанести контурну частина декоративного елемента, який ви хочете отримати. Для створення витончених і рівних вигинів слід використовувати можливості паяльної лампи, яка розм’якшує матеріал і робить його піддатливим для згинання. Для цього достатньо впливати лампою на необхідну ділянку.

Незвичайна дитяча лавка з металу у формі метелика
Корисна порада! Не забудьте заповнити профіль піском перед тим, як приступите до процедури згинання.
Наповнені труби для згинання необхідно помістити на верстат, уклавши їх між упором і виступом, розташованим в центрі. Після чого можна приступати до роботи. Процес загинання труб при цьому здійснюється вручну.

Лавка з надійним каркасом з металу прослужить довгі роки
Лавочка з профільної труби своїми руками: фото і процес створення
Шукаючи цікаві ідеї в інтернеті можна помітити, що лавки і металеві садові лавки своїми руками, креслення і фото яких розміщені в мережі, в більшості своїй виготовлені на основі профільних труб. Даний вид матеріалу представлений на ринку в широкому різноманітті форм і розмірів, завдяки чому робота над конструкцією для відпочинку на дачі стає в рази легше і приємніше.

Схема конструкції з металевим каркасом
Профільні труби можуть мати переріз різної форми:
- прямокутник;
- овал;
- квадрат;
- ромб.
Виробники використовують в якості сировини для виготовлення профільних труб низьколеговану або вуглецеву сталь. Даний тип виробів призначений для цивільного та промислового будівництва, тому труби можна сміливо використовувати при облаштуванні дачного ділянки.

Основні матеріали для створення лави своїми руками: профільні труби і дерев’яні бруси
Переваги лавок з профільованих труб:
- підвищені міцнісні характеристики (стійкість до різних типів впливу, особливо до навантажень фізичної властивості);
- відносно низька вартість матеріалу у закупівлі;
- невелика вага готових виробів;
- простота і зручність в роботі.

Цілісність конструкції забезпечують кріплення з металу
Інструментарій для лавок та садових ослонів з профільної труби своїми руками
Незалежно від складності конструкції для створення лавки чи лавки на основі профільованих труб потрібно однаковий набір інструментів і витратних матеріалів.
Корисна порада! Використовуйте профіль для створення інших конструкцій на дачній ділянці. Даний вид матеріалу підходить для будівництва воріт, садових альтанок, огорож, гойдалок, виноградних арок, навісів і каркасів для створення зеленої огорожі.

Створення лавки вимагає наявності спеціальних інструментів для різання і зварювання металу, просвердлювання отворів та шліфування дерева
Для того щоб спорудити виріб з металевого профілю подбайте про наявність таких витратних матеріалів та інструментів:
- профільовані труби (діаметр підбирається на підставі креслень і особливостей експлуатації майбутньої конструкції);
- дошки, з яких буде виготовлено сидіння і спинка;
- апарат для зварювання;

Легка металева лавка з профільної труби
- електроди для зварювального апарату (3 мм);
- болгарка (можна замінити ножівкою для металевих поверхонь);
- диски для болгарки, призначені для металевих поверхонь;
- дриль;
- напилок (допускається використання шліфувального паперу);
- будівельний рівень і метр або рулетка;

Лавка з пересічними прутами вдало вписується в дизайн ландшафту
- рубанок для обробки дощок (необхідний лише в тому випадку, якщо деревина необроблена);
- фарбувальний склад для металу (фарба для зовнішніх робіт);
- фарбувальний склад, призначений для деревини, або морилка;
- молоток та плоскогубці;
- гайки і болти.

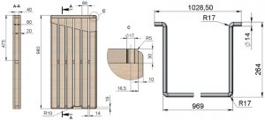
Схема лавки з профільної труби з елементами ковки
Підготовка матеріалів для створення конструкції без спинки
На деяких фото лавок з профільної труби своїми руками відсутня спинка. Такі конструкції називаються лавками.
Зверніть увагу! Лавка менш зручний ніж лава, що дозволяє спертися на спинку під час сидіння. Подібні вироби мають більш просту будову і технологію виготовлення, тому їх легше зробити. Встановивши лавку біля стіни, наприклад, в альтанці або будинку, ви зможете вирішити проблему відсутності спинки.

Акуратна металева лавка без спинки в красивому саду
Конструкція складається з 3 металевих прямокутників, сполучених парою труб. Ці труби утворюють сидіння лавки.
Розмірні параметри деталей:
МатериалКоличество, шт. Розмірні параметри, смКвадратный профіль або прямокутний (загальна кількість профілю)13×3 (перетин)
11000 (довжина)Труба660 (довжина)Труба645 (довжина)Труба2230 (довжина)Прямокутний дерев’яний брусок86 (ширина)
Крім цього, буде потрібно набір кріпильних елементів, що складається з болтів (24 шт.) і такої ж кількості гайок для них.
Стаття по темі:

Дана конструкція настільки проста у виконанні, що вам достатньо буде використовувати для створення лавки з профільної труби своїми руками фото, креслення для цього не знадобляться.

Використання металу для створення незвичайних конструкцій лавок без спинки
Технологія створення своїми руками садової лавки з профільної труби без спинки
Принцип виготовлення полягає в тому, що з відрізків труб формується 3 прямокутника, які з’єднуються між собою за допомогою направляючих. В результаті монтажу направляючих, утворюється рама для сидіння.
Рекомендації до роботи:
- особливості розміщення відрізків труб: довгі профілі розташовуються горизонтально, а короткі мають вертикальне положення;

Створення лавки з профільної труби. Крок 1: підготовка матеріалів
- кути між профілями, утворюють опори дорівнюють 90°;
- після проведення зварювальних робіт слід виконати обробку швів (ці місця зачищаються з допомогою шліфувальної машинки або напилка);
- оброблені шви обов’язково покриваються грунтующим складом;
Зверніть увагу! При бажанні довжину і ширину вироби можна збільшити. Для цього до конструкції треба буде додати додаткові опори.

Створення лавки з профільної труби. Крок 2: зварка металевого каркасу і підгонка дерев’яних брусів
- після закріплення опорної частини в кожному елементі необхідно виконати 8 симетрично розташованих отворів. Вони призначені для фіксації дощок сидіння;
- каркасна частина лавки обов’язково потрібно обробити фарбувальним складом, призначеним для металевих поверхонь. Він обереже матеріал від виникнення іржі;
- для просочення дерев’яних дошок слід використовувати морилку вподобаного вам відтінку;
- монтаж дощок сидіння до каркасної частини здійснюється в останню чергу, коли морилка і барвний склад повноцінно висохнуть;

Створення лавки з профільної труби. Крок 3: монтаж кованих елементів; шліфування зварних швів; фарбування металевого каркаса і дерев’яних брусів
- якщо у цьому виникне необхідність, допускається заміна дерев’яних рейок трубами з прямокутним перетином. При подібній заміні профілі сидіння приварюються до рами зварювальним апаратом, після чого виконується повне фарбування конструкції;
- щоб приховати гостру торцеву частину можна помістити рейки всередину металевої рами. Для цього вам буде потрібно додатково придбати ще 120 см профілю;
- під час дощу або в разі випадання інших опадів рекомендується ховати конструкцію під навіс. Якщо вона має стаціонарний тип розміщення, можна побудувати навіс над самим виробом.

Створення лавки з профільної труби. Крок 4: за допомогою саморізів закріплюємо бруски на каркасі, закриваємо ніжки пластиковими заглушками
Креслення лавки-трансформера своїми руками: розміри та особливості створення
Деякі лавки мають розширений діапазон функцій та складна будова. Як правило, їх виготовляють із дерева, і такі вироби можуть трансформуватися з лавки зі спинкою у зручний стіл з двома лавками.
Корисна порада! Ви можете створити аналогічну конструкцію із застосуванням профілю на основі схем дерев’яних лавок-трансформерів, адже креслення лавок з металу своїми руками практично нічим не відрізняються.

Лавка-трансформер з безлічі обертових дерев’яних елементів на металевій трубі
З допомогою лавок-трансформерів можна створити комфортну зону відпочинку в маленькому саду або на невеликій терасі. Використовуйте для створення конструкції з металевого профілю і деревини розмірні дані з таблиці.
Розмірна таблиця для деталей:
Назва элементаРазмерные параметри, смСоединительная перемычка2×2Ограничитель положення (довжина 3,5–4,9 см)2×2Основная труба4×2
Крім цього, у конструкції використовуються опорні стрижні. Вони підвищують рівень жорсткості конструкції.
Рекомендації по створенню конструкції-трансформера
Каркас виготовляється з профільних труб з тонкими стінками і різним розміром перерізу. Конструкція в складеному вигляді (лавка) володіє достатнім розміром, щоб на сидіння змогло розміститися 3 сидять. У положенні «стіл з лавками з кожного боку розміщується по 3 сидять осіб (загальна кількість присутніх – 6).

Лавка-трансформер. Схема 1: графічна візуалізація
Переваги конструкції:
- надійність;
- міцність;
- довговічність;
- доступна вартість (у дерев’яних конструкціях щоб забезпечити необхідну міцність лави для створення опор потрібно закуповувати дорогу деревину твердих порід: бук, дуб, ясен);

Лавка-трансформер. Схема 2: спинка-стільниця і фіксатор
- процес зборки не викликає складнощів (навіть якщо у вас немає навиків поводження зі зварювальним апаратом. Замість того, щоб возитися з пилкою, лобзиком і болгаркою при випилюванні дерев’яних елементів, вам достатньо закупити матеріал і найняти зварника, хоча це можна зробити і самостійно).
Після того, як збирання металевого каркаса закінчена, а також виконана захисна обробка металу і дерева за допомогою фінішних складів, слід закріпити дерев’яні елементи сидінь і стільниці, залишаючи при цьому невеликі зазори. Для фіксації рейок використовуйте саморізи.

Лавка-трансформер. Схема 3: дерев’яна сидушка і металевий фіксатор
Щоб конструкція стала мобільного досить прикріпити до неї кілька коліс. Це дозволить переміщати лавку в будь-яке зручне для вас місце.
Незалежно від того, який тип конструкції ви вирішили зробити, профільні труби знижують вартість будівництва, не завдаючи шкоди зовнішньому вигляду готового виробу.
Артем Іванов 2018-08-03T13:29:18+00:00 Облаштування, Ділянка|Своїми руками| ОЦІНИТЕ
МАТЕРІАЛ
Завантаження… ПОДІЛІТЬСЯ
У СОЦСЕТЯХFacebookTwitterOkGoogle+PinterestVk
