Літня кухня на дачі: проекти, фото цікавих ідей
Для багатьох садівників-любителів дачне проведення часу давно стало стилем життя. Деякі з них знаходяться там цілий рік, за винятком пари холодних зимових місяців, і вже на початку лютого займаються розсадою і роблять перші вилазки на ділянку. Особлива гордість дачників — літня кухня на дачі: проекти, фото яких часто викладають в мережі. Затишні і функціональні павільйони, часто побудовані своїми руками, готові в будь-який час прийняти гостей для привітного спілкування. Літня кухня — улюблене місце на дачі, де можна повною мірою насолодитися чудовим барбекю, приготованим на свіжому повітрі.

Відкрита літня кухня з грилем для приготування їжі
Планування будівництва літньої кухні на присадибній ділянці
Вибираючи підходяще місце для будівництва літньої кухні на дачі, необхідно врахувати безліч деталей — від самого проекту до обладнання, що планується в ній розташувати. Наскільки вона буде видалена від дому? Буде вона прибудована до основного будинку чи це буде окрема будівля в саду?
На жаль, не всі ділянки мають достатню площу, і для будівлі літньої кухні доведеться пожертвувати частиною городу або саду. І вже, звичайно – фінансова складова, яку також слід враховувати. Проте навіть невелика літня кухня може мати ексклюзивний вигляд і чудово вписатися в загальний ландшафтний дизайн.

Літню кухню закритого типу можна використовувати і в холодну пору року
Збираючись обґрунтувати на дачній ділянці літню кухню своїми руками, слід враховувати в проекті наступні фактори:
- будівля має бути віддалене від проїжджої частини, туалетів, септиків і місць розведення домашніх тварин;
- якщо планується зведення в кухні мангали, печі або барбекю, необхідно подбати про те, щоб поруч не було легкозаймистих будівель (протипожежними нормами передбачено мінімальна віддаленість 7 м від інших будівель при площі ділянки в десять соток);

Стіни і піч дачній кухні облицьовані штучним каменем
- можливість облаштування літньої кухні в зоні, де ростуть, дають густу тінь дерева, що забезпечить комфортне перебування в ній;
- доступність підведення комунікацій;
- тип будівлі — відкрита конструкція або літня кухня закритого типу;

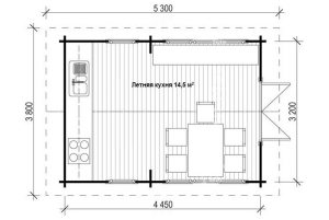
Проект стоїть окремо літньої кухні площею 14,5 кв. м
- оснащення обладнанням — електропіч, газова піч, камін, мангал, барбекю;
- вибір дизайну літньої кухні.
Корисна порада! Плануючи будівництво літньої кухні своїми руками, враховуйте характерне для вашого регіону напрям вітру, намагаючись розташувати вогнище так, щоб дим не потрапляв у зону відпочинку гостей.

Частково відкрита літня кухня, примикає до однієї з сторін будинку
Літня кухня на дачі: проекти, фото-приклади будівель з використанням різних матеріалів
Матеріали для будівництва своїми руками літньої кухні на дачі підбираються виходячи з особистих переваг і фінансових можливостей власників дачної ділянки. Органічно будуть виглядати будови з давно полюбилися природного каменю та дерева. Враховуючи, що ринок будівельної продукції рішуче розвивається, можна підібрати сучасні міцні і довговічні матеріали: полівінілхлорид, полікарбонат, профнастил та багато інших. Унікальні фото проектів літньої кухні на дачі допоможуть визначитися у виборі матеріалу для вашого варіанту.

Компактна дачна кухня для приготування їжі на кілька осіб
Якщо ділянка дачі огороджений цегляним парканом, ефектно буде виглядати павільйон літньої кухні з відповідного цегли чи каменю. З цього матеріалу можна облаштувати камін, мангал або барбекю. Підлогу можна викласти плиткою, яка чудово поєднується з каменем, практична для кухні і витримує мінливі погодні умови у випадку відкритої версії будови.
Доречним для такого проекту буде комбінування конструкцій з каменю з дерев’яними елементами. Кам’яні, цегляні і бетонні конструкції довговічні, однак вартість їх досить висока. Фото проектів літньої кухні на дачі з барбекю, мангалом надихне вас на створення свого індивідуального шедевра.

Відкрита літня кухня побудована з використанням цегли, каменю і дерева
Дерев’яні альтанки легких витончених конструкцій можуть служити в якості літньої кухні на дачі. Дерево завжди гармонійно вписуються у садовий інтер’єр, і зводити такі конструкції набагато простіше. Однак слід враховувати особливу і своєчасну обробку і догляд за дерев’яними елементами, які більш схильні до зносу і старіння.

Проект дерев’яної альтанки-кухні з невеликою терасою-їдальні
Корисна порада! Альтанку, яка використовується під літню кухню, можна обладнати по всьому периметру дерев’яними ємностями для посадки різних рослин і витких квітів.

Літня кухня на дачній ділянці оформлена в стилі кантрі
Що стосується сучасних матеріалів, то тут все обмежується лише вашою бюджетом і фантазією. Будівництво літнього варіанту кухні на дачі своїми руками може бути виконана шляхом комбінування металу і сайдінга, профнастилу та каменю. Для підлоги закритих приміщень застосовують лінолеум, ламінат, плитку для стін — вагонку, гіпсокартон та ін Ознайомтеся з підбіркою фото проектів літньої кухні на дачі своїми руками.

Одна зі стін літньої кухні обладнана широкими розпашними дверима
Приклади фото-проектів закритій літньої кухні на дачі
Переваги літньої кухні закритого типу на дачі (фото-огляд таких проектів це підтверджує) полягає в тому, що користуватися таким приміщенням можна в будь-який час року незалежно від погоди. Вони можуть бути окремо стоячими або прибудованими до будинку. В останньому варіанті не складе праці протягнути в кухню всі комунікації. З обладнання проектом літньої кухні на дачі (фото наочно це демонструє) часто передбачається камін, а в деяких випадках і піч.
Розміри літньої кухні з піччю, мангалом на дачі (фото проектів таких приміщень можна побачити на різних сайтах) встановлюються індивідуально, беручи до уваги площу дачної ділянки. У таких приміщеннях запросто можна перебувати в холодний сезон і якщо облаштувати там спальне місце, то в ній цілком можна буде проживати, економлячи на опалюванні всього будинку. А в літній період там завжди можна розташувати гостей, які приїхали на вихідні.

Повноцінна закрита літня кухня з підведеними комунікаціями
Багато використовують для літньої кухні відкриту веранду свого будинку на дачі. Такий варіант досить бюджетний, не потребує капітальних будівельних робіт. Відкрита частина веранди підлягає склінню і монтується вхідні двері.
Стаття по темі:

Літні павільйони для кухні, які стоять окремо, поєднують з погребом, майстерні, лазнею або душем, все залежить від фантазії та особистих уподобань. Але все ж, якщо ви знаходитесь на дачі тільки в теплий сезон, для літньої кухні рекомендуються відкриті легкі будівлі, типу альтанок або навісів. Вони менш затратні і дозволять велику частину часу проводити на свіжому повітрі.

Проект дачної кухні з металевої труби та профнастилу
Створення індивідуальної літньої кухні на дачі своїми руками
Існує безліч алгоритмів створення літньої кухні своїми руками, але основні стадії будівництва залишаються незмінними: підготовчі роботи, чітка розмітка, пристрій фундаменту, встановлення опор, монтаж даху і внутрішня обробка.

В літній кухні облаштований камін, який можна використовувати для опалення в зимовий час року
Фундамент для майбутньої літньої кухні
Якщо ви зупинилися на варіанті легкої конструкції для літньої кухні, то можна приступати до облаштування споруди своїми руками. Насамперед, необхідно зробити розмітку і почати з фундаменту. Так як будова легке, немає необхідності в пристрої капітального фундаменту. Можна викопати своїми руками котлован по периметру глибиною близько 15 див. Засипати щебенем або піском, утрамбувати і почати укладання тротуарної плитки або дошки для підлоги планованого павільйону.

Стовбур дерева в інтер’єрі дачній кухні виконує несучу і декоративну функцію
Корисна порада! Якщо для літньої кухні використовується відкрита конструкція, то рекомендується виконати підлогу з невеликим ухилом, щоб опади, які потрапляють через відкриті зони, могли піти самопливом.

Закриту і відкриту частини дачній кухні поділяє розсувне металопластикове вікно
У випадку зведення на дачі кухні закритого типу з повноцінними стінами, необхідно пристрій своїми руками стрічкового або стовпчастого типу фундаменту. Для такої основи влаштовують котлован глибиною до 50 см. Фундамент армують і заливають розчином. Всередині периметра вибирається грунт, засипається піском, потім щебенем і розчином.

Проект дачної будівлі з облаштуванням гаража, господарського приміщення та літньої кухні
Стіни і дах для літньої кухні
Для того, щоб звести стіни для відкритої літньої кухні, спочатку зводиться каркас майбутнього приміщення. Зазвичай його роблять з дерев’яного брусу (15х15). По кутах периметра в заздалегідь викопані ями глибиною до півметра по кутах периметру встановлюють дерев’яні опори, які згодом заливають бетонним розчином. Між ними на металеві куточки кріплять балки. Після цього каркас зашивають матеріалом, обраним для обробки. Рекомендується вибирати міцні матеріали, які не потребують додаткової обробки (сайдинг, пластик, профнастил).

Для будівництва повноцінного кухонного приміщення необхідно облаштування фундаменту
Якщо споруда передбачає фундамент, то до нього кріпиться дерев’яна конструкція рами, балки якої між собою з’єднують куточками. Подальші дії повторюють етапи, описані вище.

Каркасний будинок-кухня оформлено з застосуванням дерев’яних оздоблювальних матеріалів
Стіни приміщень закритого типу зводять з цегли, каменю або піноблоку. Товщина стін зазвичай береться в півцеглини. Внутрішнє оздоблення також залежить від особистих переваг: підійде обшивка панелями або штукатурка стін. Все залежить від того, чи буде використовуватися в приміщенні опалення чи ні.

Скляна стіна літньої кухні дозволяє закритого приміщення не втрачати зв’язок з природою
Дах для літньої кухні зазвичай влаштовується односхила. Для цього облаштовується конструкція балок з різною висотою протилежних сторін. Для покрівлі відкритих легких споруд застосовують відповідну по вазі черепицю, шифер або профнастил. Для закритих будівель, де використовується більш міцний каркас, підбір покрівлі обмежень майже не має.

Проект облаштування лазні з літньою кухнею і терасою
Затишна і функціональна літня кухня на дачі стане улюбленим місцем вашого відпочинку, де завжди можна буде вдало поєднати приємне з корисним.
Артем Іванов 2018-08-31T17:19:17+00:00 Кухня, Споруди, Ділянка|Проект| ОЦІНИТЕ
МАТЕРІАЛ
Завантаження… ПОДІЛІТЬСЯ
У СОЦСЕТЯХFacebookTwitterOkGoogle+PinterestVk
