Гвинтові сходи на другий поверх в приватному будинку: фото, ціни на конструкції
Гвинтові сходи по праву вважається королевою серед сходових систем. Завжди розкішна, з неперевершеним дизайном — така конструкція служить центральним декоративним елементом, навколо якого формується весь інтер’єр. Гвинтові системи сходів гранично функціональні, але при цьому не займають багато корисного простору. Огляд «Гвинтові сходи на другий поверх в приватному будинку: фото, ціни на конструкції» допоможе вивчити існуючі варіанти сходів і віддати перевагу функціональної, безпечної і компактній конструкції.

Стильна гвинтові сходи з дерева прикрасить будь-який інтер’єр
Гвинтові сходи: види конструкцій
Гвинтові сходи є найбільш привабливими і незвичайними конструкціями. Вони можуть відрізнятися за матеріалами, що використовуються для їх виготовлення і стилю конструкції. Класифікуються гвинтові сходи залежно від способу опори проступей (ступенів):
- опора ступенів на стіни і стовп — у такій конструкції щаблі гвинтових сходів клиноподібної форми спираються своєю широкою частиною на периметральные стіни, у той час як вузька частина сходинок має опору у вигляді середнього стовпа. Опорний стовп виконується з каменю або може бути набрано з потовщень ступенів;
- консольне кріплення ступенів навколо опорного стовпа — ступені такий гвинтової системи консольно кріпляться до центральної стійки у вигляді стовпа. Кріплення щаблів виходить досить жорстким, тому такі сходи може встановлюватися необов’язково поруч зі стіною;

Дерев’яні гвинтові сходи з опорою на вигнуту тятиву
- опора ступенів на вигнуту тятиву і огородження — така конструкція сходів не передбачає центральної опори. Ступені монтуються в спірально вигнуті тятиви, службовці в той же час і загородженнями. Виготовлення такої гвинтової конструкції пов’язане з певними труднощами, однак, вона має дуже привабливий і оригінальний вигляд;
- ступені нанизані вузькою частиною на обсадних опорну трубу — найбільш поширений спосіб кріплення ступенів: металеві проступи консольно спираються на внутрішню опорну стійку у вигляді труби. У цій конструкції важливо, щоб труба була не менше 50 мм у діаметрі, так як вона виконує роль несучого елемента в сходовій системі.

Варіанти конструкції гвинтових сходів
Для виготовлення гвинтових сходів застосовуються різні матеріали, серед яких:
- метал — нержавіюча сталь, легована сталь, латунь, шліфований алюміній, чавун;
- дерево — дуб, клен, бук, модрина, сосна та інші;
- камінь, цегла, кераміка, скло, мармур.
Для створення гвинтових систем застосовують різноманітні поєднання матеріалів, завдяки чому виходять оригінальні і незвичайні конструкції. Головною їх перевагою є висока міцність і стійкість до вагомим навантаженням.

Сучасні гвинтові сходи можуть бути найрізноманітніших форм і кольорів
Розрахунок гвинтових сходів
Розрахунок розмірів гвинтових сходів багато в чому залежить від призначення конструкції: буде вона основна або допоміжна. Якщо сходи виконує роль основної, рекомендується розмір її ступенів приймати не менше, ніж 90 см в довжину, а діаметр отвору, в який вона буде встановлюватися — 200 див. Виходить, що діаметр отвору повинен бути приблизно на 20 см більше двох величин довжини ступенів. Така величина отвору пояснюється необхідністю облаштування гвинтової сходової конструкції огорожею та поручнями. Тоді між перилами і поверхнею отвору залишається зазор в 10 см, що сприятиме зручному опиранию на поручень. У випадку з допоміжною гвинтовими сходами досить отвору з діаметром 140 см і довжиною ступенів 60 див. Зазвичай такі сходи використовують для підйому на горище або спуску в підвальне приміщення.

Компактна металеві сходи на горище
Конструкція гвинтових сходів така, що при пересуванні по них використовується не вся довжина сходів, а тільки широка її частина. Якщо, приміром, проектована сходи має ширину ступені 90 см, то частина від цієї ступені буде кріпитися до опорного стовпа, з іншого боку буде кріпитися огорожу. Таким чином, для ходьби залишиться близько 80 див. Але враховуючи, що ступені гвинтової конструкції мають забежное розташування, та їх частина, яка кріпиться біля стовпа, буде нависати над частиною наступного рівня. Отже, ширина щаблі, придатна для пересування, скоротиться ще на 25%. У результаті вийде, що з усієї сходинки шириною 90 см використовуватися для переміщення буде близько 50 див.

Витончені металеві гвинтові сходи
Для досягнення більш комфортного переміщення, діаметр отвору і розміри гвинтової драбини збільшують. Однак, не слід величину отвору приймати більше 300 см, у цьому випадку простір під займану сходи дозволить встановити маршову конструкцію.
Гвинтові сходи своїми руками. Креслення і схеми конструкцій
Численні фото гвинтових сходів на другий поверх своїми руками свідчать про те, що самостійне виготовлення таких конструкцій цілком можливо. Приступаючи до виготовлення сходів, необхідно визначити місце установки, розрахувати всі параметри, розібратися в кресленнях гвинтових сходів.

Гвинтові сходи з опорою на стіни і стовп
Для прикладу розглянемо гвинтову конструкцію сходи з дерев’яними клинообразными ступенями і несучою опорою у вигляді металевого стовпа. Такі сходи можна встановлювати як поруч зі стіною, так і посередині кімнати.
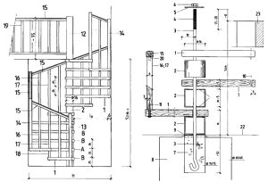
Схема конструкції сходів
Підставою конструкції гвинтових сходів служить несуча опора у вигляді стрижня, до якого прикріплені щаблі. Як правило, для несучого стовпа використовують масивну металеву трубу. Опорою ступенів служать прикріплені до стійки втулки. Їх можна виготовити самостійно, розрізавши сталеву трубу на циліндри певних розмірів. З двох сторін до циліндрів-втулок приварюють накладки, що мають отвори для насаджування їх на опорну стійку.

Зворотний бік ступенів гвинтових сходів можна обладнати зручними поличками
Для додання втулок естетичного вигляду їх обклеюють декоративною плівкою відповідної фактури. Це може бути імітація дерева або мармуру, в залежності від поєднання з матеріалом для ступенів. Іноді в якості втулок використовують дерев’яні елементи циліндричної форми. Тут головне, щоб торці всіх втулок були паралельні один одному.
Як зроблена гвинтові сходи: порядок установки
Монтаж сходів починають з установки несучої опори. Її довжина повинна бути більше суми висоти приміщення і товщини верхнього перекриття на 7 див. На верхньому кінці опори нарізається різьба довжиною близько 20 см, нижній край опори бетонується.

Метал і дерево — популярне поєднання для облаштування гвинтових сходів
Попередньо повинні бути заготовлені всі необхідні деталі сходів: сходи, втулки розпору, манжети, муфти. Всі деталі послідовно монтують на несучої опори. Як тільки остання щабель буде встановлено, всю систему фіксують за допомогою диска і прикручування на різьбу кріпильної гайки.
Корисна порада! Щоб з часом сходи при ходьбі не скрипіла, необхідно підтягувати верхню гайку кріплення у міру усадки проступей.
Далі кріпляться всі елементи огорожі, перевіряється фіксація ступенів і стрижнів загороджень і остаточно фіксується верхня кріпильна гайка.

Схема монтажу сходів
Пояснення до Схеми монтажу сходів:
1 — сходи;12,13 — верхня і нижня стійки огородження;2 — втулка для розпору ступенів;14 — кутова стійка огорожі;3 — несуча опора;15 — перила;4 — різьблення для закріплення стійки;16 — коротка стійка огорожі;5 — диск під гайку;17 — довга стійка огорожі;6 — гайка кріплення;18 — додаткова стійка огородження;7 — кріплення опори шляхом бетонування;19 — балюстрада;8 — фундамент будинку;20 — з’єднувальний палець;9 — виступ;21 — накладки втулки;10 — отвір під огорожу;22 — поверхня підлоги;11 — кріплення огородження;23 — перекриття.
Установка гвинтових сходів своїми руками з металу: креслення конструкції
Гвинтові сходи з металу можуть бути зовнішнього і внутрішнього використання. Якщо металева драбина встановлюється зовні, вона повинна гармоніювати з віконними гратами і вхідними дверима. У цьому випадку досить доречними будуть конструкції гвинтових кованих сходів. Якщо драбина встановлюється усередині приміщення, бажано, щоб її дизайн підтримував стиль інтер’єру. Гвинтові сходи з металу можуть бути збірними, литими, зварними.
При самостійному виготовленні гвинтових металевих сходів рекомендується ознайомитися і скористатися готовими схемами і кресленнями конструкцій, які адаптують під індивідуальні розміри.

Ступені гвинтових сходів нанизані вузькою частиною на обсадну трубу опорну
Розрахунок металевої конструкції
Розрахунок всіх параметрів сходової системи здійснюється з урахуванням таких моментів:
- щоб пересування по сходах було безпечним, відстань між сусідніми витками гвинтової конструкції має бути не менше 2 м;
- якщо конструкція є основною і встановлюється в приміщенні, діаметр отвору повинен відповідати розміру 200 см, а довжина щаблі 80 см;
- несуча металева опора повинна бути обрана у вигляді труби з діаметром не менше 5 см;

Сучасна гвинтові сходи з металу і скла
- ширина проступи (ступені) по середній лінії становить не менше 20 см;
- якщо гвинтові сходи оточена периметральными стінами, відстань від поручня до поверхні стіни має бути близько 10 см, щоб при пересуванні по сходах було зручно триматися за поручень;
- не варто збільшувати кут підйому сходи вище 45 градусів;
- гвинтові металеві сходи повинна мати якісну і сталий огородження;
- для безпечного пересування по щаблях зовнішньої драбини рекомендується використовувати антиковзні покриття.

Для безпечного пересування гвинтові сходи краще обладнати надійними поручнями і антиковзаючим покриттям ступенів
Вирішивши виготовити металеву драбину самостійно, необхідно знати, що така конструкція потребує знань та досвіду роботи зі зварювальним апаратом. Самостійного виготовлення підлягають металеві конструкції гвинтових сходів на другий поверх економ-класу. Влаштування таких сходів передбачає кріплення щаблів до опорної металевій стійці. Всі елементи сходів готуються окремо в комфортних умовах, а в приміщенні проводиться сама збірка сходів.

Металеві гвинтові сходи — вид зверху
Підготовка елементів і деталей сходів
Всі елементи сходової конструкції попередньо заготовляються згідно з кресленнями та схемами:
- трубу несучої стійки обрізають за розміром висоти приміщення;
- трубу більшого діаметра такого ж розміру;
- металевий стрижень для виготовлення больцевых кріплень;
- кутник металевий для виготовлення сходів.

Гвинтові металеві сходи, пофарбовані в яскраві кольори
З труби більшого діаметру нарізають циліндри для втулок-гільз, які будуть фіксувати ступені на певній висоті. Довжина втулки повинна відповідати висоті сходинки. Втулки-гільзи повинні щільно нанизуватися на опорну трубу. Якщо між трубою і гільзою залишається невеликий зазор, додатково приварюють кільця для ущільнення. Після виконання робіт всі зварювальні шви зачищають.
Металевий кутник нарізають по шаблону ступенів і зварюють з цих елементів каркас для ступенів. До кожної щаблі приварюють гільзу-втулку і також зачищають шви. Готують больци.

Збірна металеві гвинтові сходи заводського виготовлення
Гвинтові сходи мають дуже вузьку ширину ступені по лінії переміщення. Під час руху по таких сходах нога, яка ступає ближче до центральної опори, спирається на частину щаблі з меншою шириною. Це може призвести до зісковзуванню ноги, особливо при переміщенні вниз.
Корисна порада! Для зручності переміщення по гвинтових сходах, ступені конструкції не слід оснащувати подступенками. Це дозволить розмістити ступню ноги за лінією щаблі у вузькому місці.

Гвинтові сходи з скла і неіржавіючої сталі виглядають легкими і повітряними
Далі виробляють складання всіх деталей і елементів гвинтових сходів. Одну за одною на опорну трубу нанизують втулки зі сходами. Коли всі щаблі будуть зібрані, їх положення вирівнюють згідно з кресленнями, і всі частини зварюють між собою. Всі зварювальні шви шліфують. Металеву поверхню сходів обробляють грунтовкою і покривають фарбою. Каркас ступенів заповнюють облицювальним матеріалом.
Коли сходи зі сходами змонтована, приступають до установки огороджень і поручнів.
Для наочності процесу монтажу можна використовувати фото гвинтових сходів на другий поверх у приватному будинку.

Забарвлення сходи гармонує з колірним рішенням інтер’єра
Конструкції гвинтових сходів на другий поверх в приватному будинку: фото в інтер’єрі
Гвинтові сходи на другий поверх будинку, крім свого функціонального навантаження, несе головну декоративну складову. У зв’язку з цим продумується не тільки надійність і зручність конструкції, але і її відповідний дизайн.
Якщо ви віддаєте перевагу мінімалізму або стилю хай-тек, доречним буде вибрати металеву конструкцію. Такі сходи виглядають легкими і завжди будуть привертати увагу. Не варто забувати і про роль кольору сходів. Приміром, якщо сходи чорного кольору, її добре підтримає темна меблі, чорно-білі картини або килимові покриття з поєднанням чорно-білих смуг.

Гвинтові сходи — функціональна й компактна
Якщо у планованому вами інтер’єрі сходах відводиться місце другорядного декору, слід вибирати варіанти конструкцій, пофарбованих у світлі відтінки. Матова, не відображає інших предметів сходи, виглядає набагато легше, ніж темна, і буде майже непомітна. Багато вибирають моделі, пофарбовані в яскраві кольори, а іноді і з різнокольоровими ступенями.
Корисна порада! Щоб уникнути травматизму при пересуванні по сходах, необхідно оснастити конструкцію якісним огорожею, можна суцільним. Особливо це актуально для сімей з маленькими дітьми.

Гвинтові сходи економ-класу
До класичного стилю підійдуть гвинтові сходи, виконані з цінних порід дерева. Такі конструкції також слід підтримувати відповідної меблями, бажано майже в тон. Особливий шарм дерев’яним сходам надають огорожі, виконані з різьблених балясин. Не менш елегантно виглядають ковані огорожі в поєднанні з дерев’яною конструкцією сходів.
Використовуючи для з’єднання рівнів дерев’яну кручені сходи, можна наповнити будинок теплом і затишком. Адже дерево — матеріал, який поглинає енергію сонця, вітру, дощу і передає її всьому приміщенню.

Дерев’яні гвинтові сходи на гнутих тятивах
Якщо ви хочете додати сходах легкість і прозорість, можна використовувати конструкції зі скляними сходами. Огородження в даних конструкціях можна підбирати різні: дерев’яні перила в поєднанні з балясинами з алюмінію, горизонтальне алюмінієве огорожу або огорожу з прозорого пластику.
Гвинтові сходи на другий поверх в приватному будинку: фото, ціни, виробники
Застосування гвинтових сходів не обмежується тільки приватними і дачними будинками, їх із задоволенням використовують в офісах, готелях, спортивних центрах, клубах та інших приміщеннях громадського призначення. Завдяки своїй незвичайній конструкції і оснащення різними декоративними елементами, гвинтові сходи відмінно вписуються в інтер’єр приміщення практично будь-якого дизайну.

Ковані гвинтові сходи
Поєднуючи між собою різні рівні, гвинтова конструкція істотно заощаджує простір, отводящееся на рух по ній. Це дозволяє розмістити конструкцію навіть у невеликих за площею двоповерхових будинках. Цей факт і вплинув на неймовірну популярність гвинтових сходів на другий поверх в приватних будинках. Фото, ціни на реалізовані під замовлення вироби можна побачити на сайтах фірм-виробників. Як правило, компанії пропонують готові гвинтові сходи (ціни уточнюйте у виробника). Але багато з них можуть втілювати і дизайнерські проекти самих замовників, враховуючи індивідуальні розміри та особисті побажання.
Стаття по темі:

Гвинтові сходи на другий поверх в приватному будинку (фото, ціни вказані на відповідних сайтах), пропоновані виробниками, можуть бути виконані в будь-якому стилі: квадратні або овальні сходи, ковані або різьблені огорожі, дерев’яні або скляні декоративні елементи. Все залежить від ваших індивідуальних переваг і вибраного стилю приміщення.

Ступені гвинтових сходів можна оформити яскравими фарбами
Корисна порада! Знайти професійного сходового майстри сьогодні не так легко. Дотримуйтеся рекомендацій знайомих, призначайте особисті бесіди, з’ясовуйте всі моменти і ознайомтеся з портфоліо спеціаліста.
Де купити гвинтові сходи на другий поверх недорого? В інтернеті можна знайти каталоги продукції різних виробників. Моделі, представлені в них, виконані з самих різних матеріалів: металеві, дерев’яні, комбіновані, з елементами вставок з скла, мармуру, кераміки, вітражів та кованих виробів.

Зварна суцільнометалева гвинтові сходи
Багато компанії, прагнучи зробити доступними ціни на вироби для будь-якого покупця, пропонують системи знижок на найбільш популярні системи сходів. Ознайомтеся з цінами на деякі моделі гвинтових конструкцій, виконаних з різних матеріалів від компанії «Містер Степ»:
Модель гвинтовий лестницыМатериалЦена за 1 п/м, евроСтупениПорученьБалясиныGENIUs 010 T, діаметр 110-160 см, висота 210-380 см, крок 21 -24 смЯсень, букЯсень, букМеталлические з тросиками з нержавіючої сталиот 1250SCENIK ONE ТЯсеньЯсеньЯсеньот 2290GENIUS 030 T, діаметр 110-160 см, висота 210-380 см, крок 21 -24 смЯсень, букЯсень, букМеталлические з тросиками з нержавіючої сталиот 1200GENIUS 050 T, діаметр 110-160 см, висота 210-380 см, крок 21 -24 смЯсень, букЯсень, букПолированная нержавіюча сталь з прутками з нержавіючої сталиот 1750SCENIK SportМассив ясеняЯсеньОбработанный алюміній з нержавіючими тросикамиот 2450SCENIK CHIC-LINE QМассив ясеняЯсеньАнодированный алюміній з тросиками з нержавіючої стали2345
Щоб замовити конструкцію гвинтових сходів по прийнятною ціною, необхідно надати фірмі-виробнику такі дані:
- схему-план кімнати, в якій планується установка гвинтових сходів;
- місце розташування конструкції щодо кімнати;
- розміри приміщення з зазначенням висоти і діаметра отвору під кручені сходи;
- тип моделі сходи на другий поверх, кращі матеріали для її виготовлення, особливості загального стилю приміщення.
Враховуючи всі дані, фахівцями протягом короткого часу будуть створені вироби, які повинні строго відповідати експлуатаційним вимогам і нормам, незалежно від обраного дизайну. Крім того, в цілях безпеки експлуатації, рекомендовано замовляти сходові конструкції з оснащенням їх огорожами та поручнями.

Гвинтові сходи впишеться в будь-який стиль інтер’єру
Реалізація сходів — відносно новий вид послуг в будівельній галузі. Крім імпортних конструкцій на ринку представлено багато виробів вітчизняних виробників.
Фірми, що займаються продажем сходів, зазвичай приймають замовлення на конструкції за індивідуальними проектами. Крім того, вони надають послуги по доставці і складанню сходових систем. Але слід враховувати, що вартість виготовленої за індивідуальним кресленнях сходи буде на 20% дорожче стандартної моделі. Вибирати вам.
Артем Іванов 2017-12-04T14:54:26+00:00 Сходи| ОЦІНИТЕ
МАТЕРІАЛ
Завантаження… ПОДІЛІТЬСЯ
У СОЦСЕТЯХFacebookTwitterOkGoogle+PinterestVk
