Піддони – чудовий матеріал для створення оригінальної садових меблів
Комфортних умов для відпочинку на дачній ділянці можна домогтися різними способами. Поряд з альтанками і лавками, не останнє місце займають гойдалки для дачі своїми руками: фото найцікавіших виробів можна без зусиль знайти в мережі, а скориставшись покроковими інструкціями, ви зможете без особливих труднощів впоратися з виготовленням гойдалок. Користуватися такими гойдалками можуть навіть дорослі. Головне – точно розрахувати вагу і спорудити міцну конструкцію.

Гойдалки, розташовані на присадибній ділянці, стануть джерелом гарного настрою і для дітей, і для дорослих
Гойдалки для дачі своїми руками: фото та класифікація виробів
Традиційними матеріалами для виготовлення вуличних гойдалки для дачі своїми руками є метал і деревина. З метою поліпшення надійності і зовнішніх характеристик можна поєднати ці матеріали, а також частково прикрасити металеву конструкцію декоративною ковкою.

Яскраві гойдалки-кокон, підвішені до гілки дерева
Корисна порада! Для виготовлення сидіння можуть бути використані будь-які підручні матеріали, які можуть залишитися на ділянці після будівництва будинку або проведення ремонтних робіт.
Для будівництва можна використовувати:
- бруси;
- пластик;
- міцний канат;
- металеві труби;
- старі крісла або стільці, з яких необхідно попередньо видалити ніжки.

Комфортні гойдалки підійдуть для сну на свіжому повітрі або читання
Власники автомобілів можуть пустити в хід старі автомобільні покришки. Вони чудово поєднуватимуться з клумбами, виготовленими з аналогічного матеріалу.
Класифікація гойдалки для дачі своїми руками
Існує велика кількість оригінальних і зручних гойдалок, здатних прикрасити ландшафт будь-якої дачної ділянки.
Умовно їх можна розбити на три великі категорії:
- мобільні – вироби мають полегшену переносну конструкцію, завдяки чому гойдалки можна переміщати по ділянці в будь-який зручний місце, наприклад, в будинок, на веранду, альтанку або під навіс під час дощу;

Мобільний варіант гойдалок з основою з металу
- сімейні – вироби з масивною та важкою конструкцією. За своєю будовою вони нагадують лавки без ніжок з великою і високою спинкою. За рахунок великих габаритів на сидіння може вміститися вся родина. Щоб експлуатація таких гойдалок була безпечною, їх надійно закріплюють на рамі П-подібної форми. В якості фіксаторів використовуються міцні товсті троси або ланцюги. Якщо організувати над гойдалкою дах або тентовий навіс, ними можна користуватися навіть під дощем;

Затишні гойдалки, розташовані на відкритій терасі
- дитячі – особлива категорія виробів, як правило, мають форму човників чи підвісних крісел. До конструкцій висуваються особливі вимоги щодо каркасу, який повинен відповідати всім нормам безпеки. Зовсім маленькі діти можуть користуватися гойдалкою тільки в присутності дорослих і при застосуванні спеціальних ременів. З їх допомогою маля фіксується на сидінні і тому не зможе випасти.

Дитячі гойдалки з металевим каркасом, пофарбовані в яскраві кольори
Різновиди і фото гойдалок на дачі своїми руками
Гойдалки можуть бути класифіковані і за іншими ознаками. Розрізняють такі види виробів за типом конструкції:
- гамачные – підвішуються на поперечину з металу. В якості замінника поперечини може служити дерево з товстої і прямої нижньої гілкою. Під час використання такої конструкції у людини створюється враження ніби він ширяє над землею. Подібні гойдалки користуються великим попитом у тих, хто захоплюється читанням книг;

Гойдалки-гамак – відмінний варіант для релаксації і милування природою
Зверніть увагу! Гамачные вироби, за умови дотримання технології виготовлення, здатні витримувати вагове навантаження до 200 кг
- поодинокі – вироби з різними видами конструкцій, що не потребують встановлення додаткових перекладин. Ці гойдалки характеризуються швидкою системою монтажу, при цьому вони можуть встановлюватися в будь-якому місці. Для виготовлення застосовуються різні матеріали;

Красиві підвісні гойдалки у саду приватного будинку
- підвісні – конструкції являють собою сидіння, яке підвішується на кілька мотузок або ланцюгів. Мотузки кріпляться з боків. Завдяки застосуванню різних матеріалів, які дозволяють зробити виріб міцним, комфортним і легким, гойдалки підвісного типу можуть мати різну форму і розміри;

Затишні підвісні гойдалки з тканини, створені своїми руками
- шезлонги – вироби можуть вмістити сім’ю, що складається з двох дорослих та однієї дитини. Гойдалки володіють особливою конструкцією, яка передбачає фіксацію в єдиній точці кріплення, що дозволяє встановлювати їх у кімнаті. Матеріалом для виготовлення служить спеціальний сплав металів. Незважаючи на гадану легкість, ці вироби дуже міцні.

Великі сімейні гойдалки з металевим каркасом
Як самому зробити гойдалки на дачі з металу
Перед тим як приступати до справи, слід підготувати необхідні матеріали, а також інструменти.
Подбайте заздалегідь про наявність:
- напилка або наждачного паперу (для роботи з металевою поверхнею);
- зварювального апарату;
- електродів;
- ємності, щоб замішувати розчин;

Гойдалки з металу відрізняються вишуканістю і уявною легкістю конструкції
- інгредієнтів для приготування розчину (щебеню, води, цементу, піску);
- кріпильних елементів (гайок, болтів);
- металевих труб;
- гайкових ключів та лопати;
- болгарки і набору дисків по металу.

Сучасний дизайн металевих гойдалки для дачі
Створення гойдалок на дачі своїми руками: креслення і технологія
Перше, що потрібно зробити – це підготувати труби. Нарізка матеріалу здійснюється наступним чином:
- бічна стійка – 2 шт., довжина – 2 м;
- елемент підстави – по 2 шт. з кожної сторони, довжина на розсуд;
- поперечина – 1 шт., довжина – 1,5-2 м.

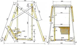
Монтажні розміри гойдалок з металу і дерева
Корисна порада! Після нарізки металевих труб на них можуть утворитися задирки. Для їх видалення скористайтесь напилком або наждачним папером.
Елементи, призначені для основи, слід закріпити за допомогою зварювання під кутом 45°. Далі до стійок приварюється перекладина під кутом в 90°.
Для установки конструкції слід викопати дві траншеї. Ширина цих поглиблень повинна відповідати отриманої в результаті складання тренозі, а глибина – не менше 0,8 м. Між траншеями повинна поміститися ширина поперечини.

Підвісні гойдалки незвичайної форми з металевим каркасом
У заглиблення будуть встановлюватися опорні частини гойдалок. Попередньо на дні слід сформувати подушку з піску. Товщина шару – 0,1-0,2 м. Після цього насип ретельно утрамбовується. Поверх встановлюється основу конструкції, поглиблення заливають бетонним розчином.
Для приготування суміші змішайте пісок, цемент і щебінь в наступних пропорціях: 2:1:1 (відповідно). До отриманої суміші додайте рідину і замішайте розчин. В результаті у вас повинна вийти однорідна маса. Слідкуйте за тим, щоб вона не була занадто рідкою.

Схема пристрою садових гойдалок: 1 — шурупи для кріплення планок спинки і сидіння; 2 — планки; 3 — куточки каркаса сидіння-качалки; 4 — штанга підстави ферми гойдалок; 5 — заклепки; 6 — сполучна смуга жорсткості сидіння і підвіска сидіння; 7 — бічні стійки ферми гойдалок; 8 — з’єднання кінців опорної рамки тенту; 9 — шнур для підвіски сидіння гойдалки; 10 — карабін; 11 — кільце; 12 — косинка-підкіс; 13 — верхня штанга ферми гойдалок; 14 — сполучні болти з шайбами і гайками; 15 — гвинт-фіксатор вкладиша; 16 — вкладиш з отвором і внутрішньою різьбою під з’єднувальний болт; 17 — широка розпірна шайба; 18 — опорна рамка для тенту; 19 — шайба; 20 — болт, що з’єднує верхню штангу з бічними; 21 — ригель — 2 шт. (сталева смуга з болтами)
На застигання бетону потрібно приблизно близько тижня. До цього моменту не рекомендується кріпити до перекладини сидіння, яке може утримуватися тросами або металевими балками. Переконавшись в тому, що розчин затвердне, прикріпіть методом зварювання гачки та встановіть сидіння на тросах. Якщо використовуються металеві балки, приварите сидіння до них. Коли конструкція повністю готова і встановлена, її можна покрити фарбою, щоб надати гойдалок гарний зовнішній вигляд і захистити метал від корозії.

Металеві гойдалки для дачі з тентом і м’якими подушками
Як зробити гойдалки на дачі своїми руками з деревини
Даною технологією розглядається створення своїми руками дитячих вуличних гойдалки для дачі з деревини, які здатні одночасно вмістити відразу кілька малюків. Розмірні параметри гойдалок можуть бути змінені на ваш розсуд.
Корисна порада! Використовуйте в якості матеріалу деревину таких порід: береза, сосна, ялина.

Дитячі вуличні гойдалки, побудовані з дерева
Підготовчий етап: інструменти та матеріали
Список матеріалів, необхідних для створення конструкції з деревини, включає:
- дошка – 15 шт., довжина – 2,5 м, перетин – 2,5х10 см;
- дошка – 1 шт., довжина – 2 м, перетин – 5х15 см;
- карабін – 6 шт.;
- самонарізи – 250 шт., розмір – 3,5х52 мм;
- ланцюг зварна, довжина якої підбирається з урахуванням висоти гойдалок, товщина ланок – 0,5 см;
- гвинти з оцинкуванням – 2 шт. розміром 1,2х10 см + 2 шт. розміром 1,2х8 див.

Дитячі гойдалки своїми руками: 1 — зовнішня бічна частина рами сидіння – 2 шт. (90х35х375); 2 — бічна внутрішня частина рами сидіння – 2 шт. (70х35х375); 3 — поперечка рами сидіння – 2 шт. (90х35х375); 4 — вертикальна деталь підлокітника – 2 шт. (45х35х275); 5 — вертикальна деталь спинки – 2 шт. (90х35х650); 6 — горизонтальна деталь підлокітника – 4 шт. (45х35х530); 7 — верхня деталь підлокітника – 2 шт. (145х20х585); 8 — верхній тримач ланцюга – 2 шт. (45х35х300); 9 — нижній тримач ланцюга – 2 шт. (70х35х150); 10 — передня і задня частини рами сидіння – 2 шт. (90х35х1300); 11 — поперечка спинки – 1 шт. (90х35х1400); 12 — дошка сидіння – 1 шт. (90х20х1170); 13 — дошка сидіння – 3 шт. (90х20х1230); 14 — дошка спинки – 12 шт. (90х20х850)
Ринковий асортимент пропонує саморізи різних забарвлень. Відтінок кріпильних елементів можна ефективно обіграти в дизайні гойдалок, тому вам варто приділити увагу кольору саморізів. Підібравши кріплення в тон дереву, ви зможете приховати місця з’єднання деталей конструкції. Саморізи контрастує забарвлення дозволять добитися цікавого ефекту.

Підвісні дерев’яні гойдалки, пофарбовані в білий колір
Не забудьте підготувати інструмент:
- рулетку;
- олівець;
- косинець, щоб відміряти розмір кутів;
- пилку циркулярного типу для розкрою деревини;
- дриль і набір свердел для неї;
- рубанок і ножівку;
- молоток.

Схема пристрою дерев’яних гойдалок з розмірами
Технологія створення дитячих гойдалок: як зробити своїми руками конструкцію
Якщо ви беретеся за виготовлення гойдалок власноруч, полегшити собі роботу можна одним простим способом – складіть план і намагайтеся його дотримуватися. Рекомендується заздалегідь підготувати проект, скласти креслення і намітити на них всі розмірні параметри, місця кріплень, проаналізувати майбутнє виріб на предмет надійності.
Стаття по темі:

Якщо ви не маєте досвіду в складанні креслень, скористайтеся готовими проектами. Фото дитячих гойдалок своїми руками, які ви зможете знайти в інтернеті, допоможуть вам визначитися з вибором відповідної конструкції. Не забувайте, існує велика різниця між гойдалкою, призначеними для дорослих, і дитячими варіантами виробів.

Підвісний варіант гойдалок з використаної автомобільної шини
На заздалегідь підготовлених деталях (довжиною по 1,5 м кожна) слід виконати зріз строго під прямим кутом. Дошки, що мають товщину 2 см, призначені для пристрою сидіння. На виготовлення спинки краще пустити дошки з товщиною 1,2-1,3 див. Для сидіння потрібно 32 планки, 15 з яких повинні мати довжину 0,45 м, решта 17 – 0,5 м.
Корисна порада! Щоб запобігти розтріскування деревини під час монтажу саморізів, просвердліть у елементах конструкції, які підлягають скріпленню, маленькі отвори.

Монтажні розміри гойдалок з металевим каркасом
Робота зі спинкою та сидінням гойдалок
Якщо ви бажаєте зробити більш комфортну і зручну конструкцію спинки сидіння, їй слід надати фігурну форму. Для досягнення необхідного результату використовуйте дошку з великою товщиною (перетин – 5х15 см). Вам потрібно зробити 6 деталей. За допомогою маркера або олівця нанесіть відповідну розмітку на заготовки.
Після цього потрібно визначити кут, під яким буде закріплюватися спинка. Фіксація планок здійснюється з однаковим кроком. Слідкуйте за тим, щоб планки були встановлені рівно. Для цього спочатку виконуйте фіксацію з боків, а потім – в середині.

Дитячі гойдалки, підвішені до каркаса на ланцюгах
Підвищити комфорт експлуатації гойдалок дозволить установка підлокітників. Рекомендується для цих цілей використовувати брус. Ширина при цьому не має особливого значення і підбирається з урахуванням власних побажань. Підлокітники з одного боку прикручуються до рамної частини спинки, з іншого – кріпляться до сидіння.
На наступному етапі можна закріпити зварену ланцюг на каркас. Оптимальне місце – нижня зона підлокітника, тобто там, де він з’єднується з сидінням. Візьміть спеціальний з’єднувач, у якого з одного боку розташоване кільце, а з іншого – нанесена різьблення. Він прикріплюється до перекладини і каркасної частині сидіння. Згодом через ці кільця буде проходити ланцюг.

Креслення крісла зі спинкою і боковинами для гойдалок (см): 1 — горизонтальний елемент боковини — 4 шт. (5х5х70); 2 — стрижень з’єднувальний — 3 шт. (d = 2,5 см, довжиною 80 см); 3 — косинець підсилює — 4 шт. (2,5х10х10); 4, 11 — вертикальні елементи боковини — 4 шт. (5х5х37,5); 5 — елемент каркаса спинки — 2 шт. (5х5х37,5); 6 — елемент решітки спинки і сидіння — 13 шт. (d = 2,5 см, довжиною 58 см); 7 — елемент каркаса сидіння — 2 шт. (5х5х67,5); 8 — напрямна шнура-підвіски — 2 шт. (d = 2,5 см, довжиною 10 см); 9 — штир — 4 шт. (d = 1 см, довжиною 7 см); 10 — фіксатор сидіння (d = 2,5 см, довжиною 68 см)
Для закріплення гойдалок краще використати стійку А-подібної форми. В якості опорних елементів потрібно взяти міцні колоди. Той, хто вміє поводитися зі зварювальним апаратом, може взятися за виготовлення металевого каркасу.

Яскраві дитячі гойдалки з оригінальним дизайном
Виготовлення опорної частини для дитячих гойдалок своїми руками
Багато майстрів, які займаються виготовленням гойдалок для дачних ділянок, віддають перевагу стійок А-подібної форми, так як вони забезпечують високий рівень надійності, міцні і витримують великі навантаження. На цьому етапі вам потрібно той же набір інструментів, що і при роботі з сидінням. Зрозуміло, якщо мова йде про стійці, виконаної з деревини. В іншому випадку вам знадобиться зварювальний апарат.

Опорні стійки А-подібної форми надійні, міцні і можуть витримувати великі навантаження
Перше, що вам треба зробити, це виготовити стійки. Вони повинні бути однаковими і мати один і той же розмір. Згодом ви зможете встановити на тій відстані, яку вам буде необхідно. Цей показник залежить від ширини місця для сидіння. Для з’єднання опор слід використовувати поперечину.
Важливо! Виконуйте точні розрахунки кута, під яким будуть з’єднуватися вертикально розташовані елементи стійок. Верхня частина стовпів потребує надійного скріплення. В іншому випадку їх може повести.

Надійне скріплення верхньої частини стовпів забезпечить високий рівень міцності всієї конструкції
Для монтажу поперечини намітьте 1/3 опорних стійок. Саме на цьому рівні буде здійснюватися установка. В якості фіксуючих елементів можна застосувати саморізи і куточки, виготовлені з металу. Слідкуйте за тим, щоб перекладина була встановлена на однаковій висоті. Зазвичай гойдалки мають одну перекладину, але, якщо ви бажаєте підвищити міцність конструкції, можна встановити дві.
Для монтажу підстави викопайте поглиблення в землі. Максимальна глибина становить 0,8 м. Споруда встановлюється на подушку з щебеню товщиною близько 0,2 м. Після того як стійки були поміщені всередину, їх заливають бетонним розчином.

Дитячі гойдалки підвісного типу з дерев’яним каркасом
З урахуванням того, що деревина вкрай схильна до гниття, слід обробити нижню частину стійок антисептичним засобом і виконати ізоляцію перед тим, як бетонувати основу. Для цих цілей варто запастися гідроізоляційним матеріалом. Підійде руберойд.
Так як в подальшому конструкція буде експлуатуватися дітьми, потрібно убезпечити її. Гострі кутові частини варто закруглити, нерівності і задирки усуваються шліфуванням.

Процес будівництва дитячих гойдалок з дерева
Фото дитячих гойдалок для дачі своїми руками і особливості їх виготовлення
Навіть якщо ви зовсім не дружите з рубанком і зварювальним апаратом, це зовсім не означає, що гойдалки на дачній ділянці так і залишаться для вас розкішшю. Існує маса найпростіших конструкцій, з виготовленням яких ви зможете впоратися. Причому більша частина з них не потребує закупівлі якихось дорогих матеріалів. Ви завжди можете озброїтися підручними засобами.

Прості дитячі гойдалки для дачі, підвішені на мотузках до гілки дерева
Гойдалки з підручних матеріалів: піддони
Піддони – дуже популярний вид матеріалу, з якого виготовляється меблі для дому і саду. Завдяки своїй універсальності вони можуть бути використані і для організації гойдалок на заміській ділянці. Для цього слід мати під рукою один піддон, мотузку і дерево, де буде підвішуватися конструкція.
Корисна порада! В якості заміни дереву можна встановити міцні опорні стовпи.

Піддони – чудовий матеріал для створення оригінальної садових меблів
Навіть виріб, створене на основі одного піддону, може мати кілька модифікацій. Цілісний елемент можна зафіксувати в підвішеному стані за чотири кута за допомогою мотузок. Цього достатньо, щоб гойдалки виконували свою функцію. Щоб створити затишок, поверх піддону досить покласти невеликий матрац і застелити його пледом або простирадлом. Кілька подушок зверху стануть своєрідним вирішенням проблеми відсутності спинки.

Затишні дитячі гойдалки з палет з м’яким матрацом і подушками
Конструкції такого типу можна експлуатувати не лише для читання книг на відкритому повітрі, але й для елементарного відпочинку від полуденної спеки в тіні. Їх можна використовувати навіть для сну.
Для створення своїми руками дитячої гойдалки з повноцінною спинкою потрібно два піддону. Як і у випадку з дерев’яними конструкціями з дощок і бруса, тут також слід обробити поверхню шкіркою, щоб позбутися від задирок. Виріб потрібно добре очистити та пофарбувати за допомогою барвника, призначеного для деревини та вуличних умов експлуатації. Досить скористатися і вологостійким лаком, який не зіпсують красу дерева.

Підвісні гойдалки для дачі, влаштовані з піддонів
Інші види дитячих гойдалок своїми руками
Найпростішим варіантом гойдалок вважається сидіння у вигляді дошки, підвішений за допомогою мотузок. Щоб не допустити швидкого перетирання мотузки, з боків дошки можна прибити ще дві деталі. Після цього виконується 4 отвори, через які просмикуються мотузки. Для фіксації на кінцях зав’язуються міцні і тугі вузли. Сама конструкція може кріпитися як на дерево, так і на опорна підстава П-подібної форми.

Красиві підвісні гойдалки стануть прикрасою присадибної ділянки
Гойдалки, підвішені на мотузки, можуть виготовлятися і іншим способом. Замість отворів в дошці формуються пази: пара в торцевій частині і пара по краях у кутовий зоні. Сидіння (дошці) можна надати форму півкола або залишити його прямим. За рахунок сили натягу мотузка не буде вискакувати з пазів, незважаючи на те, що вони відкриті.

Безпечні дитячі гойдалки з текстилю та дерева можна створити своїми руками
Корисна порада! Якщо у вас є непридатний скейтборд або дошка для катання по снігу, її можна використовувати замість сидіння, надавши гойдалок оригінальний зовнішній вигляд.
Для створення гойдалок на дачній ділянці можна використовувати велика кількість різних матеріалів аж до автомобільних покришок. Досить підвісити шину на гілку дерева за допомогою мотузки. Якщо ви дбаєте про природу, не варто використовувати ланцюг – вона занадто сильно травмує кору.

Підвісні гойдалки з плетеного стільця, прикрашені яскравими стрічками
Деякі умільці надають гойдалок з шини вигадливі різьблені форми. Для отримання оригінального дизайну досить обзавестися гострим ріжучим інструментом і готовими схемами. Розкрій шини можна робити за допомогою будівельного ножа. Попередньо нанесіть на її поверхню розмітку для надрізів, використовуючи крейду або темний маркер. Готовий виріб можна пофарбувати в яскравий колір або покрити малюнками.
Гойдалки з двох колод невеликого розміру, пов’язаних між собою мотузкою, дуже популярні серед дачників. Головне, щоб деревина була очищену, вирівняну і міцно пов’язаної.

Схема створення гойдалок у вигляді конячки зі старої покришки
Красиві конструкції і методи їх кріплення
Існує кілька варіантів кріпильних систем, які можуть бути використані для гойдалок. Дані варіанти найбільш поширені:
- карабіни – в цьому випадку брус обхватывается елементом, що має круглий перетин (використовується для оциліндрованих брусів) або прямокутне (квадратна форма карабіна для балок);
- анкери – по суті, вони є тими ж карабінами, що мають наскрізний тип кріплення.

Надійність і безпеку конструкції – головні властивості хороших дитячих гойдалок
Гойдалки з чотирма точками кріплення (2 на сидіння і 2 на спинці) може підвішуватися двома способами. У першому випадку ви зводите ланцюга або мотузки у спільне кільце, яке є сполучним карабіном. Після чого одна з мотузок або ланцюгів кріпиться до перекладини основним карабіном. В результаті у вас виходить дві точки фіксації на перекладині.
Інший варіант передбачає монтаж кріпильної системи, в основі якої лежить застосування 4 карабінів, які фіксують кожну з мотузок або кіл, провідних від конструкції.

Варіанти пристрою сидінь гойдалок, а також спосіб кріплення анкерів до перекладині
Гойдалки у вигляді лавок можуть кріпитися на гаках, які монтуються в бічні стінки опорних стовпів.
Матеріали для створення красивих гойдалок для дітей на дачі своїми руками
Якщо ви не бажаєте обмежуватися застосуванням підручних матеріалів, а хочете створити оригінальну і гарну конструкцію можна використати цікаві породи дерева і метали.
Корисна порада! Поліпшите виріб, додавши до його конструкції зручну спинку або поперечину, розташовану попереду. Завдяки такому обмежувача ви зможете підвищити рівень експлуатаційної безпеки гойдалок.

Для вуличних підвісних гойдалок краще вибирати дошки з листяних порід дерев
Для створення красивих гойдалок будуть потрібні:
- карабіни з міцного металу;
- дошки листяних дерев;
- ланцюг для підвішування;
- самонарізи з різними розмірними параметрами;
- гвинти, укомплектовані кільцями, які застосовуються і для підвісних домашніх дитячих гойдалок, які встановлюються в кімнаті.

Зручні дитячі гойдалки гамачного типу з цупкого кольорового тканини
Набір інструментів для роботи обмежується:
- дрилем і комплектом свердел;
- пилкою і ножівкою;
- лобзиком і рубанком;
- молотком;
- пристосуваннями для вимірювання та розмітки (косинцем, рулеткою, крейдою, олівцем/маркером).

Звичайні старі покришки можна перетворити в оригінальні гойдалки для дітей
Для монтажу гойдалок потрібно підбирати тінисте місце, наприклад, ділянку під деревом чи під дахом навісу, тераси. Можна оснастити навіть саму конструкцію дахом або під навісом, в іншому випадку доведеться прикривати виріб брезентом або плівкою в непогоду.
Початковий етап виготовлення виробу
Будь-яка стійка конструкція гойдалок починається з вкопуванн опорних стовпів на глибину 0,8 м. простір, що Залишився в поглибленні заповнюється бетонним розчином. Потім поперечина з’єднується зі стійками.

Пристрій дерев’яних гойдалок: 1 — верхня зв’язка (довжина 115 см, ширина і товщина дошки 10х5 см); 2 — дошка-козирок, закриває головки болтів і захищає стяжку від негоди (довжина 145 см, ширина і товщина 22,5х5 см); 3 — дві стійки (висота 275 см, ширина і товщина 22,5х5 см), відстань між стійками — 105 см, кінці стійок бетонуються в землю на глибину 60 см; 4 — ланцюг оцинкована, прикріплюється зверху і знизу до рим-болтів на стяжних муфтах; 5 — сидіння (довжина 60 см, ширина і товщина 15х5 см)
Подальші дії залежать від того, який тип матеріалу використовується для виготовлення виробу. Якщо гойдалки створюються на основі металевих труб, з’єднання всіх елементів здійснюється тільки з використанням зварювального апарату. Для опор з деревини потрібні попередня обробка антисептиком і гайок з болтами в якості кріпильних елементів.
Сидіння складається з двох рам. Одна з них буде спинкою, друга – сидінням. Установіть і закріпіть на них шматки фанери або дерева. Після цього потрібно буде закріпити рами під кутом строго 120°.

Процес зведення дитячого комплексу з гойдалками і гіркою з дерева
Для того щоб прикріпити до сидіння мотузку або ланцюг, виконується монтаж скоб або спеціальних гачків. Це дозволить підвісити конструкцію до перекладини.
Зверніть увагу! Гойдалки підвішуються таким чином, щоб ноги людини, що сидить на них, могли торкатися землі.
Дизайн конструкції можна поліпшити, прикрасивши її або встановивши в якості сидіння який-небудь незвичайний предмет.

Дитячі гойдалки, підвішені до дерева на мотузці
Монтаж кріпильного механізму на дитячих гойдалках для дачі своїми руками
Підвішування сидіння гойдалок до перекладини здійснюється за рахунок скоб або спеціальних гачків. Якщо конструкція буде утримуватися тросами, потрібно придбати ще й затиски, які будуть виконувати функцію фіксаторів. Допускається використання інших матеріалів, наприклад, ланцюги або мотузки.
Рекомендується взяти ланцюг з ланками великого розміру. Це дозволить збільшити термін служби виробу за рахунок того, що метал, з якого вони виготовлені, не боїться негативного впливу погодних умов і температурних перепадів. Більш того, ланцюг нерідко використовується для декорування ландшафту. Вона доповнить дизайн двору на заміській ділянці.

Монтаж кріпильних елементів для підвісних гойдалок
Зона монтажу підвісу вимагає ретельного зміцнення. В декоративних цілях на дерев’яне сидіння можна покласти подушки, матрац або натягнути поверх тент. Ці елементи не тільки зможуть прикрасити виріб, але і підвищать комфорт експлуатації, зроблять його приємним для відпочинку.
Оскільки конструкція виконується для дітей, краще оснастити сидіння гойдалок зручною спинкою. Що стосується підвіски, то він у цьому випадку менш важливий.

Схема пристрою підвісних гойдалок з автомобільної шини на металевому каркасі: 1 — стійки; 2 — покришка; 3 — зварна калібрована ланцюг; 4 — болт М12 з вушком; 5 — відрізок швелера № 14, довжина якого становить 200 мм; 6 — сталева пластина 140х200 мм; 7 — болт М12
Як зробити дитячі гойдалки своїми руками безпечними і зручними
Зона, де відпочивають і розважаються діти, повинна бути безпечною. Слідуючи простим правилам, цього можна легко досягти:
- використовуйте самі безпечні і надійні вузли;
- мотузка з нейлону в меншій мірі шкодить дереву, ніж інші;
- оптимальний варіант дерева – дуб;

Дитячі гойдалки з дерева, створені своїми руками, у вигляді миші і жука
- розібравшись як зробити гойдалки на дачі, перш, ніж закріпити їх на дереві, уважно огляньте гілку, на яку вони будуть підвішуватися. Впевніться у відсутності тріщин, зайвої сухості, ознак хвороби;
- якщо для підвішування гойдалок використовується ланцюг, рекомендується помістити її всередину пластикових трубок. В іншому випадку пальці дитини можуть потрапляти у ланки;
- слід перевіряти гілку з гойдалками на предмет надійності, оскільки в ході використання конструкції деревина поступово перетирається і руйнується. Робити це потрібно щотижня;

Перед використанням гойдалок дітьми обов’язково перевірте конструкцію на міцність
- перед тим як дозволити дітям користуватися виробом, перевірте його на предмет міцності. Для цього підійде найбільший член сім’ї. Якщо гойдалки витримають його вага, значить можна їх віддавати в експлуатацію;
- використовуйте тільки надійні варіанти карабінів.
Не слід забувати і про естетичну сторону питання. Зробіть бічні частини гойдалок фігурними, щоб дітям було цікаво. Боковини можна виконати у формі динозаврів або автомобілів, кораблів.
Артем Іванов 2018-08-09T12:24:06+00:00 Облаштування, Ділянка|Своїми руками| ОЦІНИТЕ
МАТЕРІАЛ
Завантаження… ПОДІЛІТЬСЯ
У СОЦСЕТЯХFacebookTwitterOkGoogle+PinterestVk
