Альтанка своїми руками з дерева: покроково зводимо легку конструкцію
Багато жителів заміських та дачних селищ мріє прикрасити свій сад витонченої альтанкою. Вони переглядають сторінки віртуальних журналів у пошуках цікавого рішення. І воно є, це альтанка своїми руками з дерева: покроково дотримуючись технології зведення і дотримуючись рекомендацій досвідчених професіоналів, можна побудувати неповторний павільйон, який стане улюбленим місцем відпочинку для всієї родини і ваших гостей. Самостійна споруда не тільки заощадить бюджет, але і дозволить отримати масу задоволення від процесу.

Побудувати альтанку своїми руками з дерева достатньо просто
Креслення і розміри альтанки своїми руками
Конструкції альтанок вельми різноманітні і цікаві. Деякі споруди відрізняються нестандартними формами, вони можуть бути відкритими або закритими, обладнуватися мангалами і барбекю. Але якщо ви зважилися на будівництво вперше, краще вибрати відкрита споруда простої форми, наприклад, квадратної або шестигранної. Креслення та ескізи в проекті такої альтанки не будуть складними і цілком піддадуться самостійної розробки.

Оригінальне облаштування тераси з дерев’яною альтанкою і грилем
Насамперед, ви повинні визначитися з дизайном конструкції і вибрати місце під майбутню споруду. Розробка проекту включає в себе два етапи: створення ескізу і креслень конструкції профільної та фронтальній проекціях. У кресленнях альтанки відображаються габарити, висота стійок, форма даху, місце розташування входу, висота огорожі. Якщо передбачається стаціонарна установка столика і крамничок, необхідно їх розташування відобразити в плані.

Схема облаштування простий альтанки з двосхилим дахом
Окремо виконується робоча схема фундаменту і креслення даху із зазначенням її форми, висоти, кута нахилу. У проекті прописуються схеми технічних вузлів (дах, крокви, сходи), технологія зведення споруди, специфікація на матеріали фундаменту, стін, перегородок, підлоги, покрівлі. Також враховується витрата спеціального складу для ефективної обробки деревини від впливу зовнішніх факторів.
Якщо передбачається оснащення конструкції освітленням, на кресленні фіксуються місця установки світильників і схема розведення електричної проводки. Це стосується і можливої підводки в павільйон води.

Креслення облаштування закритої альтанки з фундаментом
Грамотно складений проект є запорукою успішного будівництва. Точні розрахунки кількості необхідних брусків, дощок, кріпильних деталей, покрівельного покриття, метизів та інших необхідних елементів дадуть можливість придбати повний комплект матеріалів для будівництва та уникнути необґрунтованих витрат.
Корисна порада! Закуповувати матеріали слід з невеликим запасом, враховуючи, що деякі частини можуть бути помилково зіпсовані в процесі монтажу або придбаних матеріалах попадуться браковані елементи.

Креслення шестигранною альтанки з розмірами
Якщо ви сумніваєтеся у своїх інженерних здібностях, і розробка проекту здасться для вас складним заняттям, можна скористатися готовими кресленнями альтанок з дерева своїми руками. Фото, ескізи таких споруд є у великій кількості в інтернеті.
Альтанка своїми руками з дерева: покроково зводимо конструкцію
Зведення альтанки – кропіткий процес, що вимагає уваги, дотримання правил монтажу і точного проходження проекту. Якщо всі роботи будуть виконуватись в визначеній послідовності, процес піде легко і всього за два-три дні конструкція буде готова. Рекомендується заздалегідь перевірити наявність всіх інструментів і придбати всі потрібні матеріали згідно з розрахунками, щоб із-за відсутності якої-небудь деталі справа не застопорилося.

Дерев’яна альтанка у дворі приватного будинку
Основні інструменти і матеріали для будівництва
Обробка деревини вимагає наявності спеціального обладнання і інструментів. Перевірте у себе їх наявність і справність. Для роботи вам знадобляться:
- лопата або бур — для влаштування котловану або ям під фундамент;
- будівельний рівень, рулетка, косинець;
- правило;
- стамеска, молоток, гайкові ключі, покрівельний ніж;
- ножівка, електролобзик або циркулярна пила;
- дриль або шуруповерт;
- болгарка;
- будівельний фен;
- електричний рубанок;
- шнур будівельний — для виконання розмітки;
- наждачний папір, пензлі малярні, шпатель;

Оригінальна кругла альтанка з затишними диванами
Кількість матеріалів, потрібну для будівництва, береться на підставі специфікації:
- пісок, щебінь, цемент — в залежності від типу фундаменту: стовпчастий або стрічковий;
- дошка для опалубки — якщо передбачається стрічкова основа;
- брус з різним перетином — 50х150 мм використовується для нижньої обв’язки, центровий балки каркаса і лаг підлоги; 100х100 мм — для вертикальних стійок, верхньої обв’язки; 50х100 мм — застосовується для кутових, допоміжних і коротких крокв, а також для перил огородження; 50х50 мм — для балясин огорожі;
- дошка для підлоги;
- покрівельна обшивка фанерні панелі товщиною 12 мм;
- руберойд — для ізоляційних робіт;
- гнучка (бітумна) черепиця, бітумний клей;
- кріплення — шурупи, кутові скоби, металеві куточки, саморізи, покрівельні цвяхи;
- грунтовка, шпаклівка по дереву;
- фарба, лак.

Альтанка з колонами і багатим різьбленим орнаментом
Пристрій фундаменту
В якості прикладу буде використовуватися невелика дерев’яна альтанка квадратної форми з чотирисхилим дахом.
Вибравши підходяще місце для альтанки, приступають до підготовки майданчика. Необхідно видалити весь сміття, прибрати наявні там чагарники і коріння дерев. Якщо є горби або западини, їх вирівнюють.
Корисна порада! Якщо є можливість, не встановлюйте альтанку недалеко від проїжджої частини або сусідського паркану, намагайтеся розташувати альтанку в такому місці, щоб з неї відкривався гарний вид на сад, альпійську гірку або водоймище.

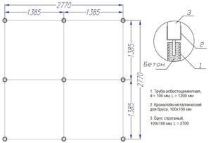
Схема облаштування стовпчастого фундаменту для дерев’яної альтанки розміром 2,77х2,77 м
Далі роблять розмітку під майбутню будову. Для цього вбивають перший клин і від нього розмічають весь периметр споруди, фіксуючи кути клинами. Між ними натягують будівельний шнур. На цьому етапі дуже важливим є витримати правильний кут, так як це згодом вплине на міцність всієї конструкції. Щоб у цьому переконатися, необхідно перевірити діагоналі отриманого квадрата. Якщо вони однакові, то розмітка виконана вірно і дотриманий кут 90 градусів.
В основному для невеликих дерев’яних конструкцій використовують стрічковий або стовпчастий фундамент. Так як спорудження дерев’яної квадратної альтанки досить легке, як її заснування вибирають стовпчастий фундамент. Для цього виконують ями глибиною до 80 см, на їх дно викладають шар піску (5-6 см) і заливають шаром бетону приблизно в 8-10 див.
Коли бетонна суміш трохи затвердіє, в неї опускають стійки. Їх слід обов’язково встановити вертикально. Після того як рівнем буде вироблено вертикальне вирівнювання опор, положення їх фіксують тимчасовими укосинами.

Приклад спорудження фундаменту альтанки з використанням металевого профілю
Можна закріпити опорні бруси використовуючи регульовані анкера. Для цього в ями містяться відповідні за розміром відрізки металевих труб, порожнину труби заливають розчин і після незначного схоплювання розчину встановлюють кріпильні деталі (анкера). Коли бетон остаточно схопиться (не менше 48 годин), можна буде закріпити вертикальні стійки. Після установки всіх опор необхідно упевнитися в правильності їх положення: відстань між сусідніми опорами має бути строго однаковим по всій висоті опор (внизу, і вгорі посередині).
Стаття по темі:

Спорудження підлоги альтанки
Наступним кроком після встановлення опор є нижня обв’язка вертикальних стійок. Для цього використовують брус з перетином 50х150 мм Каркас підлоги виконується за допомогою монтажу лад, які розташовують на відстані не більше 45 см один від одного. Це дозволить конструкції каркаса витримати вагу дерев’яного помосту. Лаги кріпляться до брусів горизонтальної обв’язки за допомогою кріплень-куточків, попередньо просвердливши монтажні отвори для шурупів.

Схема облаштування підлоги закритій альтанки з утеплювачем
Далі приступають до монтажу проміжних стійок. Вони згодом візьмуть на себе вагу дерев’яної конструкції даху та будуть використані для фіксації верхньої горизонтальної обв’язки. Стійки кріпляться цвяхами до лагів. Тут діє те ж правило, що і для кутових опор — всі стійки повинні бути встановлені строго вертикально.
Як тільки каркас підлоги буде зібраний і встановлені проміжні опори, приступають до улаштування настилу з дошки. Для дошка підлоги використовується, придатна для зовнішнього використання, яка добре витримує вплив природних факторів. Тоді вам не доведеться через невеликий проміжок часу виявити, що дошки в деяких місцях підгнили.

Підлогу альтанки виконаний з дерева, обробленого вологостійкими складами
Для кріплення дошки до обрешітки використовують цвяхи або саморізи. Фіксують дошку, використовуючи за два цвяхи або саморізи з кожного кінця.
Корисна порада! Якщо для кріплення дощок використовуються цвяхи, необхідно заздалегідь зробити отвори під них. Це допоможе уникнути розтріскування деревини.
Після укладання дощатої підлоги, приступають до верхнього горизонтального з’єднанню опор альтанки, використовуючи брус 100х100 мм. Обв’язка стійок альтанки з дерева своїми руками (фото-приклади дають наочну інформацію) здійснюється шляхом випилювання з торців бруса замків, які з’єднують між собою і фіксують двома цвяхами.

Альтанка з кам’яною основою і металевими перилами
Монтаж даху
Для квадратної альтанки найбільш привабливою буде дах, що складається з чотирьох скатів. Пристрій даху починається з зведення каркаса. Вирізаються з бруса похилі кроквяні ноги, вони попарно фіксуються цвяхами під кутом. До кожної з основних похилих ніг симетрично кріпляться допоміжні підкоси. Вони фіксуються одним краєм до бруса обв’язки, іншим — до основних крокв.
Корисна порада! Для роботи з влаштування даху запросіть помічника, так як одному впоратися з монтажем неможливо.

Для облаштування даху альтанки можна використовувати аркуші вологостійкої фанери
Далі приступають до покриття покрівлі. Для цього можна використовувати як дошку, так і фанерний лист. Кріплення панелей фанери виробляють по поверхні крокв з кроком 20-25 см, використовуючи саморізи. Поверхня листів фанери покривають покрівельним ізоляційним матеріалом — руберойдом, а потім м’якою (бітумної) черепицею.
Укладання бітумної черепиці
Гнучка черепиця володіє малою вагою, монтувати її досить легко. Фіксують гнучку покрівлю до настилу цвяхами з широким капелюшком. До свесам даху з усіх боків монтується карнизна черепиця. Для зручності монтажу і хорошою податливості матеріалу використовується будівельний фен. Далі починається укладання рядової гнучкої черепиці. При фіксації першого ряду необхідно вибирати таку довжину цвяхів, щоб вони змогли пройти через карнизну і рядову черепицю і дійти до дерев’яної основи даху альтанки.

Гідроізоляції даху альтанки рулонними матеріалами
Перед використанням черепиці, з неї знімають захисну плівку. Листи укладають внахлест. При укладанні кожного ряду матеріалу листи розташовують так, щоб вирізи попереднього ряду покривалися виступами наступного. При фіксації гнучкої черепиці, необхідно стежити, щоб цвяхи доходили до обрешітки даху в місцях подвійного шару матеріалу. Інакше цвяхи згодом будуть витіснятися і спровокують відклеювання черепиці.
Коли матеріал дійде до зламу ската, зайві краю черепиці обрізаються врівень з лінією схилу. У цих місцях матеріал додатково помазують бітумним клеєм.
Далі приступають до укладання конькової черепиці. Для цього лист черепиці розрізають на три частини і кожну отриману пластину укладають клейовою стороною впоперек гребеня внапуск 5см. Фіксують кожну пластину цвяхами в чотирьох місцях. Таким чином обробляють всі злами скатів.

Гнучка черепиця — відмінний варіант для облаштування даху альтанки
Покрівля з бітумної черепиці для дерев’яної альтанки своїми руками (фото це ілюструє) виглядає досить привабливо завдяки різноманітності форм і кольорів. Одним з переваг такого покрівельного покриття є безшумність під дощем і градом.
Корисна порада! Купуючи гнучку черепицю, прослідкуйте, щоб всі упаковки відповідали однієї партії. Матеріал з різних партій може відрізнятися за кольором.
Роботи щодо покриття даху черепицею проводять дуже акуратно, намагаючись не пошкодити матеріал цвяхами.

Відкрита дерев’яна альтанка з бітумної покрівлею
Особливості шестигранною конструкції альтанки
Всі етапи самостійного зведення шестигранною альтанки схожі по монтажу з квадратної конструкцією. Фундамент, підлога і стійки альтанки виконують згідно з наявними кресленнями. Що стосується даху з шести скатів, то пристрій її рекомендують проводити на землі і вже готову конструкцію піднімають і кріплять до каркаса альтанки.
Через відсутність у конструкції центрального опорного елемента, з’єднати воєдино всі крокви дуже складно. Тому рекомендують надати брусу форму шестикутника, кожна сторона якого має відповідати за розміром товщині крокв. Торці кроквяних дощок вирізають під кутом і по черзі цвяхами фіксують до витесаному бруса з шестигранним перетином. Іншим кінцем крокви вставляються в пази, які попередньо вирізають в брусі обв’язки.

Шестигранна закрита альтанка зі зрубу
Потім обшивають каркас покрівлі дошкою або фанерою, і вже готову конструкцію піднімають і монтують до опорних стійок альтанки.
Облаштування огорож, альтанок з дерева своїми руками. Фото готових конструкцій
Зовнішній вигляд альтанки багато в чому залежить від виду огорожі. Воно може бути виконане суцільним або гратчастим. В залежності від ваших уподобань, огорожа може складатися з поручнів і балясин, з двох-трьох горизонтальних дерев’яних елементів, розташованих уздовж кожної з сторін альтанки, а також у вигляді ромбів, встановлених між вертикальними опорами конструкції. Деякі вважають за краще влаштувати огорожу з вагонної дошки або блок-хауса. Все залежить від вашої творчої фантазії і наявності вільного часу.

Альтанка з невисоким дерев’яним огородженням
Висота огороджень традиційно становить 75-85 см, але ця величина може бути змінена за вашим бажанням. Горизонтальні частини огорожі фіксують за допомогою саморізів або куточків. Причому саморізи повинні входити в дерево під кутом. Не рекомендується для кріплення горизонтальних брусів використовувати цвяхи, вбиваемые у торці брусків-балясин через перила. Це може призвести до розтріскування бруса. Для кріплення балясин до поручнів радять використовувати нагелі.
Балясини можуть бути встановлені вертикально, під кутом, у вигляді ромба. Для фіксації похилих балясин в горизонтальних брусках зверху і знизу влаштовують пази під певним кутом. Під відповідним кутом вирізаються і торці балясин, які потім вставляють в пази.

Частково закрита альтанка зі стінками з дерев’яних планок
Крім того, для додання альтанці ажурного виду, влаштовують горизонтальний декоративний бордюр зверху. Висота бордюру складає одну третину від висоти самого огородження. Малюнок бордюру зазвичай повторює конфігурацію нижнього огорожі, але можна зробити їх різними. Головне, щоб вони не суперечили загальному стилю дерев’яної альтанки.
Декоративне оформлення альтанки
Як тільки всі роботи будуть закінчені, приступають до обробки дерев’яних поверхонь. Якщо в деяких дерев’яних елементах є невеликі тріщини, необхідно заповнити шпаклівкою по дереву. Після висихання шпаклівки приступають до шліфування всіх елементів. Для цих цілей використовують шліфувальний папір із середньозернистим покриттям. Далі обробляють всі дерев’яні поверхні лаком в два шари, причому другий шар наноситься після повного висихання попереднього.

Біля басейну змонтована альтанка на невеликому дерев’яному помості
Корисна порада! Покриття лаком здійснюється рівномірними рухами пензлика спочатку вздовж волокон, а потім впоперек. Шар лаку повинен бути розподілений тонко і однорідно по поверхні, без утворення патьоків.
Від того, наскільки якісно буде оброблена деревина, багато в чому залежить термін експлуатації дерев’яної альтанки.

Всередині заскленій альтанки розміщені ковані стільці та стіл
Внутрішньо наповнення альтанки може бути найрізноманітнішим. Це може бути дерев’яний столик і лавки, виготовлені самостійно і стаціонарно зафіксовані в конструкції. Багато воліють встановити в альтанці зручну переносну меблями у вигляді шезлонгів або крісел з ротанга. До альтанки можна підвести електрику і встановити гарні ліхтарі по периметру. Деякі підводять до будови альтанки воду. Уздовж огорожі альтанки часто висаджують красиві в’юнкі рослини.
Символ спокою і умиротворення у вашому саду — альтанка своїми руками з дерева. Покроково виконуючи всі рекомендації, зібрати конструкцію самостійно зовсім нескладно. А вироби, виконані своїми руками, завжди відрізняються особливим затишком і теплотою.
Артем Іванов 2018-07-24T16:37:40+00:00 Споруди, Ділянка|Своїми руками| ОЦІНИТЕ
МАТЕРІАЛ
Завантаження… ПОДІЛІТЬСЯ
У СОЦСЕТЯХFacebookTwitterOkGoogle+PinterestVk
