Як розрахувати сходи на другий поверх: основні параметри розрахунку. Особливості складних конструкцій
Грамотний і точний розрахунок сходів — гарантія зручної та безпечної її експлуатації. Для того, хто зважився на виготовлення і складання конструкції самостійно, необхідно знати, як розрахувати сходи на другий поверх правильно. В залежності від вибору типу сходів, розрахунок може бути більш або менш складним. Отримати функціональну конструкцію можливо лише за умови дотримання всіх технічних нормативів й урахування всіх основних параметрів сходів: довжини, ширини, кута нахилу, глибини і висоти ступенів.

Точний і грамотний розрахунок гарантує зручність використання і надійність сходової конструкції
Як розрахувати сходи на другий поверх: основні параметри розрахунку
Щоб після встановлення сходів на другий поверх вам не довелося виявити, що вона занадто крута або вузька, по ній дуже важко підніматися або незручно спускатися, необхідно заздалегідь поцікавитися тим, як розраховують сходи на другий поверх. Для цього необхідно ознайомитися з типами сходових конструкцій і висунутих до них вимог.
Види сходових конструкцій
Той чи інший вид сходи на другий поверх вибирають виходячи з особливостей конструкції будівлі, призначення сходів, загального стилю інтер’єру і наявності вільного простору для її установки.

Конструкцію сходів вибирають виходячи з її призначення і наявності вільного простору в приміщенні
Основні види сходових конструкцій:
- прямі маршові сходи з одним проходом;
- одномаршові з поворотом на 90 градусів з радіусними (поворотними) ступенями;
- одномаршові з поворотом на 180 градусів з радіусними (поворотними) ступенями;
- прямі двохмаршові, сполучені майданчиком;
- Г-образні двохмаршові, сполучені майданчиком;
- П-образні двохмаршові, сполучені майданчиком;
- трьохмаршові, з’єднані двома майданчиками;
- гвинтові (спіральні).

Типи сходових конструкцій
Драбини, що встановлюються всередині будинку або квартири, бувають простими — до них відносять прямі конструкції, і сходи з майданчиками. Сходи в будинку, які містять кілька маршів, бувають правими (поворот за годинниковою стрілкою) і лівими (поворот проти годинникової стрілки). Більш складні конструкції — поворотні і гвинтові сходи.
Основними вимогами, що пред’являються до експлуатації сходів, є:
- зручність і безпеку при русі по сходах;
- драбина повинна розташовуватися якомога ближче до входу в житлове будівництво;
- драбина повинна бути розгорнута сходами до входу в кімнату, в якій вона встановлена. Якщо такої можливості для всієї конструкції немає, то необхідно розгорнути до входу хоча б кілька перших ступенів;

Правильний підбір параметрів ступенів забезпечить безпеку і зручність пересування по сходах
- драбина повинна займати якомога менше простору кімнати, але з урахуванням безпечності конструкції;
- місце встановлення сходів забезпечується додатковим освітленням.
Корисна порада! Якщо планована сходи буде перебувати в гостьовій кімнаті, прохід від входу до сходів необхідно змістити до стіни кімнати, він не повинен перетинати кімнату по діагоналі.
Основні елементи сходових конструкцій
Для того, щоб розрахувати сходову конструкцію, необхідно орієнтуватися в складових частинах, з яких вона складається.

Маршова Г-подібні сходи з забіжними ступенями
До основним частинам сходових конструкцій відносяться наступні елементи:
- сходовий марш — конструктивний елемент, що з’єднує два майданчики і складається із ступенів;
- косоур — несуча балка з трикутними вирізами, на яку кріпляться сходинки зверху. Торці сходинок при такому кріпленні проглядаються при вигляді збоку;
- тятива — несуча балка, в яку з внутрішньої сторони вставляються щаблі в спеціальні гнізда чи пази;
- проступь — горизонтальна поверхня ступені;
- подступенок — зовнішня вертикальна сторона ступені, ширина якої дорівнює висоті ступенів;
Корисна порада! Щоб конструкція сходів пропускала більше світла і мала досить легкий вид, рекомендується не використовувати в ній подступенки.

Маршова П-подібні сходи на тятивах
- забіжні щаблі — сходи, один край яких менше іншого. Застосовуються для повороту сходів;
- площадка — горизонтальна поверхня, що з’єднує між собою сходові марші;
- балясини — вертикальні стовпи, що підтримують перила і виступаючі огорожею для сходового маршу;
- опорні тумби — балясини, встановлені на початку і в кінці сходового маршу, є кріпленням для перил та поручнів;
- перила, поручні — огорожа, розташована зверху балясин, за яку тримаються при спуску або підйомі по сходах.

Елементи сходової конструкції: 1 — марш; 2 — платформа; 3 — перильне огородження; 4 — несуча балка (косоур або тятива); 5 — лінія сходів; 6 — відправна щабель; 7 — вихідна ступінь; 8 — проступ; 9 — подступенок; 10 — опорні тумби; 11 — балясини
Ознайомившись з основними елементами сходових конструкцій, можна сміливо приступати до розрахунку сходів, не боячись заплутатися в поняттях і термінах її складових частин.
Параметри розрахунку сходових систем
Для тих, хто вирішив самостійно розрахувати сходи на другий поверх, необхідно зробити проект. За проектом можна прорахувати розміри конструкції: довжину і ширину сходів, кількість ступенів, кут нахилу. Розраховувати сходи необхідно послідовно, щоб не помилитися у необхідних величинах, так як навіть незначні прорахунки можуть призвести до небажаних наслідків у процесі експлуатації сходової системи.

Проект одномаршові сходи на косоурах
Розрахунок сходової конструкції включає в себе декілька пунктів:
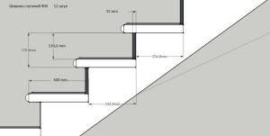
- кут нахилу (крутизна) сходи. Кут нахилу сходів, при якому пересування по ній буде досить комфортним, становить від 40 до 45 градусів. Але для розміщення такої конструкції буде потрібно багато місця, що не завжди можливо. Тому такі конструкції використовують вкрай рідко. Зважаючи на це, влаштовують сходові конструкції з більш крутим нахилом до 36 градусів. Пересування по таких сходах вгору буде досить зручним, чого не скажеш про узвозі (можливо лише спиною вперед). Також слід врахувати, що відстань від поверхні ступні до перекриття або виступаючих елементів було понад 2 м. Це правило враховується при розрахунку поворотних сходів з майданчиками і радіусними (забіжними) ступенями;

Діаграма зручності нахилу сходів і розміру ступенів
- розміри і кількість східців. Кількість сходинок в одному марші повинно складати від 3 до 18 штук. Для зручності пересування по сходах, рекомендується в одному марші розташовувати непарна кількість східців. При розрахунку сходів керуються формулою, яка показує, що дві висоти щабля в сумі з шириною проступи (поверхні ступені) повинні дорівнювати середньої величини кроку людини, тобто близько 60 см. При нескладних підрахунках можна з’ясувати, що рекомендована ширина щаблі становить 27-28 см, а висота сходинки, звана подступенком, в ідеалі становитиме 17-18 див. В розрахунках дерев’яних сходів ще враховується ширина свеса (носика). На нього відпускається близько 4 див. Хочеться відзначити ще один важливий момент: сходи по всій довжині сходах повинні мати однакову висоту і ширину, щоб пересування по ній було зручним і безпечним;

Основні параметри, необхідні для розрахунку сходів
- ширина сходового прольоту (маршу). Ширина сходів на другий поверх залежить від інтенсивності її використання. Нормативами передбачено ширина сходового маршу мінімум 100 см, максимум 140 див. При такій ширині по сходах можливе переміщення однієї-двох осіб, а також підняття габаритних предметів меблів. Однак, для широких сходів потрібно, щоб і приміщення не відрізнялося недоліком площі. Найчастіше на практиці зустрічаються сходи з шириною прольоту 70-90 див. При такій ширині цілком можливо вільне пересування однієї людини і підйом по сходах невеликих предметів і речей. Ширина маршів двухмаршевую і більш конструкцій обов’язково повинна бути однаковою по всій довжині.
Корисна порада! Якщо сходи має два і більше маршових прогонів, розташованих у зустрічному напрямку, між ними повинен бути зазор не менше 50 мм

Рекомендована ширина сходового маршу для зручності пересування
Розрахунок сходів на другий поверх з поворотом на 90 і 180 градусів
Враховуючи, що прямі одномаршові конструкції для установки вимагають достатньої кількості площі, в котеджах і дачах використовують поворотні конструкції з майданчиками або радіусними ступенями. При розрахунку сходи з майданчиком на другий поверх з поворотом на 180 або 90 градусів враховується пристрій прямокутної або квадратної планки, від якої виконується поворот на відповідну кількість градусів.
Корисна порада! При розрахунку сходів з майданчиками необхідно керуватися тим, що довжина майданчики між маршами повинна бути більше 140 см (два кроки), а ширина повинна відповідати ширині сходового прольоту.
При розрахунку сходи на другий поверх з поворотом на 90 з забіжними ступенями враховується той факт, що на поворот припадає три і більше забіжних ступенів.

Поворотна на 180 градусів сходи з забіжними ступенями — вид зверху
Основні вимоги до повортным конструкцій:
- ширина поворотної щаблі з широкого краю повинна бути не менше 40 см, а в середині — не менше 20 см;
- радіус повороту сходів становить 30 см;
- усі щаблі маршу, в тому числі і поворотні, повинні розмірено повторювати лінію маршу. Це забезпечить комфортне пересування по сходах.
У розрахунках сходів з поворотними сходами на 180 і 90 градусів варто враховувати, що ширина проступи (ступені) в самій вузькій частині повинна становити не менше 14 див. Тоді, ширина забіжної щаблі в зоні середньої лінії буде оптимальною для переміщення людини, так як саме по цій лінії і буде здійснюватися рух по поворотної частини сходів.

Оптимальні параметри ступенів
Особливості розрахунку сходи на другий поверх своїми руками: гвинтова конструкція
Конструкція гвинтових (спіральних) сходи являє собою розташовані по колу ступені, одна сторона яких ширше іншого. Основною перевагою гвинтових систем є значно менша площа, займана сходами, в порівнянні з маршовими аналогами.
Стаття по темі:

Для установки спіральної конструкції цілком достатньо площі кола, в центрі якої знаходиться опорна несуча стійка.

Порівняно з маршовими конструкціями, гвинтові сходи займає менше місця
При розрахунку гвинтових сходів слід враховувати, що радіус кола, по якому вона розташована, буде довжиною ступені. Якщо довжина щаблі гвинтових сходів складе 100 см, то така конструкція займе в 1,5 рази меншу площу, ніж пряма маршова конструкція з такою ж довжиною ступенів.
У гвинтових конструкціях, які повністю складаються з поворотних сходів, ширина сходинки до вузької та широкої частини становить відповідно 10 і 25 см. Висота ступенів розраховується ідентично маршовими сходових систем.

Графічний розрахунок гвинтових сходів з поворотом 270 градусів
При розрахунку гвинтових сходів необхідно врахувати наступні моменти:
- визначити місце установки центральної опорної стійки;
- ширина прольоту і довжина ступені розраховується як відстань від центральної опори до лінії її межі;
- форма ступені являє собою трапецію, ширина вузького краю якій не повинна бути менше 20 см, а широкого — менше 40 см;
- для зручного пересування висоту ступенів гвинтових сходів роблять меншою, ніж рекомендовано для прямих сходових маршів;
- важливим для комфортного пересування є відстань між витками сходів: воно повинно складати не менше подвійної величини діаметра.

Приклад 3-D проекту гвинтових сходів
Розрахунок сходів «гусячий крок»
Досить компактні сходи «гусячий крок» — називається так завдяки формі ступенів, симетрично встановлених щодо лінії ходу і асоціюються з гусячим кроком. Вони в основному встановлюються у разі, коли потрібно істотно заощадити місце і мають кут нахилу 45-65 градусів. Для комфортного пересування такі сходи мають широку поверхню проступи тільки на половині довжини ступені. Інша частина ступені зменшена до мінімуму.
При розрахунку сходів «гусячий крок», коли визначений кут нахилу конструкції і площа займаного нею місця, враховують такі параметри:
- ширина проступи у місці, куди спирається стопа, повинна бути приблизно 30 див. Іноді використовують і меншу ширину в цілях додання сходах компактних розмірів;

Компактна сходи зі сходами «гусячий крок»
- ширина вузької частини ступені може визначатися виходячи з конструктивного рішення і матеріалу, що використовується для її виготовлення;
- просвіт між ступенями в такий сходах не закривається;
- рекомендована висота щаблів 15 см, хоча часто її збільшують для економії простору, займаного сходами. Однак не варто робити висоту ступенів занадто високою — це негативно позначиться на безпеці пересування по сходах.
Слід зазначити, що сходи «гусячий крок» можуть бути маршовими з використанням косоурів або тятив, а також гвинтовими.

Схема сходи зі сходами «гусячий крок»
Розрахункові параметри перил, поручнів і огорож для сходів
Визначившись з основними параметрами сходи на другий поверх, приступають до розрахунку поручнів і огорож сходової конструкції. На цьому етапі розрахунку слід визначити:
- висоту огорожі (балясин);
- довжину і ширину поручнів, перил;
- висоту опорних тумб (крайніх балясин).
Рекомендована ширина перил та поручнів 10 див. Завдяки такій величині будь-якій людині буде комфортно на них спиратися. Оптимальна висота поручнів сходів становить 90 див. В такому випадку балясини будуть мати висоту близько 80 див. Але тут необхідно враховувати той факт, що балясини вставляються в спеціальний паз, тому його глибина береться в розрахунок при визначенні висоти стійок.

Рекомендовані параметри облаштування перил та поручнів
При розрахунку висоти опорної тумби враховується спосіб її монтажу. Якщо опорна балясина фіксується на щаблі, то її висота буде збігатися з висотою всіх балясин. Якщо ж вона монтується в підлозі, слід врахувати відстань від підлоги до сходинки.
Довжина перил та поручнів відповідає довжині всього сходового прольоту. У деяких моделях сходів зустрічаються перила, трохи виступаючі за межі маршу. Пропонуємо ознайомитися з різними фото перил для сходів.

Надійні поручні — запорука безпечного пересування по сходовому маршу
Розрахунок сходів онлайн калькулятором
Ще одним способом розрахунку сходових конструкцій на другий поверх є розрахунок сходів онлайн калькулятором. У спеціально відведені поля вносяться необхідні дані параметрів сходової конструкції. Вдавшись до допомоги калькулятора, можна зробити точні і коректні розрахунки сходи будь-якої конструкції: маршової, поворотною, гвинтовий, комбінованої.
Як розрахувати сходи на другий поверх калькулятором? Для цього потрібно задати в ньому онлайн основні параметри:
- тип сходової конструкції;
- висота і довжина отвору;
- кількість і глибина ступенів;
- місце встановлення сходів — біля стіни або посередині кімнати. Якщо конструкція планується уздовж стіни, поручні і поручні сходів можуть бути влаштовані тільки з одного боку;

Види сходових майданчиків в залежності від способу врізання в них фризових ступенів
- кількість маршів у проектованої конструкції — визначається в залежності від площі приміщення;
- висота стелі та площа, займана майбутньої сходами — дані необхідні для розрахунку прийнятного кута нахилу конструкції.
Якщо всі вихідні дані введені у відповідні поля калькулятора правильно, можна бути впевненим у точності розрахунку і отримання на виході креслення в кольоровому або чорно-білому виконанні.
Корисна порада! Для того, щоб за допомогою калькулятора отримати коректний розрахунок, потрібно всі виміри основних введених параметрів робити однією рулеткою.

Простір під сходами можна облаштувати з користю
Варто зазначити, що в основу програми онлайн-калькулятора закладені технічні норми і вимоги, які пред’являються до ГОСТ сходових конструкцій.
Зробивши грамотний розрахунок сходів на другий поверх, можна самостійно виготовити і встановити конструкцію, будучи впевненим у тому, що вона буде відповідати всім необхідним експлуатаційним нормам.
Артем Іванов 2016-10-14T00:33:30+00:00 Сходи| ОЦІНИТЕ
МАТЕРІАЛ
Завантаження… ПОДІЛІТЬСЯ
У СОЦСЕТЯХFacebookTwitterOkGoogle+PinterestVk
