Газові котли для опалення приватного будинку: як вибрати і встановити
Для автономного опалення заміських будинків можна використовувати різні способи. Найчастіше вибір падає на котли, які досить прості в експлуатації, економні і довговічні. Газовий котел для опалення і гарячого водопостачання приватного будинку – це оптимальний варіант по співвідношенню ціни і якості. Спробуємо розібратися, які існують газові котли для опалення приватного будинку: як вибрати підходящу модель для свого житла.

Оптимальним варіантом для опалення приватного будинку є газовий котел
Варіанти котлів для різних будинків
Газові котли – не єдино можливий варіант. Вид палива в чому залежить від типу будинку та особливостей навколишньої місцевості:
- якщо біля будинку розташовані термальні води, то оптимальним рішенням буде використовувати енергію води для опалення;
- для садового будинку відмінно підійдуть дрова;
- якщо біля будинку проходить газова магістраль, то тоді варто купувати газовий котел.

Підлоговий газовий котел гармонійно вписується в інтер’єр приміщення
Потужність майбутнього котла вираховується з таких параметрів, як потреба будинку в гарячій воді, а також його тепловтрати. Чим вони вище, тим, відповідно, могутніше вам потрібен котел.
В залежності від типу палива розрізняють опалювальні котли, що працюють:
- на сонячній енергії;
- на рідкому паливі, наприклад, солярці, мазуті, нафті;
- на газоподібному паливі;
- на твердому паливі – торфі, вугіллі, дровах;
- працюють від електроенергії;
- на геотермальної енергії, тобто енергії природних джерел.

Приклад пристрою газового котла
З усіх перерахованих вище видів газові котли – це самий економний варіант для приватного будинку, тому ми будемо розглядати саме їх.
Газові котли для опалення приватного будинку: як вибрати, на що звернути увагу
Щоб точно розрахувати передбачувану потужність котла для опалення приватного будинку, надійніше скористатися послугами фахівця-теплотехніка. Однак цей параметр можна приблизно прикинути і самостійно. Варто пам’ятати, що приміщення, обсягом у 30 кубічних метрів йде близько 1 кВт потужності котла. Якщо котел буде використовуватися і для підігріву води, то заданий параметр варто збільшити в 2 рази.

Сучасні газові котли відрізняють безпека і висока екологічність
Корисна порада! Ця формула підходить тільки для середньостатистичного приміщення. Якщо мова йде про опалення заскленої веранди, прибудови або літньої кухні, то потрібно більш потужний котел.
Ще один важливий момент при виборі – розташування котла всередині будинку. Існує цілий ряд вимог, як вибрати газовий котел для опалення приватного будинку по цьому параметру:
- у приміщенні з котлом обов’язково повинна бути хороша вентиляція. При неможливості забезпечення природного припливу повітря вам доведеться монтувати систему штучної вентиляції;

Настінний газовий котел в інтер’єрі кухні
- газовий котел для обігріву приватного будинку потрібно встановлювати на першому або цокольному поверсі будівлі. При цьому з приміщення обов’язково повинен бути ще один вихід;
- для можливості нормального обслуговування приладу, в приміщенні повинно бути хороше штучне або природне освітлення.
Критерії вибору типу котла
Для того щоб остаточно визначитися, який котел вибрати, варто врахувати наступні моменти:
- витрати на додаткову оснастку – ціна підлогового двоконтурного газового котла для опалення приватного будинку буде значно вище, якщо купувати ще і насос, пристрої безпеки, розширювальний бак і інше обладнання. Також додатково буде потрібно купити коаксіальний димар для газового котла;

Для нормального обслуговування газового котла необхідно, щоб у приміщенні було хороше штучне або природне освітлення
- для того щоб змонтувати котел підлогового типу, потрібно наявність в приміщенні гарної природної тяги і димоходу великого діаметру;
- будівельні норми площі та допуски повинні відповідати вимогам обладнання;
- якщо в комплекті з котлом є обладнання, яке дозволить, при необхідності, перевести його на роботу на зрідженому газі, то віддавати перевагу варто йому.

Газовий котел необхідно встановити на першому або цокольному поверсі будинку
Корисна порада! Всі сучасні котли працюють від електроенергії, тому завжди варто передбачати джерело резервного живлення, якщо у вашому будинку спостерігаються скачки напруги. Для цього добре підійдуть джерела безперебійного живлення для газових котлів.
Таким чином, вибір газового котла для опалення приватного будинку залежить від об’єму приміщення, наявності димоходу і інших параметрів.
Особливості підлогових і настінних систем
Розрізняють два типи газових котлів для приватного будинку: підлогові і настінні. Кожен з них володіє своїми особливостями.

Підлогова модель котла, працюючого на газоподібному паливі
Настінні газові котли
Настінний газовий котел – це компактний і зручний тепловий вузол, який поєднує у своїй конструкції теплообмінник, газовий пальник, насос, за допомогою якого можна збільшити тиск в системі опалення, розширювальний бак, вимірювальні прилади для контролю температури і вбудовану систему безпеки. З-за цього ціна настінного двоконтурного газового котла для опалення приватного будинку буде вище, ніж у підлогової системи, але і переваг він дасть більше.

Крім обігріву будинку, важливою функцією газового котла є нагрів води
Тяга в настінному газовому котлі може бути як примусова, так і природна. Примусова тяга хороша для тих типів будівель, у яких немає свого димоходу – тоді в справу вступає вбудований вентилятор, який видаляє продукти згоряння через окремий коаксіальний димохід котла, який монтується в стіну. Якщо ж у будинку є димар, то краще вибирати модель з природною тягою, вона обійдеться дешевше.

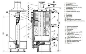
Пристрій настінного газового котла: 1 — вентилятор димовидалення; 2 — NTC датчик температури ГВП; 3 — пальник з нержавіючої сталі; 4 — іонізаційний електрод контролю полум’я; 5 — електроди розпалу; 6 — магнітне протинакипної пристрій; 7 — датчик витрати води ГВП (турбінка); 8 — блокування холодного повітря/регулятор надлишкової тяги (виконання F); 9 — контроль відведення продуктів згоряння (реле тиску); 10 — запобіжний термостат; 11 — NTC датчик температури опалення; 12 — закритий розширювальний бак; 13 — датчик тиску в системі опалення; 14 — 3-х швидкісний циркуляційний насос; 15 — автоматичний байпас; 16 — кран для підживлення та заповнення; 17 — запобіжний скидний клапан 3 бар; 18 — контроль відведення продуктів згоряння (термодатчик)
Крім опалювальної, друга важлива функція газового котла – нагрівання води. Для цього використовуються одноконтурні або двоконтурні котли. Одноконтурні, при цьому, оснащуються окремою конструкцією, тобто бойлером. Незалежно від кількості контурів, котел оснащується автоматикою, яка дає можливість регулювати режим роботи. У теплу пору року котел не включається на опалення, і таким чином економить ваші кошти.

Настінний варіант газового котла
Як вибрати настінний газовий котел для опалення приватного будинку? Приділіть увагу його потужності, кількості контурів, габаритами, енергоспоживанням та іншим параметрам.
Серед переваг газових котлів з настінним монтажем можна виділити наступні:
- відносно невелика вага – близько 50 кг;
- компактні габарити, не займає багато місця в приміщенні;
- настінний газовий котел у разі необхідності можна перевести на роботу на зрідженому газі.

Відмітна особливість настінних газових котлів – компактні розміри
Корисна порада! Якщо ви хочете, щоб котел не займав багато простору, то вибирайте настінний варіант. Однак враховуйте, що підлоговий варіант набагато могутніше.
Підлогові газові котли
Підлогові котли хороші тим, що можуть ефективно опалювати великі приміщення – понад 200 квадратних метрів. Порівняно з настінними котлами, ККД у них менше, проте вони добре прогрівають навіть великі будинки і забезпечують в них комфортний мікроклімат.
Стаття по темі:

Ще одна перевага підлогової опалювальної системи – це довговічність. Хороший чавунний або сталевий котел може прослужити кілька десятків років. Властивості багато в чому залежать від матеріалу теплообмінника.

Підлоговий тип газового котла, що забезпечує опалення приватного будинку
Одним з варіантів підлогової системи є сталевий газовий котел. Строк його користування прямо пропорційний якості сталі, її товщині. Гідність сталевого котла – відносно невелика вага. Недолік – висока сприйнятливість до корозії. Сталевий котел може прослужити 15-20 років, але навряд чи довше.
Другий вид підлогового опалювальної системи – чавунний котел. Це самий надійний і довговічний варіант. Чавун не схильний до корозії, стійко переносить різного роду механічні дії, вкрай рідко прогорає.

Чавунний теплообмінник підлогового газового котла
Щоб чавунний газовий котел прослужив якомога довше, слід виконувати ряд простих правил при його експлуатації. Наприклад, не варто піддавати механічним впливам досить крихкий чавунний теплообмінник, потрібно стежити за витоками з системи, а також рекомендується використовувати очищену воду. В іншому випадку на чавунній поверхні може утворитися накип, що призведе до виникнення мікротріщин.

Одна з переваг підлогової опалювальної системи – тривалий термін експлуатації
Ціна підлогового газового котла для опалення приватного будинку нижче, ніж настінного, з-за простоти конструкції. Проте багато в чому ціна котла залежить від виробника і моделі. У деяких випадках хороша підлогова система може коштувати дорожче, ніж середнього рівня настінна.
Заміна старого обладнання та встановлення нового котла
Трапляється, що опалювальна техніка і, зокрема, котли виходять з ладу. В разі поломки завжди є радикальне рішення – повністю замінити опалювальне обладнання. Часто приймається таке рішення, якщо в будинку до цього стояв старий котел радянської конструкції. Його можна замінити на компактний настінний газовий котел, який відмінно обігріє будинок площею до 200 м2.

Заміну газового обладнання повинен проводити висококваліфікований спеціаліст
Повна заміна опалювального обладнання – це рішення відразу комплексу проблем: старі труби, засмічення в системі, погана тепловіддача. У разі заміни тільки котла бруд і накип в старих трубах можуть швидко привести до поломки і нового обладнання.
Норми і вимоги для установки котла
Для того щоб встановити в будинку газовий котел, потрібно отримати дозвіл. Це можливо тільки після виконання ряду умов:
- у приміщенні обов’язково повинна бути хороша вентиляція, а також джерело природного освітлення для обслуговування котла;
- висота стель в котельні повинна бути не менше, ніж два з половиною метри, а площа – 4 квадратних метри, дверний отвір – 80 сантиметрів у ширину;

У приміщенні цокольного поверху приватного будинку обладнана міні-котельня
- у системі електроживлення повинна бути струмова і тепловий захист. Як вибрати стабілізатор напруги для газових котлів – окремий момент, якому також варто приділити достатню увагу;
- ширина димаря повинна відповідати потужності котла. Припустимо, якщо потужність знаходиться в межах 30 кВт, діаметр димового отвору повинен бути не менше 13 мм;
- котел обов’язково повинен бути оснащений датчиками температури і тиску;
- не можна монтувати газове обладнання в підвальних приміщеннях;

Панель управління настінного газового котла
- заборонено прокладати газопровід в пожежонебезпечної зоні;
- незалежно від типу газопроводу (відкритий чи закритий) труби повинні бути металевими.
- у приміщенні з котлом обов’язково повинен бути аналізатор рівня газу і електричний клапан, за допомогою якого можна перекрити подачу газу.
Корисна порада! Для монтажу газового котла та оформлення всієї необхідної документації, потрібна наявність профільних навичок і спеціальних інструментів. Якщо у вас немає ні того, ні іншого, то краще звернутися в специалирзированную організацію.

Монтаж підлогового газового котла, як правило, складніше і дорожче, ніж настінного моделі
Заміна старого обладнання
Якщо ви все ж вирішили поміняти старе опалювальне обладнання на нове своїми руками, то робити це потрібно в такій послідовності:
- промивається стара система. Засмітилися труби можуть істотно зменшити час служби навіть самого якісного нового котла, тому від забруднень і засмічень найкраще позбутися за допомогою спеціального компресора. Якщо труби прочистити неможливо, то краще їх просто замінити новими;

Якщо при заміні опалювального обладнання немає можливості прочистити старі труби, варто замінити їх новими
- демонтується старе обладнання;
- встановлюється новий котел. При цьому слід враховувати всі рекомендації, зазначені в інструкції з експлуатації котла;
- підключити котел до системи димовидалення. Якщо свого димоходу в будинку немає, то варто потурбуватися покупкою коаксіального димоходу для газового котла. В інструкції до котла зазвичай вказуються вимоги до параметрів димоходу. Це дуже важливий момент, так як при недостатній його ширині або висоті продукти згоряння потраплятимуть у приміщення;

Приклад обв’язки двоконтурного газового котла
- котел підключається до газопроводу. Це можна робити тільки організаціям з відповідним дозволом;
- котел врізається в опалювальну систему і систему ПВС;
- виконуються пуско-налагоджувальні роботи. Це дуже важливий момент, від якого залежить ефективна робота котла та всієї системи.

Монтаж настінного газового котла своїми руками
Монтаж газового котла
Для встановлення нового газового котла також знадобиться виконати ряд дій:
- перевірити, чи всі комплектуючі присутні – комплект повинен включати монтажне лекало, планку для підключення газу та води, необхідні трубопроводи і сам котел;
- вибрати рівень для кріплення навісний планки, прикріпити її;
- встановити прокладки для трубопроводів води і газу, видалити захисні заглушки;

Схема підключення одноконтурного котла
- встановити сам котел, підключити до нього водяний контур і систему газопостачання;
- під’єднати електроживлення, підключити котел до димоходу.
Також слід врахувати момент з перепадами напруги, як було сказано вище. Які стабілізатори напруги краще для газового котла – залежить від потужності і моделі обладнання.

Довіряйте обслуговування газового котла тільки фахівцям
ТОП-10 газових котлів: огляд кращих моделей і виробників
Сперечатися про переваги тієї чи іншої моделі газового котла можна нескінченно. Фахівці в області систем опалення рекомендують наступні 10 моделей, які непогано зарекомендували себе на міжнародному ринку.

Вибираючи газовий котел, варто віддати перевагу моделям зарекомендували себе марок
BAXI SLIM 2300Fi
Італійський газовий котел з бойлером вбудованого типу і закритою камерою згоряння. Добре підходить для використання з вітчизняними системами газопостачання. Абсолютно безпечний у використанні, так як має великий набір автоматики для захисту і управління.

Газовий котел Baxi Slim 2300Fi з вбудованим бойлером
Також у ньому є можливість дистанційного управління і функція автоматичного регулювання та підтримки температури в контурі опалення. Стильно виглядає, його можна переобладнати для роботи на зрідженому газі, пальник виконана з нержавіючої сталі. При необхідності запускається система самодіагностики. Єдиний недолік цього котла – висока ціна.
PROTHERM ВЕДМІДЬ 40 TLO
Компактний газовий котел підлогового типу. Характеризується зручною панеллю управління, за допомогою якої легко можна відслідковувати стан системи. Для підігріву води в системі водопостачання цьому котла необхідний зовнішній бойлер. Крім того, в даному котлі присутній автоматична система контролю над роботою на висоті, є спеціальний контур для страховки від перегріву. Є зимовий і літній режими роботи і можливість функціонувати за допомогою зрідженого газу.

Підлоговий газовий котел PROTHERM ВЕДМІДЬ 40 TLO в інтер’єрі
Слабке місце цього котла – термопара, яку через кілька років активної експлуатації доведеться міняти. Варто котел не дешево, проте це компенсується його перевагами. Середня ціна – 378 тис. рублів.
КОНОРД КСц-ГВ-12П
Котел вітчизняної зборки за доступною ціною. Характеризується стабільністю роботи, надійністю і довговічністю. Корпус виконаний за особливою безшовної технології, що позбавляє від часто зустрічається проблеми з іржею по швах. Рівень полум’я пальника регулюється автоматично, таким чином збільшується ефективність роботи агрегату. Котел може прослужити до 15 років, якщо дбайливо його експлуатувати, а це солідний показник навіть для зарубіжних моделей.

Конструкція підлогового котла КОНОРД КСц-ГВ-12П
Ще одна перевага – невеликий рівень шуму. Котел простий в монтажі, ефективний навіть при низькому тиску газу. Недолік моделі – відносно невелика площа обігріву, тому купувати його варто для маленьких будинків. Ціна моделі – 85 тис. рублів.
АОГВ-23,2-3 КОМФОРТ
Котел відрізняється високою екологічністю. Це означає, що газ на виході чистіше, ніж у багатьох інших моделей. З датчиків присутній тільки стрілочний термометр. Є функція автоматичного п’єзопідпалом.
Котел, хоч і досить простий, але невибагливий в експлуатації, економічний, простий в управлінні. Справляється зі своїми завданнями навіть тоді, коли тиск газу в системі падає. До мінусів можна віднести візуальну простоту на тлі більш дорогих зарубіжних моделей. Невисока ціна котла опалення для приватного будинку – його основне достоїнство.

Схема пристрою газового котла АОГВ-23,2-3 КОМФОРТ
АОГВ-11,6-3 ЕКОНОМ
Один з найменших котлів підлогового типу на вітчизняному ринку. Працює тільки на опалення, проте займає напрочуд трохи простору, мало важить. Є можливість перебудувати його для використання зрідженого газу замість природного. Дуже простий в управлінні.
Стабільність роботи не залежить від напруги в електромережі, так що можна використовувати навіть там, де часто трапляються скачки напруги. Тиск газу в мережі нижче стандартного не впливає на якість роботи.

Пристрій підлогового газового котла АОГВ-11,6-3 Економ
Ще одна відмітна особливість – тривалий термін експлуатації зважаючи на простоту конструкції. Цей котел не може похвалитися великою площею обігріву і досконалою системою захисту, проте його потужності цілком вистачає для опалення невеликого приватного будинку.
BAXI LUNA 3 COMFORT 240 Fi
Висока ціна двоконтурного газового котла для обігріву приватного будинку з лишком компенсується його достоїнствами. Котел відмінно підходить для вітчизняних газових систем, демонструє стабільну роботу при тиску газу нижче необхідного. Панель управління – цифрова, та встановлюється не тільки на котлі, але і в будь-якому зручному для вас місці.

Цифрову панель управління даної моделі можна встановити в будь-яке зручне для вас місце
Як і багато інших сучасні котли, він перенастроюється під функціонування на зрідженому газі, має вбудований фільтр для очищення води. До мінусів можна віднести високу чутливість до перепадів напруги, тому разом з котлом відразу слід купувати і стабілізатор.
BOSCH GAZ 4000 W ZWA 24-2 A
Ця модель добре підходить для опалення будинків з великою площею до 300 квадратних метрів. Особливий інтерес представляє можливість підключення до панелі управління кімнатного регулятора температури. Є індикатори несправності і режимів роботи, захист від перегріву, можливого заклинювання насоса і замерзання.
Коаксіальні димоходи для газового котла цього типу купуються окремо. Слабким місцем цього котла є насос, а його ремонт коштує досить дорого. Ціна моделі – 193 тис. рублів.

Конструкція газового котла BOSCH GAZ 4000 W ZWA 24-2 A
BUDERUS LOGAMAX U042-24К
Абсолютно безшумний настінний німецький котел. Нагріває воду, часто використовується не тільки в житлових будинках, але і на промислових об’єктах і в ЖКГ. Потужність роботи можна плавно регулювати. Є захист від перегріву, замерзання, датчик тяги і тиску. Ефективний в декількох режимах роботи: літній, зимовий, теплий пол. Єдиний мінус: температура гарячої води може коливатися. Варто котел близько 220 тис. рублів.

Настінний газовий котел BUDERUS LOGAMAX U042-24К
PROTHERM ГЕПАРД 23 MOV
З-за високої потужності даної моделі, димар для газового котла в приватному будинку повинен бути досить великим. Ця модель характеризується високим ККД, демократичною ціною і простотою в управлінні. Є РК-дисплей для відображення всіх параметрів роботи. Присутні зимовий і літній режими роботи, функція автодіагностики. Мінус – працює тільки з чистою водою, тому на вході доведеться встановлювати фільтр для води. Ціна – 187 тис. рублів.

Внутрішнє пристрій котла PROTHERM ГЕПАРД 23 MOV
VAILLANT TurboTEC PRO VUW INT 242-3 H
Хороший двуконтурний варіант котла з можливістю регулювання температури води. Працює при зниженому тиску, стильно виглядає і простий в управлінні. Є режим самодіагностики. Панель управління – механічне. Є вбудована багатоступенева система захисту. Мінуси – відчутно шумить, працює тільки з чистою водою.

Газові котли компанії Vaillant користуються популярністю серед споживачів
Відповідь на питання, як вибрати газовий котел для опалення приватного будинку, досить складний і вимагає уважного підходу. Орієнтуючись на поради статті та огляд ТОП-10 кращих моделей, у вас неодмінно вийде зробити правильний вибір і придбати якісний прилад для опалення приватного будинку.
Артем Іванов 2017-02-17T13:23:54+00:00 Отоплення|Котел| ОЦІНИТЕ
МАТЕРІАЛ
Завантаження… ПОДІЛІТЬСЯ
У СОЦСЕТЯХFacebookTwitterOkGoogle+PinterestVk
